
OPTION, COMPROMIS EN COURS!!!! Idéalement située au centre de Genappe à 50 mètres du Ravel, à 50m d'une plaine de jeux et à proximité immédiate de tous les commerces (accessibles à pieds), cette maison de village à rénover n'attend que vos idées et vos valises! Rez de vie, 2 chambres à l'étage et grenier aménageable en 2 nouvelles chambres sous toiture. Pas de cour et pas de jardin, mais une opportunité unique d'accéder à la propriété. N5 et N25 à 1km, bus, écoles et commerces. Toute offre sera soigneusement étudiée, n'hésitez pas à prendre rendez-vous! Appelez moi au 0476/98.62.88! A bientôt?
Rue de la Station 40 - 1470 Genappe
Référence | 3845105 |
---|---|
Catégorie | Maison |
Nombre de chambres | 2 |
Nombre de salles de bain | 1 |
Garage | Non |
Terrasse | Non |
Parking | Non |
Surface habitable | 115 m² |
Surface du terrain | 60 m² |
Disponibilité | à l'acte |
Parking intérieur | Non |
---|---|
Année de construction | 1920 |
Parking extérieur | Oui |
Type de toit | toit en pointe |
Type de construction | traditionnel |
Nbre de toilette(s) (nombre) | 1 |
---|---|
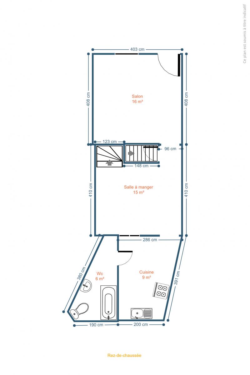
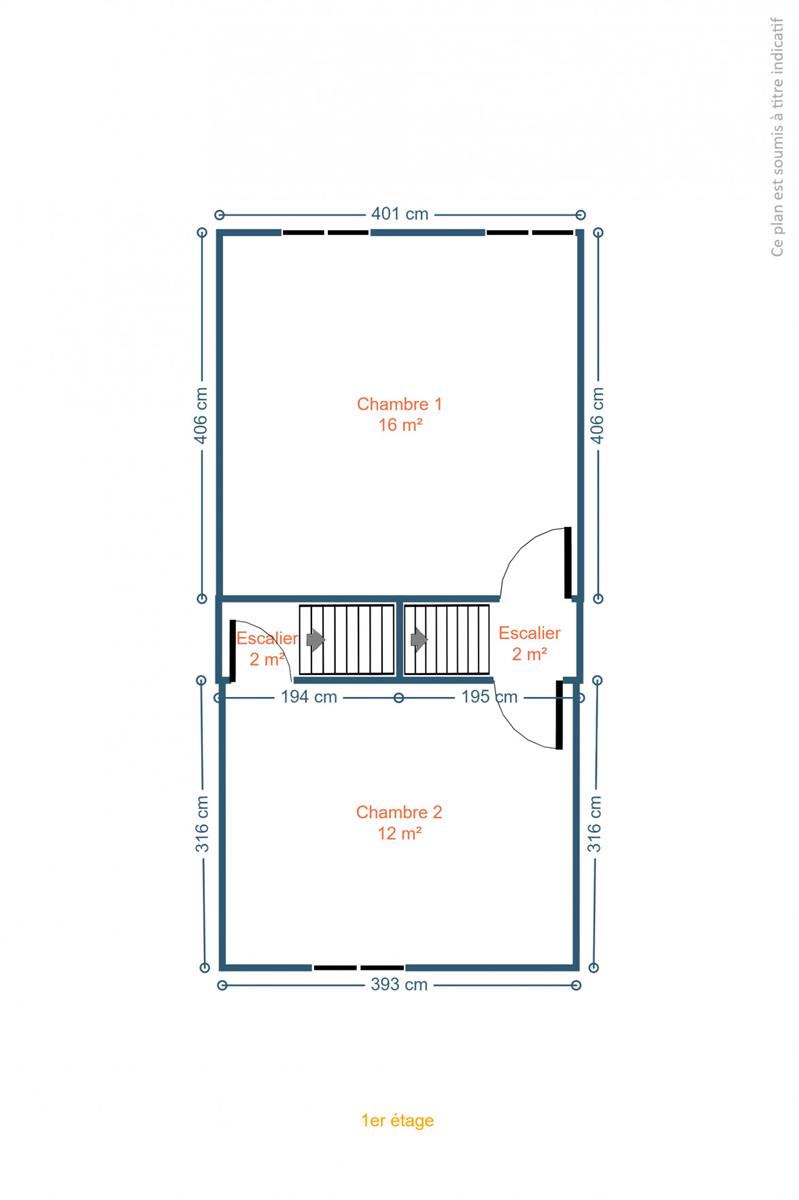
Chambre 1 (surface) | 16 m² |
Chambre 2 (surface) | 13 m² |
Surface nette | 115 m² |
Surface brute | 137 m² |
Salle de séjour (surface) | 17 m² |
Salle à manger (surface) | 15 m² |
Cuisine (surface) | 10 m² |
Salle de bain 1 (surface) | 7 m² |
Caves (surface) | 30 m² |
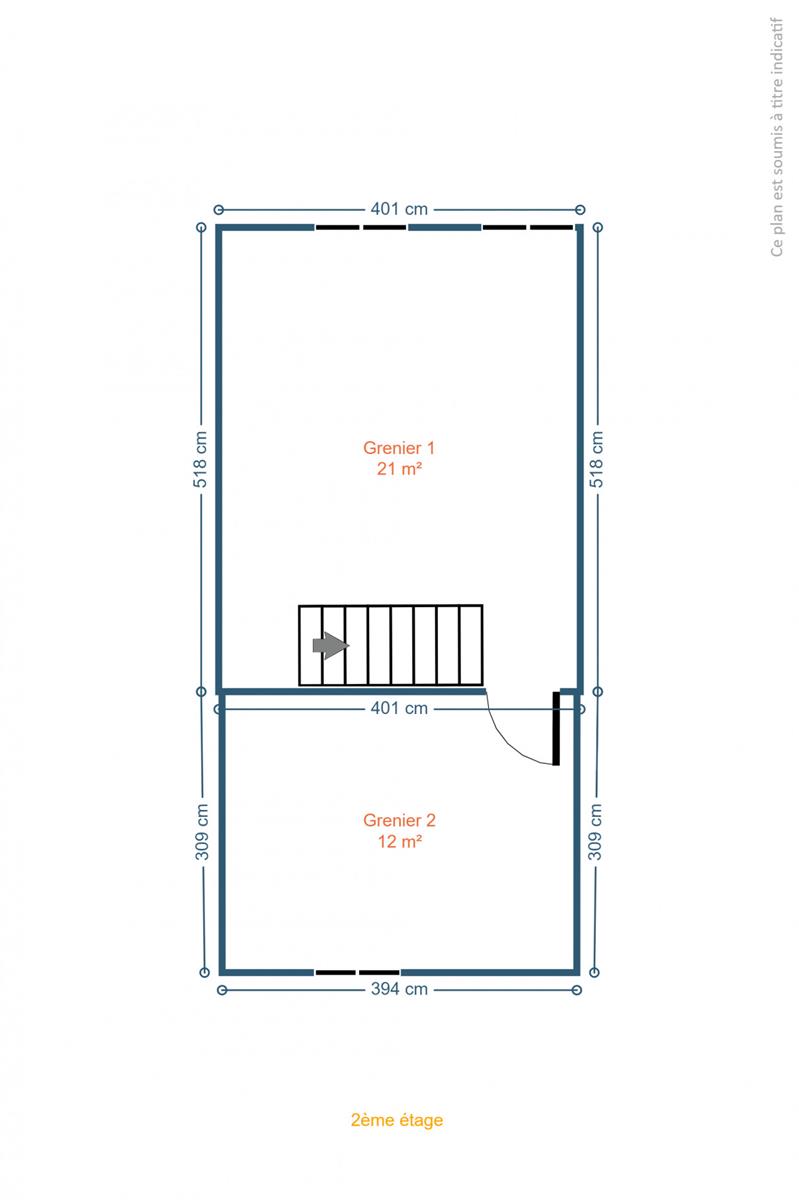
Grenier (surface) | 35 m² |
Buanderie | Oui |
---|---|
Type de grenier | possibilité d'équiper |
Grenier | Oui |
Cave | Oui |
Grenier (détails) | aménageable |
Caves (détails) | saines |
Précompte immobilier (montant) | 342 € |
---|
Écoles (distance (m)) | 500 |
---|---|
Magasins (distance (m)) | 200 |
Centre sportif (distance (m)) | 500 |
Transports en commun (distance (m)) | 100 |
Autoroute (distance (m)) | 1500 |
Égouts | Oui |
---|---|
Citerne à mazout | Oui |
Télévision par cable | Oui |
Gaz | Oui |
Eau | Oui |
Électricité (Détails) | Bi-horaire |
Citerne à mazout (détails) | apparente |
Châssis (type) | bois |
---|---|
Type d'électricité | 220 V |
Vitrage (type) | simple vitrage |
Vitrage (détails) | bois |
Attestation du sol | Oui |
---|---|
Certificat d'électricité (oui/non) | oui, non conforme |
Type d'environnement | centre ville |
---|
Type de cuisine | semi-équipée |
---|---|
Sdb (type) | bain |
Chauffage (type) | gaz |
Surface (ha/a/ca) (surf. (ha/a/ca)) | 80 ca |
---|
État de la toiture (appréciation) | 3 |
---|---|
État des châssis (appréciation) | 1 |
Label PEB (classe) | G |
---|---|
PEB E-SPEC (kwh/m²/an) | 517 |
Emission CO2 (émission CO2) | 517 |
E total (Kwh/an) | 47198 |
PEB code unique | 20190528011940 |