
OPTION OPTION OPTION Idéalement située à proximité des commodités et du centre de Genappe (400m), cette magnifique villa entièrement rénovée avec gout en 2019 vous séduira par ses excellentes prestations et son charme ! Elle offre une cuisine hyper équipée faite sur mesure et ouverte sur le salon et sur une vaste salle à manger intégrée avec vue sur l'extérieur, une suite parentale comprenant de nombreux placards encastrés et une salle de douche moderne avec douche italienne. Une buanderie et un wc séparé complètent l'agencement au rez de chaussée. Au premier étage, vous y trouverez un hall de nuit desservant 2 belles chambres dont une avec placards encastrés et une salle de bain avec toilette. D'un point de vue technique, elle est équipée d'un chauffage central au gaz de ville, de châssis double vitrage PVC partout, de volets électriques solaires et d'une VMC double flux. Les façades sont isolées et l'électricité est conforme ! Très peu énergivore, PEB : B. À l'extérieur, vous profiterez d'une agréable terrasse de 24m² avec toiles solaires et chauffe terrasse et d'une grande terrasse (110m²) bien ensoleillée avec piscine (4mx7,5m) + volets chauffée par pompe à chaleur et d'une annexe de rangement ! Parking privé et sécurisé grâce à son beau portail. Cette villa coup de cœur ne vous laissera pas indifférent ! Elle vous séduira par la qualité des matériaux, la convivialité de l'espace ainsi que par sa localisation idéale. Une visite ? Contactez Marie au 0474/885930.
Avenue Nouvelle 19 - 1472 Genappe
Référence | 5240190 |
---|---|
Catégorie | Maison |
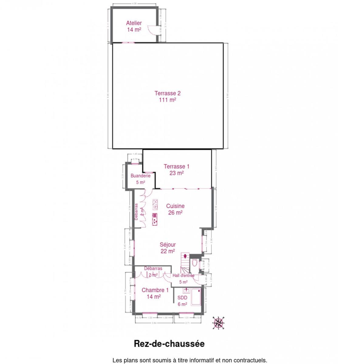
Nombre de chambres | 3 |
Nombre de salles de bain | 2 |
Terrasse | Oui |
Parking | Oui |
Surface habitable | 130 m² |
Surface du terrain | 504 m² |
Disponibilité | à l'acte |
Année de construction | 1985 |
---|---|
Parking extérieur | Oui |
Année de rénovation | 2019 |
Parking(s) extérieur (nombre) | 1 |
Type de toit | en pente |
Type de construction | traditionnel |
Nombre d'étages | 2 |
---|
Largeur front de rue | 13 |
---|---|
Surface bâtie (surf. bât. princ.) | 134 |
Surface de terrasse 2 | m² |
Nbre de toilette(s) (nombre) | 2 |
Nombre de sdd | 1 |
Chambre 1 (surface) | 14.2 m² |
Chambre 2 (surface) | 13.68 m² |
Chambre 3 (surface) | 12.21 m² |
Surface nette | 130 m² |
Largeur de façade | 7 |
Profondeur terrain | 33 |
Nbre de terrasse(s) (nombre) | 2 |
Orientation de la terrasse 2 | nord-ouest |
Salle de séjour (surface) | 22.15 m² |
Cuisine (surface) | 25.77 m² |
Buanderie (surface) | 5.02 m² |
Salle de bain 1 (surface) | 4.26 m² |
Sdd (surface (sdd1)) | 6.28 m² |
Hall d'entrée (surface) | 4.89 m² |
Orientation de la terrasse 1 | nord-ouest |
Hall de nuit (surface) | 5.7 m² |
Nbre de pièce(s) (nombre) | 12 |
Cuisine | Oui |
---|---|
Double vitrage | Oui |
Chauffage (type) | gaz (chau. centr.) |
Type de cuisine | amer. super-équipée |
Sdb (type) | douche |
Marque de chauffage | Bulex |
Sdb 2 (type) | bain assis |
Adoucisseur | Oui |
Buanderie | Oui |
---|---|
Coin à déjeuner | Oui |
Barbecue | Oui |
---|---|
Annexe | Oui |
Piscine | Oui |
Surface (m²) de annexe | 14 m² |
Type de piscine | chauffée avec pompe à chaleur et volet |
Volets | Oui |
---|---|
Volets (type) | type électrique |
Magasins (distance (m)) | 400 |
---|---|
Écoles (distance (m)) | 400 |
Transports en commun (distance (m)) | 400 |
Centre-ville (distance (m)) | 400 |
Magasins | Oui |
Ecoles | Oui |
Transports en commun | Oui |
Centre-ville | Oui |
Autoroute | Oui |
Autoroute (distance (m)) | 2000 |
Gare | Oui |
Gare (distance (m)) | 13000 |
Égouts | Oui |
---|---|
Télévision par cable | Oui |
Gaz | Oui |
Câbles téléphoniques | Oui |
Eau | Oui |
Électricité (Détails) | Bi-horaire, conforme |
Centrale tél. | Oui |
---|---|
Isolation | Oui |
Châssis (type) | pvc |
Vitrage (type) | double vitrage |
Isolation (type) | toit et murs |
Type d'évier | 2 |
Évier | Oui |
Type d'environnement | calme |
---|---|
Exposition de la façade avant | sud-est |
Surface de terrasse 1 | 24 m² |
---|
Destination bâtiment (type) | privé - habitation |
---|
Type de revêtement de sol | carrelages |
---|
Certificat d'électricité (oui/non) | oui, conforme |
---|
Label PEB (classe) | B |
---|---|
PEB E-SPEC (kwh/m²/an) | 132 |
E total (Kwh/an) | 22931 |
PEB code unique | 20230213026691 |
Date du PEB (datetime) | 13/02/2023 |