Maison - vendu - 1474 Ways -

Maison - à vendre - 1474 Ways
4 1 218 m² 1 3 PEB : G

Description

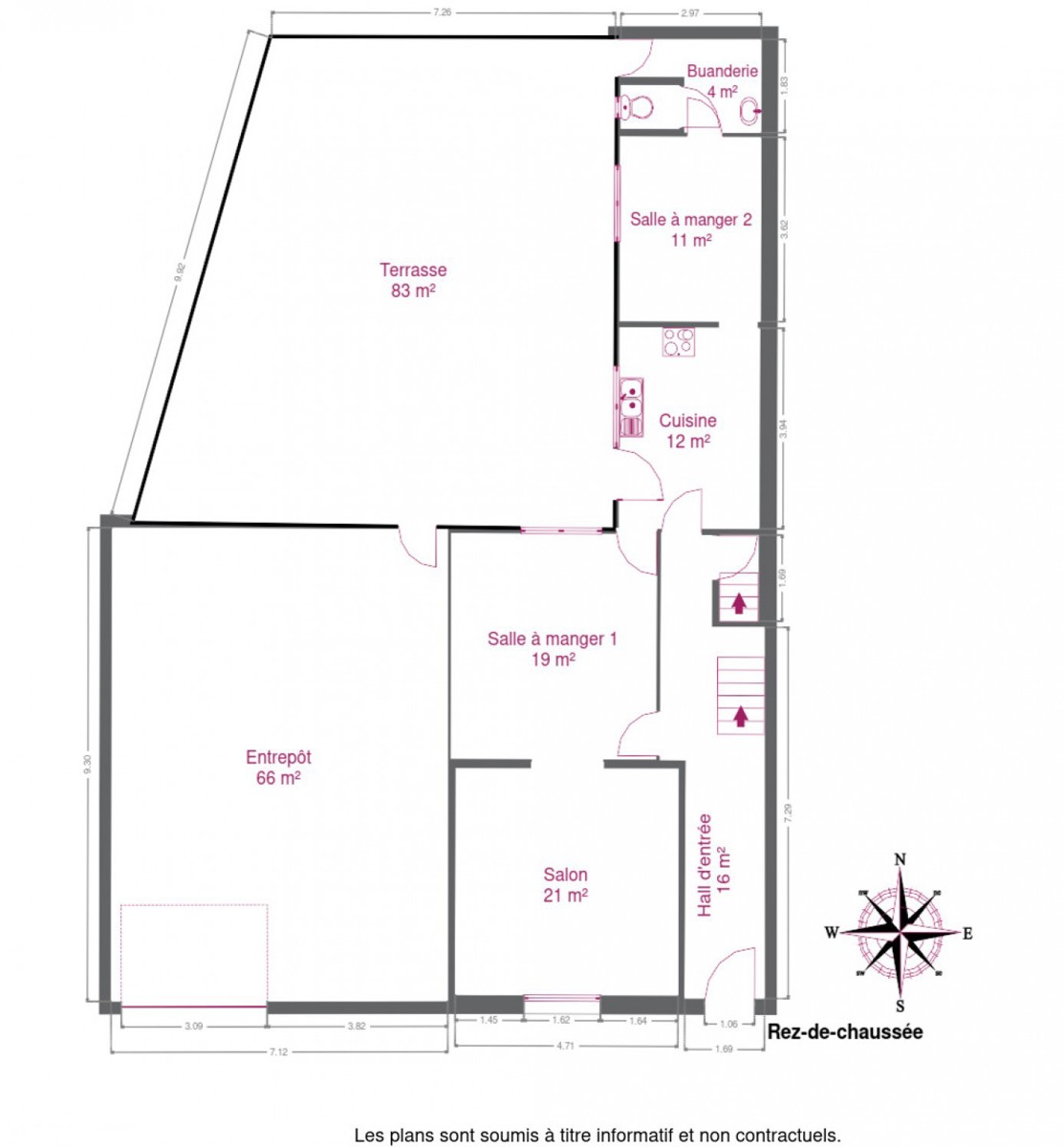
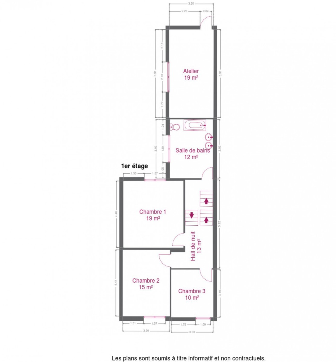
OPTION OPTION OPTION... STOP VISITES... COMPROMIS EN COURS...  Venez découvrir cette étonnante et volumineuse maison villageoise située dans une petite rue calme du village de Ways, entité de Genappe. La maison propose sur un total de 280m² un vaste rez-de-chaussée de vie avec des matériaux de qualité (carrelages anciens et plancher massif), cuisine et buanderie. Le 1er offre 3 belles chambres et une salle de bains. Au 2ème se trouve la 4ème chambre et un grand grenier aménageable de 33m². Un vaste entrepôt de près de 70m² sur dalle béton jouxte la maison et pourra accueillir vos voitures, machines et camion avec sa haute porte sectionnelle: idéal pour entrepreneur ou profession libérale. Une grande terrasse de 80m², des annexes, un beau jardin et des caves complètent l'ensemble! Pratique: bus 19 tout proche, N5/N25 à qq minutes et nombreux commerces et écoles à Genappe à 5'. Saisissez cette rare opportunité au centre de la jeune Province! https://www.ccv-immobilier.be/fr/bien/a-vendre/maison/1474-ways/5952271

Adresse

Rue Emile Bouqueau 5 - 1474 Ways

Général

Référence 5952271
Catégorie Maison
Nombre de chambres 4
Nombre de salles de bain 1
Jardin Oui
Surface du jardin 1027 m²
Garage Oui
Terrasse Oui
Parking Oui
Surface habitable 218 m²
Surface du terrain 1027 m²
Disponibilité à l'acte

Bâtiment

Année de construction 1902
Nombre de garage 1
Parking intérieur Oui
Parking extérieur Oui
Parking(s) extérieur (nombre) 3
Type de construction traditionnel

Nom, catégorie & situation

Nombre d'étages (numéro) 3

En chiffres

Largeur front de rue 17
Surface bâtie (surf. bât. princ.) 531
Nbre de toilette(s) (nombre) 2
Chambre 1 (surface) 19 m²
Chambre 2 (surface) 15 m²
Chambre 3 (surface) 10 m²
Chambre 4 (surface) 20 m²
Surface brute 344 m²
Surface nette 218 m²
Largeur de façade 13
Profondeur terrain 154
Garage (surface) 20 m²
Nbre de terrasse(s) (nombre) 1
Orientation de la terrasse 2 (-) ouest
Salle de séjour (surface) 21 m²
Salle à manger (surface) 19 m²
Cuisine (surface) 12 m²
Buanderie (surface) 4 m²
Salle de bain 1 (surface) 12 m²
Caves (surface) 59 m²
Grenier (surface) 33 m²
Hall d'entrée (surface) 16 m²
Atelier (surface) 66 m²
Orientation de la terrasse 1 (-) ouest
Hall de nuit (surface) 13 m²
Nbre de pièce(s) (Nombre) 17

Equipement de base

Cuisine Oui
Chauffage (ind/coll) (type (ind/coll)) collectif
Double vitrage Oui
Chauffage (Format/energie) mazout (chauf. centr.)

Divers

Buanderie Oui
Type de grenier possibilité d'équiper
Grenier Oui

Equipement extérieur

Atelier Oui
Jardin (détails) nord, en pente, Aménagé pelouse, ouest, plat
Fosse septique Oui
Atelier (surface) 0 m²

À proximité

Transports en commun (distance (m)) 120
Transports en commun Oui
Autoroute Oui
Autoroute (distance (m)) 2500
Gare Oui
Gare (distance (m)) 6200

Raccordements

Égouts Oui
Citerne à mazout Oui
Télévision par cable Oui
Câbles téléphoniques Oui
Eau Oui
Électricité (Détails) Bi-horaire
Citerne à mazout (détails) Apparente, capacité 1500 L

Équipements techniques

Centrale tél. Oui
Châssis (Ouvertures) aluminium
Évier Oui
Type d'évier 2

Spécificités terrain

Type d'environnement calme
Exposition de la façade avant (-) sud
Orientation de la terrasse (-) ouest
Orientation du jardin (-) nord ouest

Caractéristiques Principales

Surface de terrasse 1 83 m²

Type de matériau & évaluation

Type de revêtement de sol carrelages

Certificats / Attestations

Capacité de la citerne à mazout 1500

Cadastre

Revenu cadastral (€) (montant) 902 €

Certificats énergétiques

Label PEB (Classe) G
PEB E-SPEC (kwh/m²/an) (Consommation énergétique) 598
E total (Kwh/an) 143835
PEB code unique (-) 20240416036906
PEB valide jusqu'au (validité) 16/04/2034
Date du PEB 16/04/2024
Votre agent
Didier Piraux
E-mail Tel.
Prendre contact pour le bien : 5952271

* Champs obligatoires

Préférences pour les cookies

La protection de vos données personnelles est importante pour nous. C’est pourquoi nous détaillons ci-dessous les différents services et fonctionnalités du site qui utilisent des cookies et nous vous laissons décider des cookies que vous souhaitez autoriser ou refuser.

Veuillez cependant noter que si vous bloquez certains types de cookies, cela pourrait impacter votre expérience de navigation sur notre site ainsi que les fonctionnalités disponibles.

Nous utilisons des cookies fonctionnels obligatoires pour assurer le bon fonctionnement du site. Ils sont, par exemple, nécessaires pour retrouver le résultat d’une recherche ou enregistrer le choix de la langue.

Certaines fonctionnalités, comme l’affichage de vidéos ou de cartes géographiques, sont assurées via des composants externes développés par des partenaires comme YouTube ou Google. Certains composants utilisent des cookies qui sont susceptibles de permettre à ces tiers de suivre le comportement des internautes afin, par exemple, de réaliser du ciblage publicitaire. L’activation de ces fonctionnalités et des cookies associés est donc soumis à votre consentement.