
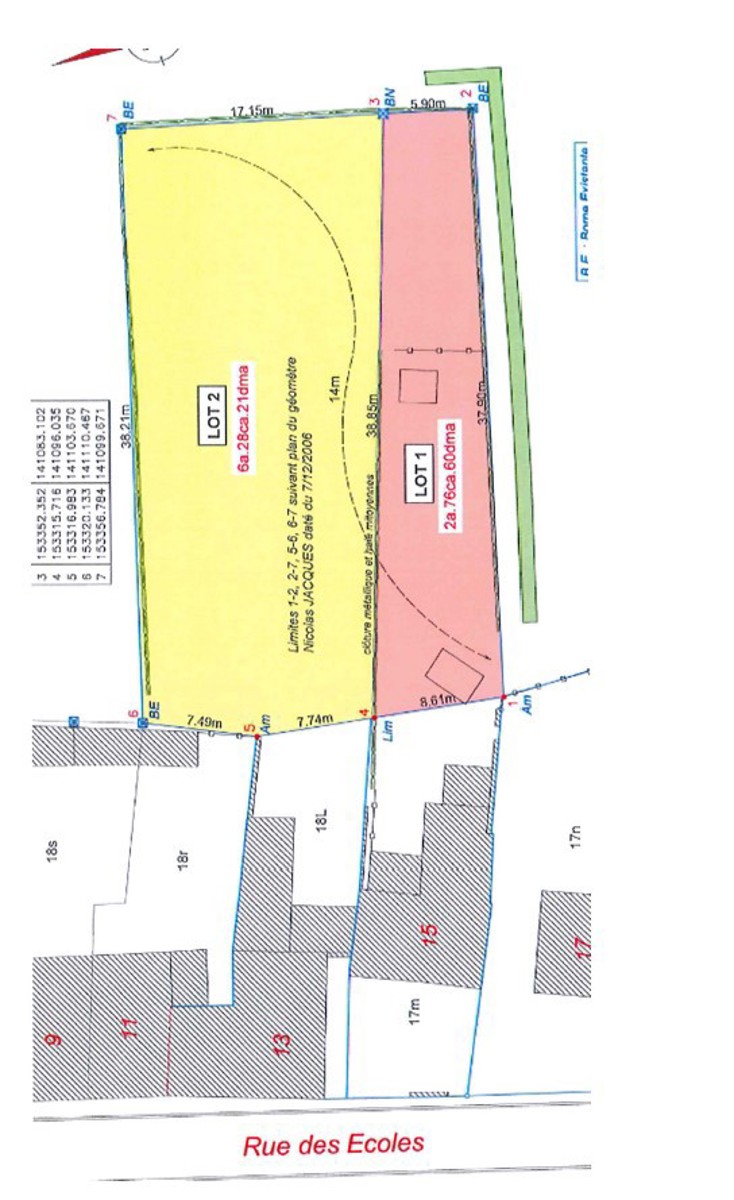
OPTION OPTION OPTION COMPROMIS EN COURS... Dans le charmant village de Houtain-le-Val (entité de Genappe), venez découvrir cette maison à rénover et son garage non attenant situé sur une parcelle distincte (le 17). L'ensemble des parcelles (le 15 et le 17 au cadastre, plus la parcelle arrière divisée selon plan de géomètre - Lot 1) offre un total de 7 ares 96 centiares. La maison doit être rénovée entièrement, la toiture est cependant neuve... Venez visiter et laissez ensuite libre cours à vos projets en fonction de vos besoins. Pratique: bus vers Nivelles, N25 à 3', tous commerces et écoles à Nivelles... FAIRE OFFRE A PARTIR DE 180.000 EUROS - sous réserve d'acceptation par les propriétaires... Une question ? Contactez Martin au 0493/50.00.70 https://www.ccv-immobilier.be/fr/bien/a-vendre/maison/1476-houtain-le-val/5958790
Rue des Ecoles 15 - 1476 Houtain-le-val
Référence | 5958790 |
---|---|
Catégorie | Maison |
Nombre de chambres | 2 |
Nombre de salles de bain | 1 |
Jardin | Oui |
Surface du jardin | 700 m² |
Garage | Oui |
Parking | Oui |
Surface habitable | 85 m² |
Surface du terrain | 796 m² |
Disponibilité | à l'acte |
Nombre d'étages | 1 |
---|
Nombre de garage | 2 |
---|---|
Parking intérieur | Oui |
Parking extérieur | Oui |
Type de construction | traditionnel |
Largeur front de rue | 12 |
---|---|
Surface bâtie (surf. bât. princ.) | 124 |
Nbre de toilette(s) (nombre) | 1 |
Nombre de sdd | 1 |
Chambre 1 (surface) | 19 m² |
Chambre 2 (surface) | 12 m² |
Surface brute | 137 m² |
Surface nette | 86 m² |
Largeur de façade | 16 |
Profondeur terrain | 25 |
Garage (surface) | 44 m² |
Salle de séjour (surface) | 17 m² |
Salle à manger (surface) | 19 m² |
Cuisine (surface) | 7 m² |
Caves (surface) | 7 m² |
Sdd (surface (sdd1)) | 3 m² |
Hall d'entrée (surface) | 1 m² |
Hall de nuit (surface) | 2 m² |
Nbre de pièce(s) (nombre) | 15 |
Cuisine | Oui |
---|---|
Double vitrage | Oui |
Transports en commun (distance (m)) | 100 |
---|---|
Transports en commun | Oui |
Autoroute | Oui |
Autoroute (distance (m)) | 9600 |
Gare | Oui |
Gare (distance (m)) | 6100 |
Égouts | Oui |
---|---|
Eau | Oui |
Électricité (Détails) | Mono-horaire |
Châssis (type) | bois |
---|---|
Évier | Oui |
Type d'évier | 1 |
Type d'environnement | zone d'habitation |
---|---|
Exposition de la façade avant | ouest |
Orientation de la terrasse | sud est |
Orientation du jardin | sud est |
Type de revêtement de sol | carrelages |
---|
Cave | Oui |
---|
Jardin (détails) | est, fermé haies clôtures |
---|---|
Abri de jardin | Oui |
Label PEB (classe) | G |
---|---|
PEB E-SPEC (kwh/m²/an) | 1109 |
E total (Kwh/an) | 117492 |
PEB code unique | 20240430009138 |