
OPTION OPTION OPTION COMPROMIS EN COURS... Venez découvrir cette grande maison villageoise située au cœur de Houtain-le-Val (entité de Genappe). Cette bâtisse de la fin du 19ème siècle est saine et offre à potentiel total de 225m² répartis sur 3 niveaux. Le rez propose une grande pièce de vie avec bureau ou pièce TV attenante, une salle à manger et une grande cuisine à rénover totalement. Le 1er distribue 3 belles chambres et une salle de bains à rénover également, plus un confortable hall de nuit. Enfin, un grenier aménageable de 75m² et de belles caves complètent l'ensemble et permettra de laisser libre cours à votre imagination. Extérieur: 3 places de parking privatives, terrasse et jardin en surplomb. Pratique: école communale à 50m, bus vers Nivelles, N25 à 3', gare RER, tous commerces et écoles à Nivelles à 6km. Une visite vous tente? Appelez Martin au 0493/50.00.70. https://www.ccv-immobilier.be/fr/bien/a-vendre/maison/1476-houtain-le-val/6001042
Rue des écoles 23 - 1476 Houtain-le-val
Référence | 6120281 |
---|---|
Catégorie | Maison |
Nombre de chambres | 3 |
Nombre de salles de bain | 1 |
Jardin | Oui |
Surface du jardin | 294 m² |
Terrasse | Oui |
Parking | Oui |
Surface habitable | 152 m² |
Surface du terrain | 384 m² |
Disponibilité | à l'acte |
Nombre d'étages | 2 |
---|
Parking extérieur | Oui |
---|---|
Type de construction | traditionnel |
Cuisine | Oui |
---|---|
Chauffage (type) | mazout (chauf. centr.) |
Nbre de toilette(s) (nombre) | 1 |
---|---|
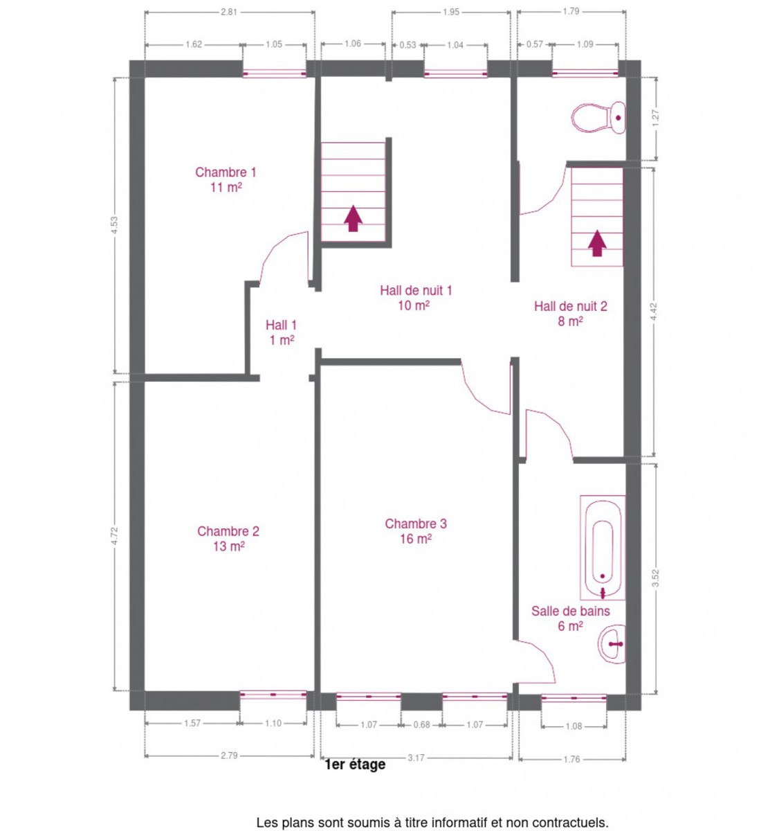
Chambre 1 (surface) | 11 m² |
Chambre 2 (surface) | 13 m² |
Chambre 3 (surface) | 16 m² |
Surface nette | 152 m² |
Salle de séjour (surface) | 25 m² |
Salle à manger (surface) | 15 m² |
Cuisine (surface) | 16 m² |
Salle de bain 1 (surface) | 6 m² |
Caves (surface) | 46 m² |
Grenier (surface) | 75 m² |
Bureau (surface) | 10 m² |
Orientation de la terrasse 1 | est |
Hall de nuit (surface) | 18 m² |
Bureau | Oui |
---|---|
Type de grenier | possibilité d'équiper |
Grenier | Oui |
Cave | Oui |
Transports en commun (distance (m)) | 200 |
---|---|
Transports en commun | Oui |
Autoroute | Oui |
Autoroute (distance (m)) | 3000 |
Gare | Oui |
Gare (distance (m)) | 6500 |
Égouts | Oui |
---|---|
Citerne à mazout | Oui |
Télévision par cable | Oui |
Eau | Oui |
Électricité (Détails) | Bi-horaire |
Châssis (type) | bois |
---|---|
Évier | Oui |
Type d'évier | 2 |
Type d'environnement | zone d'habitation |
---|---|
Orientation de la terrasse | est |
Orientation du jardin | est |
Surface de terrasse 1 | 20 m² |
---|
Type de revêtement de sol | tapis plain |
---|
Jardin (détails) | est, plat, aménagé pelouse, Fermé |
---|
PEB E-SPEC (kwh/m²/an) | 380 |
---|---|
E total (Kwh/an) | 66631 |
PEB code unique | 20240528013070 |
PEB valide jusqu'au (datetime) | 28/05/2034 |
Date du PEB (datetime) | 28/05/2024 |