Maison - vendu - 1490 Court-saint-Étienne -

Maison - à vendre - 1490 Court-saint-Étienne
5 3 256 m² 2 PEB : C

Description

OPTION OPTION OPTION - COMPROMIS DE VENTE EN COURS ! !Située dans un clos résidentiel à la limite d'Ottignies-Louvain-La-Neuve, agréable villa aux volumes inattendus. Vous serez séduits par ses beaux espaces, son agencement et sa luminosité. Elle peut convenir aussi bien à une famille nombreuse, qu'à une profession libérale (entrée séparée possible) ou encore à un projet de type "maison kangourou".  Ce magnifique bien dispose d'une part de la maison composée de 3 belles chambres, dont une au rez de chaussée avec salle de douche, d'un spacieux et lumineux living, d'une agréable et grande cuisine, d'une vaste buanderie, d'une salle de bains et d'un double garage. Et d'autre part d'un studio 1 chambre avec cuisine et sdd privatives à l'étage (compteur électrique séparé). Idéalement implantée sur un terrain de +/- 7 ares avec un jardin arboré, fleuri et facile d'entretien et une terrasse orientée Sud/Est, à proximité immédiate des commerces, écoles, transports et axes routiers (N25, N4, E411). Construction traditionnelle et de qualité, gaz de ville, égouts direct, bi-horaire,...Faire offre à partir de 425.000€ sous réserve de l'acceptation des propriétaires. Une visite vous tente ? Contactez Marie 0474/885930 ! https://www.ccv-immobilier.be/fr/bien/a-vendre/maison/1490-court-saint-etienne/4184237

Adresse

Clos de profondval 36 - 1490 Court-saint-Étienne

Général

Référence 4315992
Catégorie Maison
Meublé Non
Nombre de chambres 5
Nombre de salles de bain 3
Jardin Oui
Garage Oui
Terrasse Oui
Parking Oui
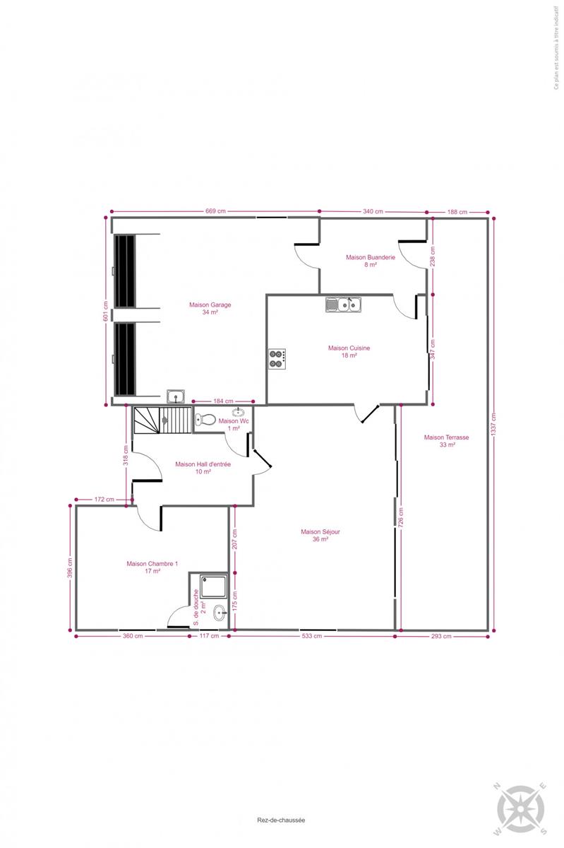
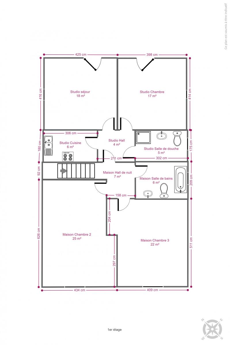
Surface habitable 256 m²
Surface du terrain 708 m²
Disponibilité à l'acte

Bâtiment

Année de construction 1994
Nombre de garage 2
Parking intérieur Oui
Parking extérieur Oui
Type de toit en pente
Garage (détails) Châssis bois double vitrage à soufflet,...
Type de construction traditionnel

Nom, catégorie & situation

Nombre d'étages (numéro) 3

Equipement de base

Cuisine Oui
Chauffage (Format/energie) gaz (chau. centr.)
Sdb (Type) douche et bain
Marque de chauffage marque junkers nombre 1
Sdb 2 (type) douche
Cuisine (détails) 2,4m, 4, double avec égouttoir inox, , ,...

Divers

Buanderie Oui
Type de grenier seulement rangement
Coin à déjeuner Oui
Grenier Oui
Grenier (détails) aménageable, plancher, 2,8m, Plafond...

En chiffres

Nbre de toilette(s) (nombre) 3
Chambre 1 (surface) 16 m²
Chambre 2 (surface) 25 m²
Chambre 3 (surface) 22 m²
Chambre 4 (surface) 18 m²
Chambre 5 (surface) 16 m²
Surface brute 290 m²
Surface nette 256 m²
Garage (surface) 34 m²
Salle de séjour (surface) 36 m²
Cuisine (surface) 17 m²
Buanderie (surface) 8 m²
Salle de bain 1 (surface) 6 m²
Grenier (surface) 55 m²
Sdd (surface) 5 m²
Hall d'entrée (surface) 10 m²
Orientation de la terrasse 1 (-) sud-est
Hall de nuit (surface) 6 m²

Raccordements

Égouts Oui
Télévision par cable Oui
Gaz Oui
Câbles téléphoniques Oui
Eau Oui

Équipements techniques

Châssis (Ouvertures) bois
Type d'électricité 380 V
Vitrage (type) double vitrage
Isolation (type) toit
Évier Oui

Spécificités terrain

Type d'environnement résidentiel
Orientation de la terrasse (-) sud ouest
Orientation du jardin (-) ouest

Caractéristiques Principales

Surface de terrasse 1 32 m²

À proximité

Magasins Oui
Ecoles Oui
Transports en commun Oui
Centre-ville Oui
Centre sportif Oui
Autoroute Oui
Gare Oui

Equipement extérieur

Jardin (détails) Aménagé pelouse, déclivité plat

Certificats énergétiques

Label PEB (Classe) C
PEB E-SPEC (kwh/m²/an) (Consommation énergétique) 213
E total (Kwh/an) 55073
PEB code unique (-) 20201016012700
Votre agent
Marie Surges
E-mail Tel.
Prendre contact pour le bien : 4315992

* Champs obligatoires

Préférences pour les cookies

La protection de vos données personnelles est importante pour nous. C’est pourquoi nous détaillons ci-dessous les différents services et fonctionnalités du site qui utilisent des cookies et nous vous laissons décider des cookies que vous souhaitez autoriser ou refuser.

Veuillez cependant noter que si vous bloquez certains types de cookies, cela pourrait impacter votre expérience de navigation sur notre site ainsi que les fonctionnalités disponibles.

Nous utilisons des cookies fonctionnels obligatoires pour assurer le bon fonctionnement du site. Ils sont, par exemple, nécessaires pour retrouver le résultat d’une recherche ou enregistrer le choix de la langue.

Certaines fonctionnalités, comme l’affichage de vidéos ou de cartes géographiques, sont assurées via des composants externes développés par des partenaires comme YouTube ou Google. Certains composants utilisent des cookies qui sont susceptibles de permettre à ces tiers de suivre le comportement des internautes afin, par exemple, de réaliser du ciblage publicitaire. L’activation de ces fonctionnalités et des cookies associés est donc soumis à votre consentement.