
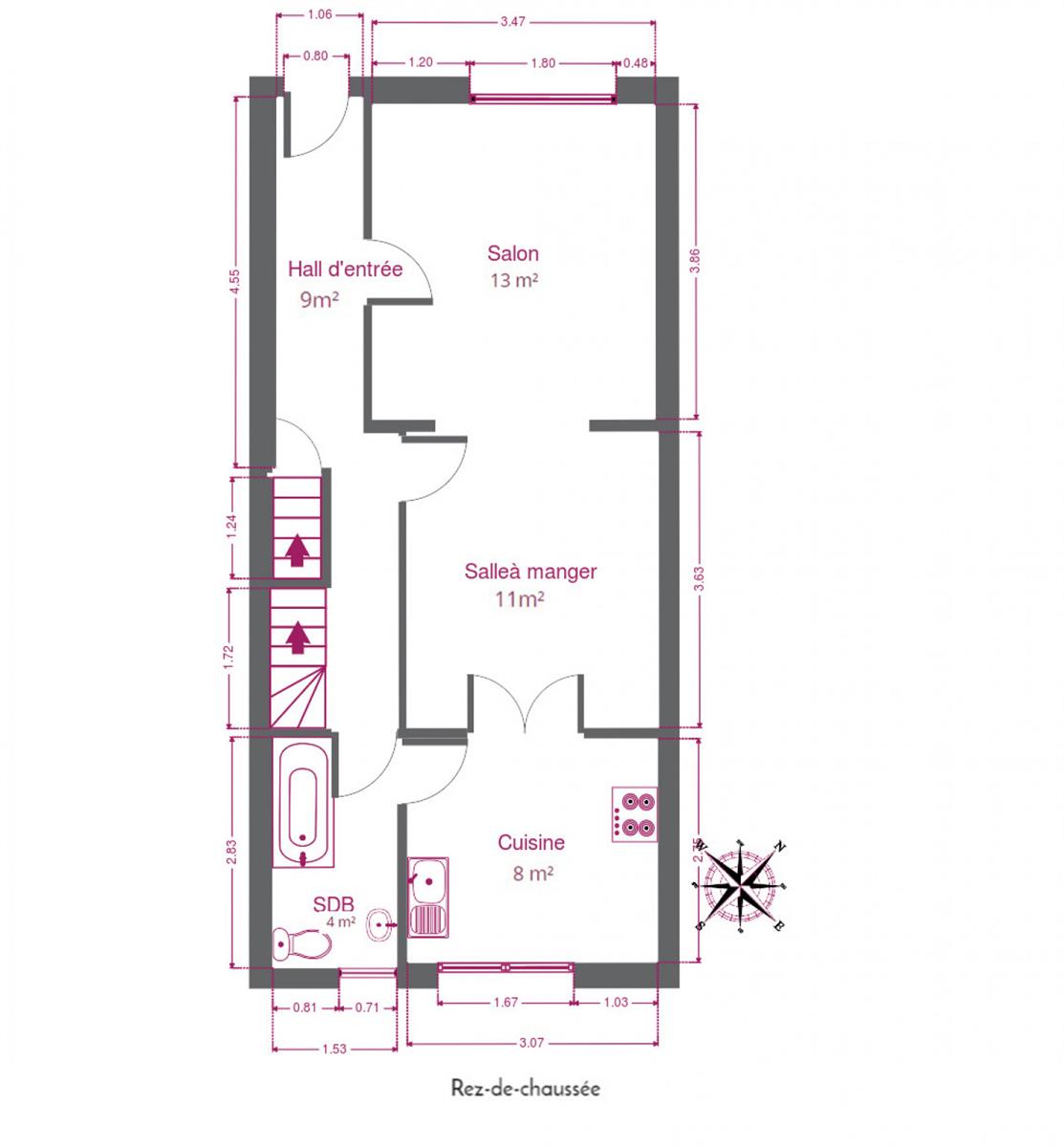
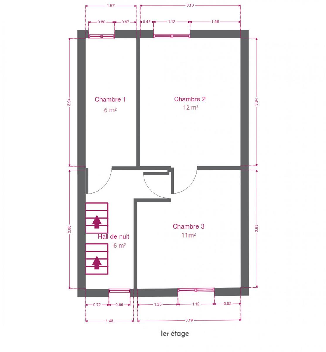
STOP VISITES - SOUS OPTION! Faire offre à partir de 160.000 euros, sous réserve d'acceptation par le propriétaire - Venez découvrir cette agréable maison bien agencée à rénover entièrement, présentant un beau potentiel et une situation hyper stratégique, au centre de Court-Saint-Etienne et en bordure directe du ravel, à proximité immédiate des commerces, des écoles, de la gare et des axes vers Bxl-LLN-Namur! Possibilité de bénéficier des droits réduits: revenu cadastral = 661 euros. La maison propose, au rez: un hall d'entrée, un séjour en 2 parties avec anciennes cheminées, une cuisine et une salle de bains. A l'étage: 2 chambres (12 et 11m²) et 1 bureau (ou poss. salle d'eau), un hall de nuit avec escalier permanent vers le spacieux grenier de 37m² dans lequel il est possible d'aménager encore 1 à 2 chambres supplémentaire(s). La maison est complétée, au -1, par plusieurs caves facilement accessibles, par une terrasse exposée sud-est et un jardinet en pente de 30m² avec accès direct au ravel. Rénovation générale à prévoir (électricité, chauffage central, châssis etc). Une visite? Appelez Laurence au 0471/43.48.59 - https://www.ccv-immobilier.be/fr/bien/a-vendre/maison/1490-court-saint-etienne/4499148
Rue françois 55 - 1490 Court-saint-Étienne
Référence | 4499148 |
---|---|
Catégorie | Maison |
Meublé | Non |
Nombre de chambres | 3 |
Nombre de salles de bain | 1 |
Jardin | Oui |
Surface du jardin | 33 m² |
Garage | Non |
Terrasse | Oui |
Surface habitable | 120 m² |
Surface du terrain | 80 m² |
Disponibilité | à l'acte |
Nombre d'étages | 2 |
---|
Parking intérieur | Non |
---|---|
Parking extérieur | Non |
Type de construction | traditionnel |
Largeur front de rue | 5.96 |
---|---|
Surface bâtie (surf. bât. princ.) | 47.4 |
Nbre de toilette(s) (nombre) | 1 |
Chambre 1 (surface) | 12.21 m² |
Chambre 2 (surface) | 10.6 m² |
Surface brute | 169 m² |
Surface nette | 120 m² |
Largeur de façade | 4.9 |
Profondeur terrain | 16 |
Nbre de terrasse(s) (nombre) | 1 |
Salle de séjour (surface) | 24 m² |
Salle à manger (surface) | 11.22 m² |
Cuisine (surface) | 8.45 m² |
Salle de bain 1 (surface) | 4.32 m² |
Caves (surface) | 2 m² |
Grenier (surface) | 37.52 m² |
Bureau (surface) | 6.18 m² |
Hall d'entrée (surface) | 8.94 m² |
Orientation de la terrasse 1 | sud-est |
Hall de nuit (surface) | 6.32 m² |
Nbre de pièce(s) (nombre) | 14 |
Cuisine | Oui |
---|---|
Type de cuisine | semi-équipée |
Sdb (type) | bain assis |
Volets | Oui |
---|---|
Volets (type) | type roulant |
Magasins (distance (m)) | 50 |
---|---|
Écoles (distance (m)) | 30 |
Transports en commun (distance (m)) | 250 |
Centre-ville (distance (m)) | 50 |
Magasins | Oui |
Ecoles | Oui |
Transports en commun | Oui |
Centre-ville | Oui |
Gare | Oui |
Gare (distance (m)) | 350 |
Égouts | Oui |
---|---|
Citerne à mazout | Oui |
Câbles téléphoniques | Oui |
Électricité (Détails) | Bi-horaire |
Citerne à mazout (détails) | Apparente, capacité 3000 L |
Centrale tél. | Oui |
---|---|
Châssis (type) | aluminium |
Vitrage (type) | double vitrage |
Type d'environnement | zone d'habitation |
---|---|
Exposition de la façade avant | nord-ouest |
Orientation de la terrasse | sud est |
Orientation du jardin | sud est |
Environnement détail 2 (détails) | Centre-ville |
Surface de terrasse 1 | 8 m² |
---|
Type de revêtement de sol | carrelages |
---|
Capacité de la citerne à mazout (capacite) | 3000 |
---|
Type de grenier | possibilité d'équiper |
---|---|
Grenier | Oui |
Cave | Oui |
Revenu cadastral (€) (montant) | 661 € |
---|
Jardin (détails) | déclivité en pente, À aménager |
---|
Label PEB (classe) | G |
---|---|
PEB E-SPEC (kwh/m²/an) | 647 |
E total (Kwh/an) | 63464 |
PEB code unique | 20210906016826 |