Maison - vendu - 1490 Court-saint-Étienne -

Maison - à vendre - 1490 Court-saint-Étienne
3 1 121 m² PEB : G

Description

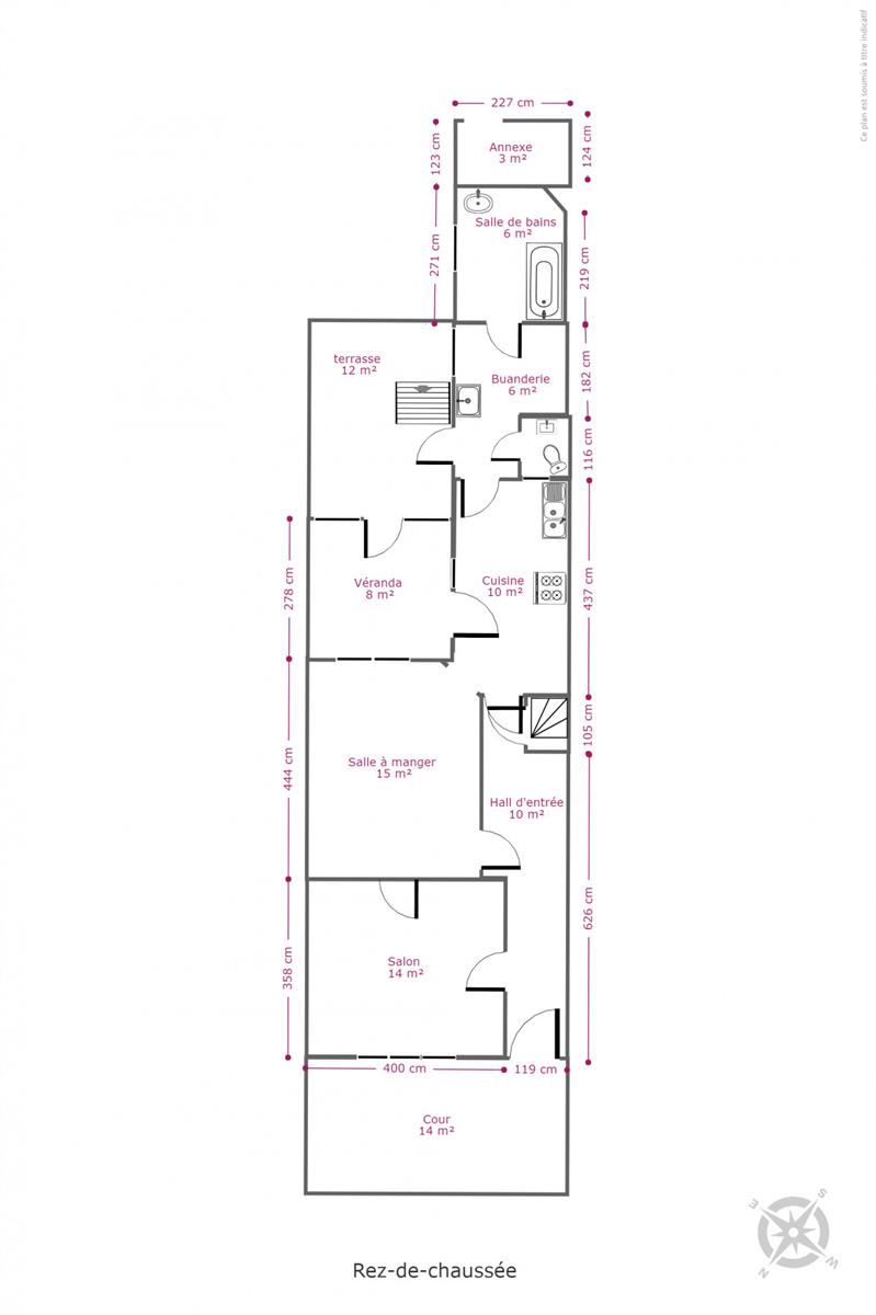
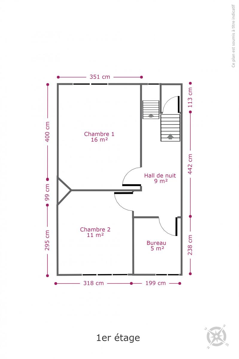
!! OPTION !! Située à 3' du Douaire, de la gare d'Ottignies et 500m de la gare de Céroux-Mousty, cette agréable maison à rénover, fonctionnelle et bien agencée, vous séduira grâce à son potentiel et sa situation hyper stratégique. ! N'est pas située en zone inondable ! RC: 639 euros - poss. de réduction des droits. La maison se compose comme suit; au RDC: hall d'entrée spacieux, double séjour de +- 30m² avec anciens carrelages et 2 convecteurs au gaz, une cuisine, une véranda, une sdb, une buanderie, un WC et du rangement. A l'étage, sur plancher: 2 belles chambres de 16 et 11,5 m², un bureau/dressing de 5m² (poss. salle d'eau), et accès via escalier permanent au grenier de 37m² - poss. 1 ou 2 ch. suppl. selon vos besoins! En extérieur, une terrasse un jardin orientés sud-est avec jolie vue sur les bois + espaces de stockage. Au -1: caves très saines. Technique: raccordée au gaz de ville, châssis DV bois en excellent état équipés de volets manuels! Travaux à prévoir (électricité, install. chauffage centr., sanitaires...). Faire offre à partir de 200.000 euros, sous réserve d'acceptation par le propriétaire! Une visite? Contactez Laurence au 0471/43.48.59. https://www.ccv-immobilier.be/fr/bien/a-vendre/maison/1490-court-saint-etienne/4518416

Adresse

Rue Albert 1er 103 - 1490 Court-saint-Étienne

Général

Référence 4518416
Catégorie Maison
Nombre de chambres 3
Nombre de salles de bain 1
Jardin Oui
Surface du jardin 220 m²
Terrasse Oui
Surface habitable 121 m²
Surface du terrain 220 m²
Disponibilité à l'acte

Bâtiment

Année de construction 1934
Type de construction traditionnel

Nom, catégorie & situation

Nombre d'étages (numéro) 2

En chiffres

Largeur front de rue 5.25
Surface bâtie (surf. bât. princ.) 70
Nbre de toilette(s) (nombre) 1
Chambre 1 (surface) 16 m²
Chambre 2 (surface) 11 m²
Surface brute 176 m²
Surface nette 121 m²
Largeur de façade 5.5
Profondeur terrain 39
Nbre de terrasse(s) (nombre) 1
Salle de séjour (surface) 30 m²
Salle à manger (surface) 15.26 m²
Cuisine (surface) 9.83 m²
Buanderie (surface) 5.7 m²
Salle de bain 1 (surface) 5.75 m²
Caves (surface) 24 m²
Grenier (surface) 37 m²
Bureau (surface) 5 m²
Hall d'entrée (surface) 9.53 m²
Orientation de la terrasse 1 (-) sud-est
Hall de nuit (surface) 8.57 m²
Nbre de pièce(s) (Nombre) 17

Equipement de base

Cuisine Oui
Double vitrage Oui
Chauffage (Format/energie) gaz
Type de cuisine non-équipée
Sdb (Type) bain

Divers

Buanderie Oui
Véranda Oui
Bureau Oui
Type de grenier possibilité d'équiper
Grenier Oui
Cave Oui
Grenier (détails) aménageable

Sécurité

Volets Oui
Détails volets (type) type manuel

À proximité

Magasins (distance (m)) 500
Écoles (distance (m)) 1300
Transports en commun (distance (m)) 500
Centre-ville (distance (m)) 300
Magasins Oui
Ecoles Oui
Transports en commun Oui
Centre-ville Oui
Autoroute Oui
Autoroute (distance (m)) 3500
Gare Oui
Gare (distance (m)) 600

Equipement extérieur

Annexe Oui
Surface (m²) de annexe 2.8 m²
Citerne d'eau Oui
Jardin (détails) sud-est, déclivité pente légère, Aménagé pelouse, fermé clôtures
Cour Oui
Dimensions de la cour 14

Raccordements

Égouts Oui
Gaz Oui
Câbles téléphoniques Oui
Eau Oui
Électricité (Détails) Bi-horaire

Équipements techniques

Centrale tél. Oui
Châssis (Ouvertures) bois
Vitrage (type) double vitrage
Vitrage (détails) Excellent état
Évier Oui
Type d'évier 1

Spécificités terrain

Type d'environnement central
Exposition de la façade avant (-) nord-ouest
Orientation de la terrasse (-) sud est
Orientation du jardin (-) sud est
Environnement détail 2 (détails) Proximité facilités

Certificats / Attestations

Attestation du sol Oui
Certificat d'électricité (oui/non) oui, non conforme

Caractéristiques Principales

Surface de terrasse 1 11 m²

Type de matériau & évaluation

Type de revêtement de sol vinyl

Cadastre

Revenu cadastral (€) (montant) 639 €

Certificats énergétiques

Label PEB (Classe) G
PEB E-SPEC (kwh/m²/an) (Consommation énergétique) 606
E total (Kwh/an) 72819
PEB code unique (-) 20210802005151
Votre agent
Marie Verlinden
E-mail Tel.
Prendre contact pour le bien : 4518416

* Champs obligatoires

Préférences pour les cookies

La protection de vos données personnelles est importante pour nous. C’est pourquoi nous détaillons ci-dessous les différents services et fonctionnalités du site qui utilisent des cookies et nous vous laissons décider des cookies que vous souhaitez autoriser ou refuser.

Veuillez cependant noter que si vous bloquez certains types de cookies, cela pourrait impacter votre expérience de navigation sur notre site ainsi que les fonctionnalités disponibles.

Nous utilisons des cookies fonctionnels obligatoires pour assurer le bon fonctionnement du site. Ils sont, par exemple, nécessaires pour retrouver le résultat d’une recherche ou enregistrer le choix de la langue.

Certaines fonctionnalités, comme l’affichage de vidéos ou de cartes géographiques, sont assurées via des composants externes développés par des partenaires comme YouTube ou Google. Certains composants utilisent des cookies qui sont susceptibles de permettre à ces tiers de suivre le comportement des internautes afin, par exemple, de réaliser du ciblage publicitaire. L’activation de ces fonctionnalités et des cookies associés est donc soumis à votre consentement.