Maison - vendu - 1490 Court-saint-Étienne -

Maison - à vendre - 1490 Court-saint-Étienne
5 2 337 m² 1 7 PEB : F

Description

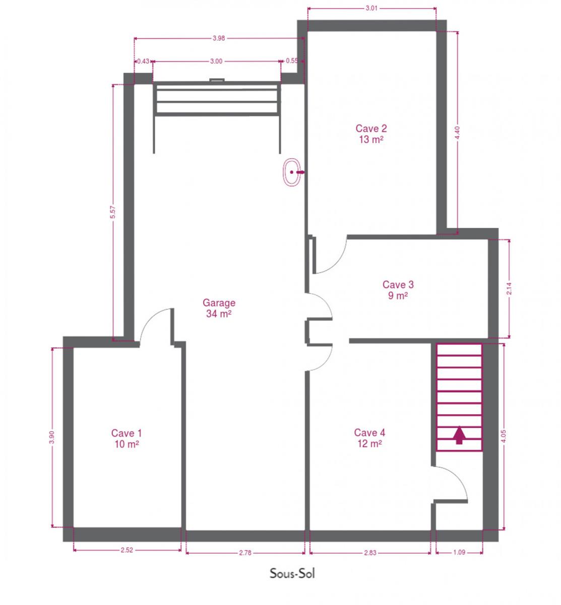
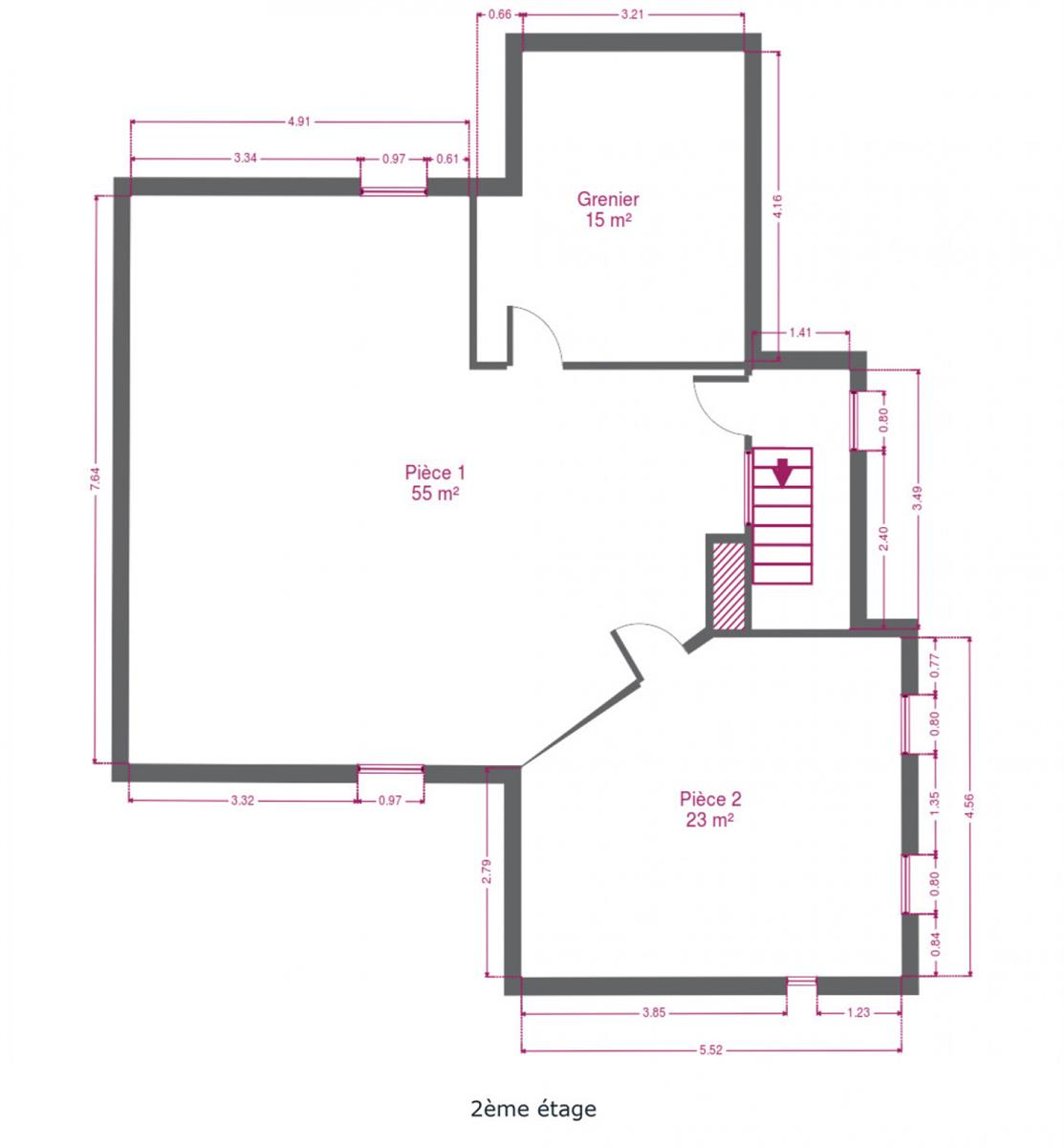
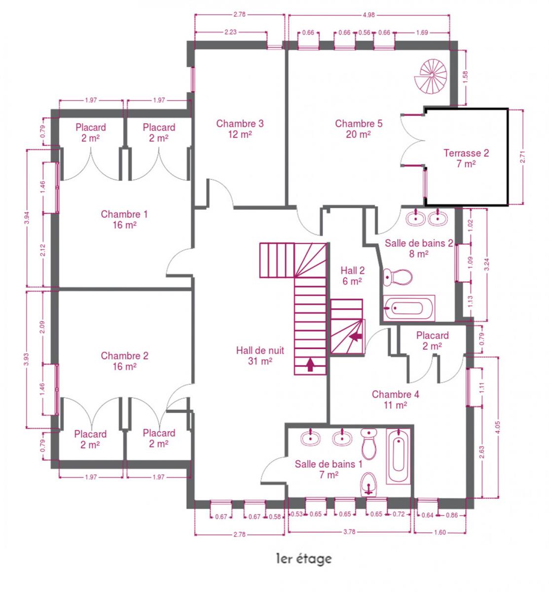
Visites avec Laurence au 0471/43.48.59 - Venez découvrir cette splendide maison bourgeoise de caractère aux volumes exceptionnels et au cachet incomparable. Située sur un terrain de 24 ares, en hauteur par rapport à la route (zone non inondable), vous serez accueillis dans un somptueux hall d'entrée de 20m², cage d'escalier monumentale vers l'étage, grand séjour, cuisine équipée, buanderie et bureau au rez. A l'étage, un grand hall de nuit dessert une pièce d'eau, 5 belles chambres, dont une suite parentale avec salle de bains et terrasse panoramique sur le jardin. Le 2ème est desservi par un escalier et propose une grande pièce ouverte de 55m² (possibilité salle de jeux, home cinéma), une possible 6ème chambre et un grenier de rangement. Vous entrez dans la propriété en voiture et vous accédez directement au garage (porte sectionnelle télécommandée), ou à des places de parking extérieures. Des grandes caves de rangement complètent le niveau -1. Une grande terrasse arrière, au calme, vue sur le terrain, avec coin barbecue couvert complète le tout. Pratique: accès N25 aisé, commerces et écoles à proximité. Visites sur RDV les lundi et vendredi de 15 à 17h. Merci d'appeler Laurence au 0471/43.48.59 - https://www.ccv-immobilier.be/fr/bien/a-vendre/maison/1490-court-saint-etienne/4546449

Adresse

Avenue des Combattants 134 - 1490 Court-saint-Étienne

Général

Référence 4546449
Catégorie Maison
Nombre de chambres 5
Nombre de salles de bain 2
Jardin Oui
Surface du jardin 2200 m²
Garage Oui
Terrasse Oui
Parking Oui
Surface habitable 337 m²
Surface du terrain 2483 m²
Disponibilité en fonct. du locataire

Bâtiment

Année de construction 1950
Nombre de garage 1
Parking intérieur Oui
Parking extérieur Oui
Parking(s) intérieur (nombre) 2
Parking(s) extérieur (nombre) 5
Type de toit en pente
Type de construction traditionnel

Nom, catégorie & situation

Nombre d'étages (numéro) 3

En chiffres

Largeur front de rue 8.97
Surface bâtie (surf. bât. princ.) 135
Surface de terrasse 2 6.7 m²
Nbre de toilette(s) (nombre) 3
Chambre 1 (surface) 16 m²
Chambre 2 (surface) 16 m²
Chambre 3 (surface) 12 m²
Chambre 4 (surface) 12 m²
Chambre 5 (surface) 20 m²
Surface brute 433 m²
Surface nette 337 m²
Largeur de façade 13
Profondeur terrain 20
Garage (surface) 34 m²
Nbre de terrasse(s) (nombre) 2
Orientation de la terrasse 2 (-) nord
Salle de séjour (surface) 44 m²
Cuisine (surface) 22 m²
Buanderie (surface) 11 m²
Salle de bain 1 (surface) 8 m²
Caves (surface) 9 m²
Grenier (surface) 93 m²
Bureau (surface) 18 m²
Hall d'entrée (surface) 18 m²
Orientation de la terrasse 1 (-) nord
Salle de bains 2 (surface) 8 m²
Hall de nuit (surface) 31 m²
Nbre de pièce(s) (Nombre) 28

Equipement de base

Cuisine Oui
Chauffage (Format/energie) mazout (chauf. centr.)
Type de cuisine semi-équipée
Sdb (Type) douche dans le bain
Parlophone Oui
Sdb 2 (type) douche dans le bain
Adoucisseur Oui

Divers

Buanderie Oui
Bureau Oui
Vestiaire Oui
Salle de jeu Oui
Surface (m²) de salle de jeu 55 m²
Type de grenier possibilité d'équiper
Grenier Oui
Cave Oui
Grenier (détails) aménageable
Feu ouvert Oui

À proximité

Magasins (distance (m)) 2000
Écoles (distance (m)) 1500
Transports en commun (distance (m)) 50
Centre-ville (distance (m)) 1500
Transports en commun Oui
Autoroute Oui
Autoroute (distance (m)) 5000
Gare Oui
Gare (distance (m)) 3000
Détails écoles collège Saint-Etienne CSE

Raccordements

Égouts Oui
Citerne à mazout Oui
Télévision par cable Oui
Câbles téléphoniques Oui
Eau Oui
Électricité (Détails) Bi-horaire
Citerne à mazout (détails) Enterrée

Équipements techniques

Centrale tél. Oui
Châssis (Ouvertures) bois
Type d'électricité 220 V
Évier Oui
Type d'évier 2

Spécificités terrain

Type d'environnement central
Exposition de la façade avant (-) sud
Orientation du jardin (-) nord

Caractéristiques Principales

Surface de terrasse 1 40 m²

Type de matériau & évaluation

Type de revêtement de sol carrelages
État de la toiture (appréciation) 4
État des châssis (-) 4
État des sanitaires (appréciation) 3
État de l'électricité (appréciation) 3
État du chauffage (appréciation) 3
État de la cuisine (appréciation) 3
État des sols (appréciation) 4

Equipement extérieur

Jardin (détails) Aménagé pelouse, nord, déclivité plat, fermé clôtures, sud, déclivité en pente, fermé
Abri de jardin Oui

Certificats énergétiques

Label PEB (Classe) F
PEB E-SPEC (kwh/m²/an) (Consommation énergétique) 499
E total (Kwh/an) 170540
PEB code unique (-) 20211110013621
Votre agent
Didier Piraux
E-mail Tel.
Prendre contact pour le bien : 4546449

* Champs obligatoires

Préférences pour les cookies

La protection de vos données personnelles est importante pour nous. C’est pourquoi nous détaillons ci-dessous les différents services et fonctionnalités du site qui utilisent des cookies et nous vous laissons décider des cookies que vous souhaitez autoriser ou refuser.

Veuillez cependant noter que si vous bloquez certains types de cookies, cela pourrait impacter votre expérience de navigation sur notre site ainsi que les fonctionnalités disponibles.

Nous utilisons des cookies fonctionnels obligatoires pour assurer le bon fonctionnement du site. Ils sont, par exemple, nécessaires pour retrouver le résultat d’une recherche ou enregistrer le choix de la langue.

Certaines fonctionnalités, comme l’affichage de vidéos ou de cartes géographiques, sont assurées via des composants externes développés par des partenaires comme YouTube ou Google. Certains composants utilisent des cookies qui sont susceptibles de permettre à ces tiers de suivre le comportement des internautes afin, par exemple, de réaliser du ciblage publicitaire. L’activation de ces fonctionnalités et des cookies associés est donc soumis à votre consentement.