Maison - vendu - 1490 Court-saint-Étienne -

Maison - à vendre - 1490 Court-saint-Étienne
3 1 96 m² 1 PEB : E

Description

OPTION OPTION OPTION COMPROMIS EN COURS...!!! Située sur l'avenue des combattants, à un jet de pierre de la gare de CSE, des commerces, des écoles et de toutes les facilités, hors zone inondable, venez découvrir cette jolie maison villageoise prête à vivre. Elle vous offre sur près de 100m², un bel espace de vie, une cuisine avec "espace à manger" et un accès vers l'extérieur, une salle de bain avec baignoire de coin, 3 chambres et grenier de rangement. Le tout est agrémenté d'un joli jardin plat et facile d'entretien, d'une place de parking privative sur le côté de la maison, d'une autre devant la maison, de 2 grandes caves dont une accessible depuis la terrasse arrière et d'une grande buanderie. Possibilité de réduction des droits d'enregistrement! Visites: appelez DIDIER au 0476/98.62.88... A bientôt! https://www.ccv-immobilier.be/fr/bien/a-vendre/maison/1490-court-saint-etienne/4577939

Adresse

Avenue des combattants 233 - 1490 Court-saint-Étienne

Général

Référence 4577939
Catégorie Maison
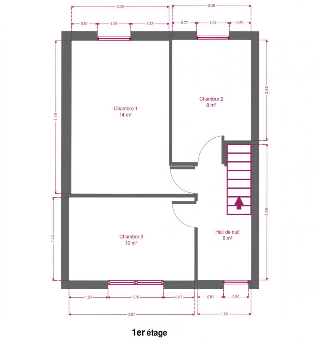
Nombre de chambres 3
Nombre de salles de bain 1
Jardin Oui
Surface du jardin 198 m²
Terrasse Oui
Surface habitable 96 m²
Surface du terrain 250 m²
Disponibilité à l'acte

Nom, catégorie & situation

Nombre d'étages (numéro) 3

En chiffres

Largeur front de rue 7.78
Surface bâtie (-) 52
Nbre de toilette(s) (nombre) 1
Chambre 1 (surface) 15 m²
Chambre 2 (surface) 9 m²
Chambre 3 (surface) 10 m²
Surface brute 142 m²
Surface nette 96 m²
Largeur de façade 6
Profondeur terrain 40
Nbre de terrasse(s) (nombre) 1
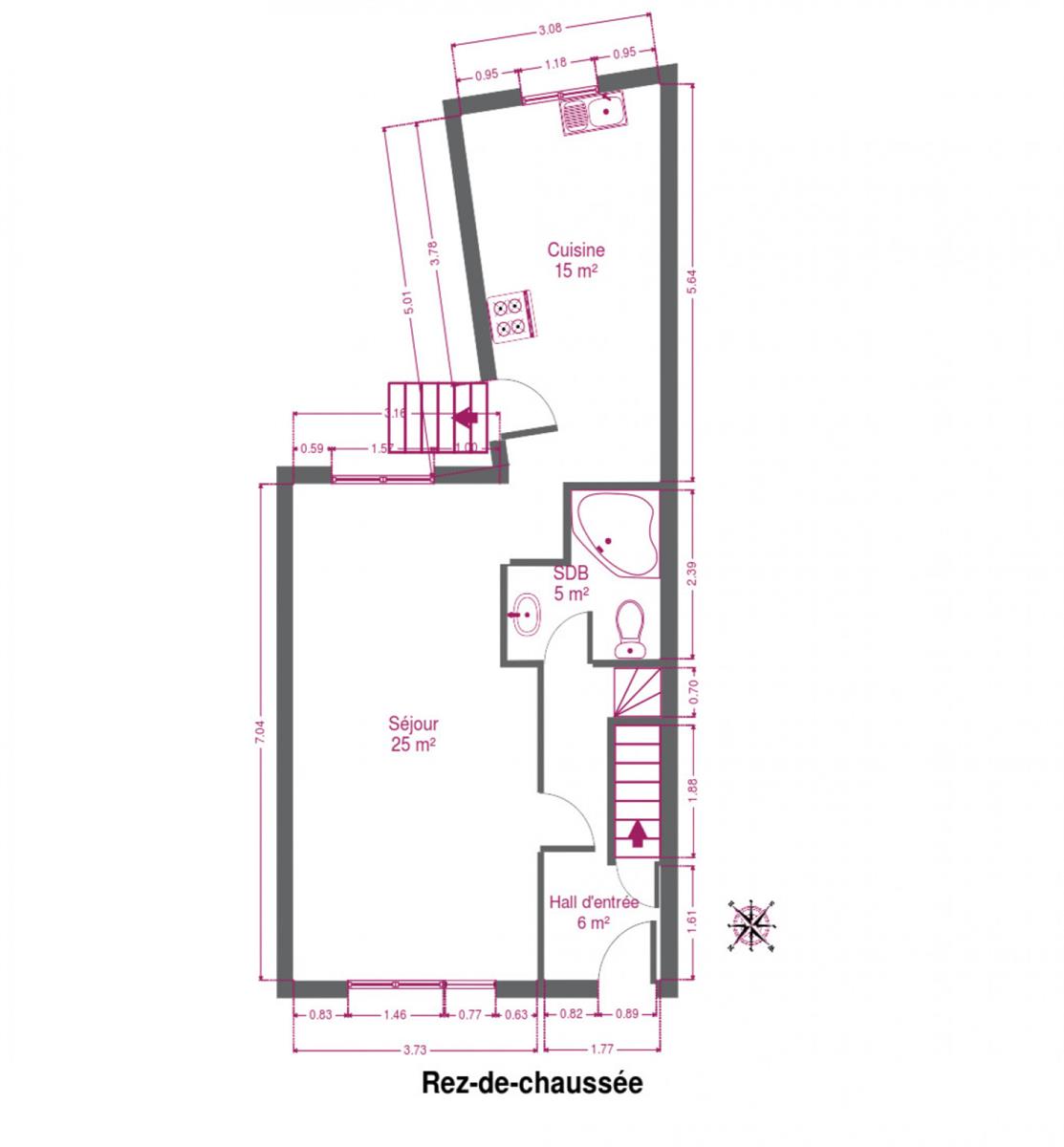
Salle de séjour (surface) 25 m²
Cuisine (surface) 16 m²
Buanderie (surface) 14 m²
Salle de bain 1 (surface) 5 m²
Caves (surface) 37 m²
Hall d'entrée (surface) 6 m²
Orientation de la terrasse 1 (-) sud-est
Hall de nuit (surface) 6 m²
Nbre de pièce(s) (Nombre) 12

Equipement de base

Cuisine Oui
Double vitrage Oui
Chauffage (Format/energie) gaz (chau. centr.)
Type de cuisine semi-équipée
Sdb (Type) douche dans le bain
Marque de chauffage BULEX

Divers

Buanderie Oui
Type de grenier seulement rangement
Cave Oui
Caves (détails) Voutée: oui

À proximité

Magasins (distance (m)) 1500
Écoles (distance (m)) 1000
Transports en commun (distance (m)) 70
Centre-ville (distance (m)) 1500
Magasins Oui
Ecoles Oui
Transports en commun Oui
Centre-ville Oui
Autoroute Oui
Autoroute (distance (m)) 6800
Gare Oui
Gare (distance (m)) 1400
Transports en commun - détails Bus 19 (Nivelles-Ottignies)
Détails écoles Collège Saint-Etienne

Équipements techniques

Centrale tél. Oui
Châssis (Ouvertures) pvc
Vitrage (type) double vitrage
Vitrage (détails) PVC blanc
Évier Oui
Type d'évier 1

Spécificités terrain

Type d'environnement résidentiel
Exposition de la façade avant (-) nord-ouest
Orientation de la terrasse (-) sud est

Caractéristiques Principales

Surface de terrasse 1 20 m²

Bâtiment

Parking(s) extérieur (nombre) 1
Type de toit en pente
Type de construction traditionnel

Type de matériau & évaluation

Type de revêtement de sol carrelages

Raccordements

Télévision par cable Oui
Gaz Oui
Câbles téléphoniques Oui
Eau Oui
Électricité (Détails) Bi-horaire

Equipement extérieur

Jardin (détails) sud-est, déclivité plat, Aménagé pelouse, fermé haies
Fosse septique Oui

Energie

Label PEB (Classe) E
PEB E-SPEC (kwh/m²/an) (Consommation énergétique) 376
E total (Kwh/an) 42730
PEB code unique (-) 20211124012217
Votre agent
Didier Piraux
E-mail Tel.
Prendre contact pour le bien : 4577939

* Champs obligatoires

Préférences pour les cookies

La protection de vos données personnelles est importante pour nous. C’est pourquoi nous détaillons ci-dessous les différents services et fonctionnalités du site qui utilisent des cookies et nous vous laissons décider des cookies que vous souhaitez autoriser ou refuser.

Veuillez cependant noter que si vous bloquez certains types de cookies, cela pourrait impacter votre expérience de navigation sur notre site ainsi que les fonctionnalités disponibles.

Nous utilisons des cookies fonctionnels obligatoires pour assurer le bon fonctionnement du site. Ils sont, par exemple, nécessaires pour retrouver le résultat d’une recherche ou enregistrer le choix de la langue.

Certaines fonctionnalités, comme l’affichage de vidéos ou de cartes géographiques, sont assurées via des composants externes développés par des partenaires comme YouTube ou Google. Certains composants utilisent des cookies qui sont susceptibles de permettre à ces tiers de suivre le comportement des internautes afin, par exemple, de réaliser du ciblage publicitaire. L’activation de ces fonctionnalités et des cookies associés est donc soumis à votre consentement.