Maison - vendu - 1490 Court-saint-Étienne -

Maison - à vendre - 1490 Court-saint-Étienne
3 1 120 m² PEB : D

Description

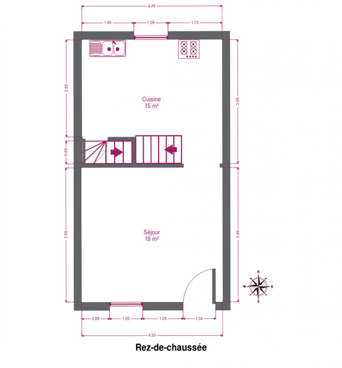
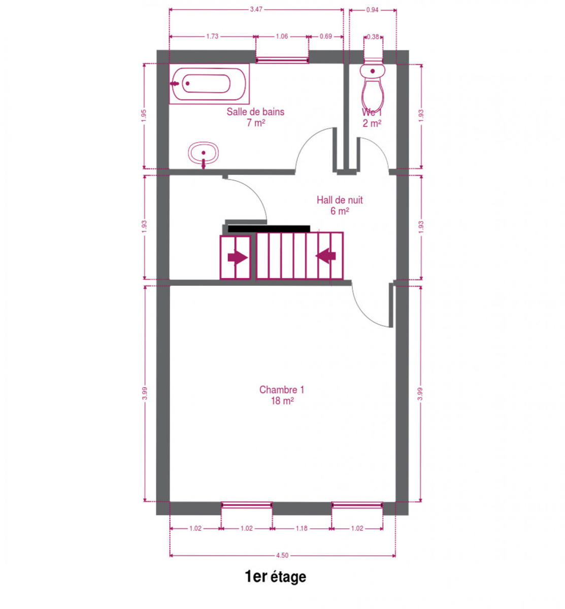
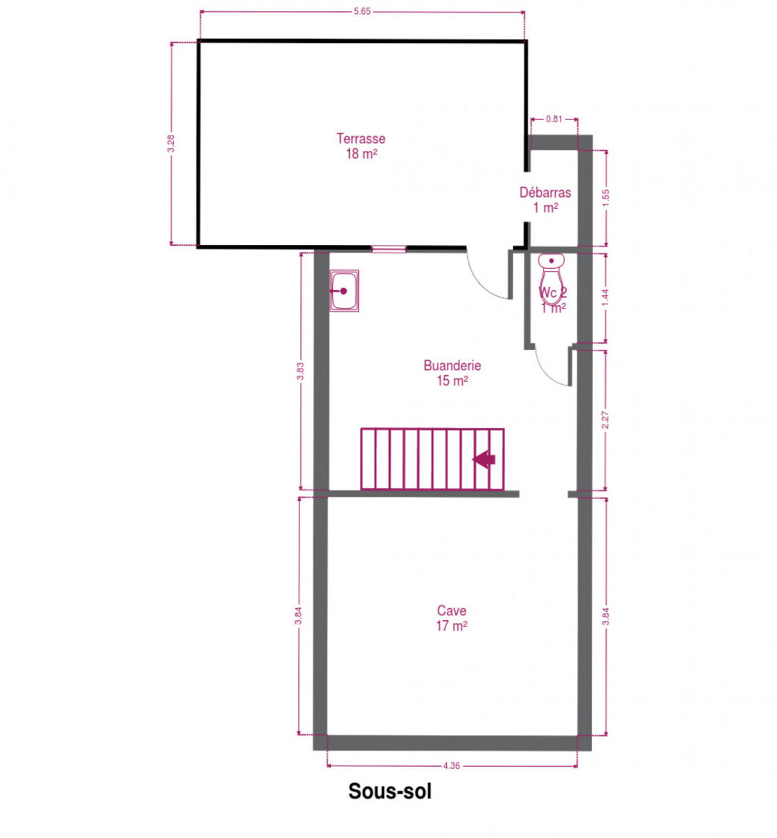
OPTION OPTION OPTION, COMPROMIS EN COURS... Venez découvrir cette très mignonne maison villageoise avec jardin, très bien entretenue et habitable immédiatement. IMPORTANT: la maison n'a pas été touchée par les inondations de juillet 2021! Située à proximité du centre de Court-Saint-Etienne, elle vous propose sur 140m² et 4 niveaux de très belles prestations: salon agréable et cosy, cuisine équipée incluant salle à manger au rez. Le 1er accueille une grande chambre parentale sur plancher, une salle de bain et un joli hall de nuit, plus 2 chambres au 2ème. Le rez-de-jardin inclut une cave de rangement très saine, un wc et une buanderie avec accès à la terrasse et au jardin. Pratique: école toute proche (Collège Saint-Etienne), gare de CSE, nombreux commerces et axes de circulation à qq minutes (N25/E411). Actuellement louée 730€, la libération des lieux se fera en fonction du locataire. Possibilité de réduction des droits d'enregistrement! https://www.ccv-immobilier.be/fr/bien/a-vendre/maison/1490-court-saint-etienne/4735122

Adresse

Avenue des Prisonniers de Guerre 10 - 1490 Court-saint-Étienne

Général

Référence 4735122
Catégorie Maison
Nombre de chambres 3
Nombre de salles de bain 1
Jardin Oui
Surface du jardin 203 m²
Terrasse Oui
Surface habitable 120 m²
Surface du terrain 238 m²
Disponibilité en fonct. du locataire

Bâtiment

Année de construction 1935
Type de construction traditionnel

Nom, catégorie & situation

Nombre d'étages (numéro) 3

En chiffres

Largeur front de rue 6.38
Surface bâtie (surf. bât. princ.) 35
Nbre de toilette(s) (nombre) 2
Chambre 1 (surface) 18 m²
Chambre 2 (surface) 17 m²
Chambre 3 (surface) 14 m²
Surface brute 140 m²
Surface nette 120 m²
Largeur de façade 5
Profondeur terrain 42
Nbre de terrasse(s) (nombre) 1
Salle de séjour (surface) 18 m²
Cuisine (surface) 15 m²
Buanderie (surface) 15 m²
Salle de bain 1 (surface) 7 m²
Caves (surface) 17 m²
Orientation de la terrasse 1 (-) nord-ouest
Hall de nuit (surface) 6 m²
Nbre de pièce(s) (Nombre) 13

Equipement de base

Cuisine Oui
Double vitrage Oui
Chauffage (Format/energie) gaz (chau. centr.)
Marque de chauffage Bulex

Divers

Buanderie Oui
Cave Oui

À proximité

Transports en commun (distance (m)) 150
Transports en commun Oui
Autoroute Oui
Autoroute (distance (m)) 1500
Gare Oui
Gare (distance (m)) 300

Raccordements

Égouts Oui
Télévision par cable Oui
Gaz Oui
Câbles téléphoniques Oui
Eau Oui
Électricité (Détails) Bi-horaire

Équipements techniques

Centrale tél. Oui
Châssis (Ouvertures) pvc
Type d'évier 2
Évier Oui

Spécificités terrain

Type d'environnement central
Exposition de la façade avant (-) sud
Orientation de la terrasse (-) nord ouest
Orientation du jardin (-) nord ouest

Charges & Rendement

Loué Oui

Caractéristiques Principales

Surface de terrasse 1 19 m²

Type de matériau & évaluation

Type de revêtement de sol carrelages
État de la toiture (appréciation) 4
État des châssis (-) 4

Equipement extérieur

Jardin (détails) nord, déclivité plat, Aménagé pelouse, fermé clôtures

Certificats énergétiques

Label PEB (Classe) D
PEB E-SPEC (kwh/m²/an) (Consommation énergétique) 313
E total (Kwh/an) 52311
PEB code unique (-) 20220429017655
PEB valide jusqu'au (validité) 29/04/2031
Votre agent
Didier Piraux
E-mail Tel.
Prendre contact pour le bien : 4735122

* Champs obligatoires

Préférences pour les cookies

La protection de vos données personnelles est importante pour nous. C’est pourquoi nous détaillons ci-dessous les différents services et fonctionnalités du site qui utilisent des cookies et nous vous laissons décider des cookies que vous souhaitez autoriser ou refuser.

Veuillez cependant noter que si vous bloquez certains types de cookies, cela pourrait impacter votre expérience de navigation sur notre site ainsi que les fonctionnalités disponibles.

Nous utilisons des cookies fonctionnels obligatoires pour assurer le bon fonctionnement du site. Ils sont, par exemple, nécessaires pour retrouver le résultat d’une recherche ou enregistrer le choix de la langue.

Certaines fonctionnalités, comme l’affichage de vidéos ou de cartes géographiques, sont assurées via des composants externes développés par des partenaires comme YouTube ou Google. Certains composants utilisent des cookies qui sont susceptibles de permettre à ces tiers de suivre le comportement des internautes afin, par exemple, de réaliser du ciblage publicitaire. L’activation de ces fonctionnalités et des cookies associés est donc soumis à votre consentement.