
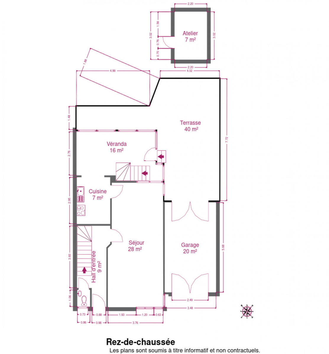
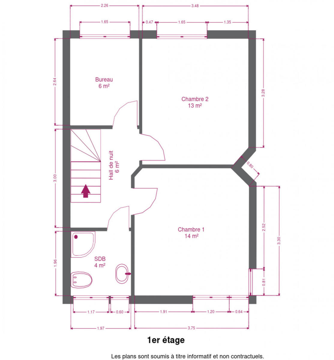
OPTION OPTION OPTION CCV Immobilier vous présente cette agréable maison familiale, située au calme et à proximité de nombreuses facilités! Elle vous offre sur plus de 200m², un très bel espace de vie chaleureux, une cuisine équipée ouverte sur une salle à manger. A l'étage une salle de douche, 3 chambres, un bureau et un grenier de rangement. Vous y trouverez également des caves, une buanderie, une chaufferie, un atelier et un garage. Le tout agrémenté d'une vaste véranda donnant sur une terrasse et un agréable jardin arboré de plus de 5 ares. Très bon niveau de prestation (PEB D): Chaudière "Viessmann" à condensation de 2013, toiture et isolation de 2010, double vitrage bois, raccord direct aux égouts et électricité bihoraire. Tous commerces à moins de 2km, école et crèche à proximité, bus, gare de Court-Saint-Etienne accessible à pieds et N25 à 5'. Venez la découvrir sans tarder en me contactant au 0474/88.59.30 ! https://www.ccv-immobilier.be/fr/bien/a-vendre/maison/1490-court-saint-etienne/5096185
Avenue Reine Astrid 44 - 1490 Court-saint-Étienne
Référence | 5096185 |
---|---|
Catégorie | Maison |
Nombre de chambres | 3 |
Nombre de salles de bain | 1 |
Jardin | Oui |
Garage | Oui |
Terrasse | Oui |
Surface habitable | 155 m² |
Surface du terrain | 520 m² |
Disponibilité | à l'acte |
Nombre d'étages | 3 |
---|
Nombre de garage | 1 |
---|---|
Parking extérieur | Oui |
Parking(s) extérieur (nombre) | 1 |
Type de toit | en pente |
Garage (détails) | 1 voiture |
Type de construction | traditionnel |
Largeur front de rue | 10 |
---|---|
Surface bâtie (surf. bât. princ.) | 81 |
Nbre de toilette(s) (nombre) | 2 |
Chambre 1 (surface) | 14.33 m² |
Chambre 2 (surface) | 13.2 m² |
Chambre 3 (surface) | 14.59 m² |
Surface brute | 203 m² |
Surface nette | 155 m² |
Largeur de façade | 9 |
Profondeur terrain | 51 |
Garage (surface) | 19.79 m² |
Nbre de terrasse(s) (nombre) | 1 |
Salle de séjour (surface) | 28.45 m² |
Cuisine (surface) | 6.67 m² |
Buanderie (surface) | 12.99 m² |
Salle de bain 1 (surface) | 3.86 m² |
Caves (surface) | 9.05 m² |
Grenier (surface) | 11.99 m² |
Bureau (surface) | 5.96 m² |
Hall d'entrée (surface) | 9.29 m² |
Orientation de la terrasse 1 | nord-ouest |
Hall de nuit (surface) | 6.29 m² |
Nbre de pièce(s) (nombre) | 20 |
Cuisine | Oui |
---|---|
Double vitrage | Oui |
Chauffage (type) | gaz (chau. centr.) |
Buanderie | Oui |
---|---|
Véranda | Oui |
Bureau | Oui |
Type de grenier | seulement rangement |
Grenier | Oui |
Cave | Oui |
Atelier | Oui |
---|---|
Jardin (détails) | nord-ouest, déclivité, Aménagé pelouse |
Atelier (surface) | 6.64 m² |
Abri de jardin | Oui |
Transports en commun (distance (m)) | 250 |
---|---|
Magasins | Oui |
Ecoles | Oui |
Transports en commun | Oui |
Centre-ville | Oui |
Autoroute | Oui |
Autoroute (distance (m)) | 2200 |
Gare | Oui |
Gare (distance (m)) | 600 |
Égouts | Oui |
---|---|
Citerne à mazout | Oui |
Télévision par cable | Oui |
Gaz | Oui |
Câbles téléphoniques | Oui |
Eau | Oui |
Électricité (Détails) | Bi-horaire |
Citerne à mazout (détails) | Apparente |
Centrale tél. | Oui |
---|---|
Châssis (type) | bois |
Type d'évier | 1 |
Évier | Oui |
Type d'environnement | calme |
---|---|
Exposition de la façade avant | sud-est |
Orientation de la terrasse | nord ouest |
Orientation du jardin | nord ouest |
Surface de terrasse 1 | 40 m² |
---|
Type de revêtement de sol | carrelages |
---|
Label PEB (classe) | D |
---|---|
PEB E-SPEC (kwh/m²/an) | 295 |
E total (Kwh/an) | 46992 |
PEB code unique | 20221114034402 |