Maison - vendu - 1490 Court-saint-Étienne -

Maison - à vendre - 1490 Court-saint-Étienne
4 1 135 m² PEB : D

Description

OPTION OPTION OPTION CCV Immobilier a le plaisir de vous présenter cette agréable maison villageoise rénovée. Elle est implantée sur une parcelle de 5 ares 90 centiares exposée ouest. Au rez-de-chaussée vous découvrirez une spacieuse pièce de vie de 35 m² (cuisine incluse), un wc, un hall d'entrée et un hall de rangement donnant accès aux caves. Au premier étage, vous trouverez 2 belles chambres de 13m² chacune, ainsi qu'une salle de bain avec baignoire et wc. Au deuxième étage  vous trouverez également 2 chambres supplémentaires de 17m² et 10m² avec placards intégrés. La maison bénéficie d'un passage latéral pour accéder au jardin. Situation idéale : Gare de Céroux-Mousty à quelques pas, centre d'Ottignies juste à côté et nombreuses écoles renommées à proximité ! Idéal pour 1er achat, possibilité des droits réduits. https://www.ccv-immobilier.be/fr/bien/a-vendre/maison/1490-court-saint-etienne/5195343

Adresse

Rue de la limite 79 - 1490 Court-saint-Étienne

Général

Référence 5195343
Catégorie Maison
Nombre de chambres 4
Nombre de salles de bain 1
Jardin Oui
Surface du jardin 544 m²
Surface habitable 135 m²
Surface du terrain 590 m²

Nom, catégorie & situation

Nombre d'étages (numéro) 3

En chiffres

Largeur front de rue 6
Surface bâtie (surf. bât. princ.) 46
Nbre de toilette(s) (nombre) 3
Chambre 1 (surface) 12.96 m²
Chambre 2 (surface) 13.05 m²
Chambre 3 (surface) 7.89 m²
Chambre 4 (surface) 13.8 m²
Surface brute 173 m²
Surface nette 135 m²
Largeur de façade 5
Profondeur terrain 96
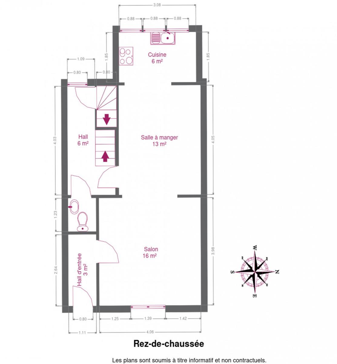
Salle à manger (surface) 13.24 m²
Cuisine (surface) 5.7 m²
Salle de bain 1 (surface) 5.76 m²
Caves (surface) 33.5 m²
Hall de nuit (surface) 8.28 m²
Nbre de pièce(s) (Nombre) 19

Equipement de base

Cuisine Oui
Double vitrage Oui
Chauffage (Format/energie) gaz (chau. centr.)
Type de cuisine équipée
Sdb (Type) bain
Marque de chauffage Vaillant
Cuisine (détails) ouverte

Divers

Buanderie Oui
Cave Oui

Sécurité

Volets Oui

À proximité

Magasins (distance (m)) 1000
Écoles (distance (m)) 1200
Transports en commun (distance (m)) 1000
Magasins Oui
Ecoles Oui
Transports en commun Oui
Autoroute Oui
Autoroute (distance (m)) 2800
Gare Oui
Gare (distance (m)) 650
Gare-détails Céroux-Mousty

Domaine juridique

Servitude Non
Permis de lotir Non
Destination bâtiment (type) privé - habitation
Droit de préemption Non
Affectation urbanistique zone d'habitat

Raccordements

Égouts Oui
Télévision par cable Oui
Gaz Oui
Câbles téléphoniques Oui
Eau Oui
Électricité (Détails) Bi-horaire

Équipements techniques

Centrale tél. Oui
Isolation Oui
Châssis (Ouvertures) pvc
Vitrage (type) double vitrage
Évier Oui
Type d'évier 1

Spécificités terrain

Type d'environnement calme
Exposition de la façade avant (-) est
Orientation du jardin (-) ouest

Bâtiment

Type de toit en pente
Type de construction traditionnel

Type de matériau & évaluation

Type de revêtement de sol carrelages

Equipement extérieur

Jardin (détails) orientation ouest, déclivité, Aménagé pelouse

Certificats énergétiques

Label PEB (Classe) D
PEB E-SPEC (kwh/m²/an) (Consommation énergétique) 327
E total (Kwh/an) 43936
PEB code unique (-) 20171127013372
Votre agent
Marie Surges
E-mail Tel.
Prendre contact pour le bien : 5195343

* Champs obligatoires

Préférences pour les cookies

La protection de vos données personnelles est importante pour nous. C’est pourquoi nous détaillons ci-dessous les différents services et fonctionnalités du site qui utilisent des cookies et nous vous laissons décider des cookies que vous souhaitez autoriser ou refuser.

Veuillez cependant noter que si vous bloquez certains types de cookies, cela pourrait impacter votre expérience de navigation sur notre site ainsi que les fonctionnalités disponibles.

Nous utilisons des cookies fonctionnels obligatoires pour assurer le bon fonctionnement du site. Ils sont, par exemple, nécessaires pour retrouver le résultat d’une recherche ou enregistrer le choix de la langue.

Certaines fonctionnalités, comme l’affichage de vidéos ou de cartes géographiques, sont assurées via des composants externes développés par des partenaires comme YouTube ou Google. Certains composants utilisent des cookies qui sont susceptibles de permettre à ces tiers de suivre le comportement des internautes afin, par exemple, de réaliser du ciblage publicitaire. L’activation de ces fonctionnalités et des cookies associés est donc soumis à votre consentement.