
OPTION !
Vous êtes à la recherche d'un bien vous permettant de laisser libre recours à votre imagination et à vos projets ?
Idéalement située dans le magnifique village de Sart-Messire-Guillaume, CCV Immobilier vous propose cette charmante bâtisse à rénover! Elle vous séduira par ses multiples possibilités d'aménagements et ses volumes attractifs (+/- 380m²)! Dans ce cadre bucolique et verdoyant, véritable paradis pour vos enfants, profitez aussi d'un terrain de 22 ares et 10 centiares dont vous ferez un verger, un potager, un poulailler,.... Intimité totale et havre de paix pour ce jardin orienté sud-est ! Situation particulièrement prisée: à proximité des axes routiers (N25/E411) et des transports en commun (gare de faux à 10' à pied/arrêt de bus à 2'), nombreux commerces tout proche dont un Proxi-Delhaize à 200m et plusieurs chemins de balades dans les bois ou les champs. Opportunité à saisir!
Faire offre à partir de 185.000 euros - sous réserve d'acceptation par le propriétaire.
Téléchargez le descriptif complet via le lien we transfer https://we.tl/t-17iepJjKlT
https://www.ccv-immobilier.be/fr/bien/a-vendre/maison/1490-court-saint-etienne/5201143
Rue de sart 63 - 1490 Court-saint-Étienne
Référence | 5201143 |
---|---|
Catégorie | Maison |
Nombre de chambres | 4 |
Jardin | Oui |
Garage | Oui |
Terrasse | Oui |
Parking | Oui |
Surface habitable | 220 m² |
Surface du terrain | 2210 m² |
Disponibilité | à l'acte |
Nombre d'étages | 3 |
---|
Nombre de garage | 2 |
---|---|
Type de construction | traditionnel |
Largeur front de rue | 22 |
---|---|
Surface bâtie (surf. bât. princ.) | 200 |
Nbre de toilette(s) (nombre) | 2 |
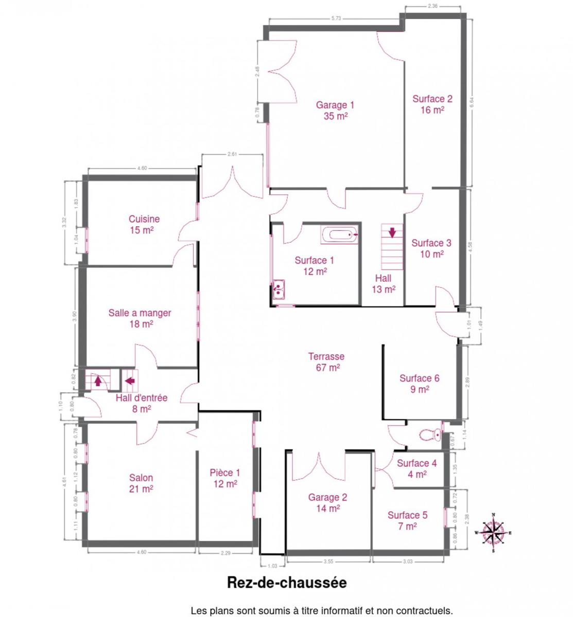
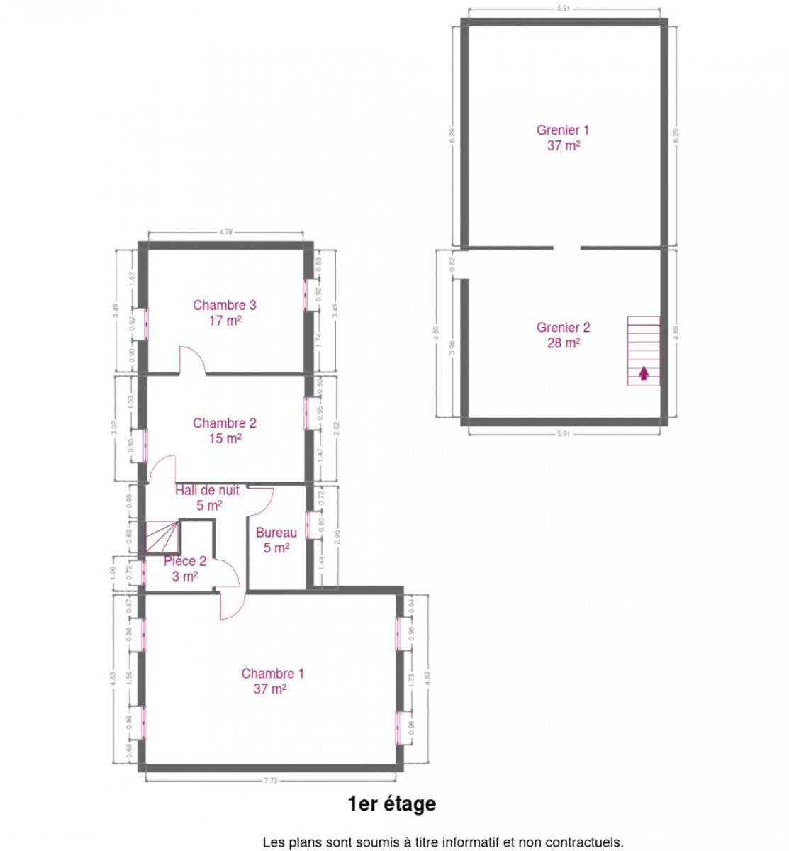
Chambre 1 (surface) | 37.35 m² |
Chambre 2 (surface) | 14.64 m² |
Chambre 3 (surface) | 16.71 m² |
Surface brute | 381 m² |
Surface nette | 220 m² |
Largeur de façade | 11 |
Profondeur terrain | 17 |
Garage (surface) | 35.36 m² |
Nbre de terrasse(s) (nombre) | 1 |
Salle à manger (surface) | 18.33 m² |
Cuisine (surface) | 15.29 m² |
Caves (surface) | 20.44 m² |
Grenier (surface) | 37.19 m² |
Bureau (surface) | 5.15 m² |
Hall d'entrée (surface) | 8.31 m² |
Hall de nuit (surface) | 4.86 m² |
Nbre de pièce(s) (nombre) | 24 |
Cuisine | Oui |
---|---|
Chauffage (type) | Pas installé |
Profession libérale poss. | Oui |
---|
Bureau | Oui |
---|---|
Type de grenier | possibilité d'équiper |
Grenier | Oui |
Cave | Oui |
Transports en commun (distance (m)) | 150 |
---|---|
Transports en commun | Oui |
Autoroute | Oui |
Autoroute (distance (m)) | 1000 |
Gare | Oui |
Gare (distance (m)) | 800 |
Égouts | Oui |
---|---|
Télévision par cable | Oui |
Câbles téléphoniques | Oui |
Eau | Oui |
Électricité (Détails) | Mono-horaire |
Centrale tél. | Oui |
---|---|
Châssis (type) | bois |
Type d'environnement | calme |
---|---|
Exposition de la façade avant | ouest |
Orientation de la terrasse | est |
Orientation du jardin | est |
Surface de terrasse 1 | 67 m² |
---|
Type de revêtement de sol | carrelages |
---|
Jardin (détails) | déclivité, Aménagé pelouse, est |
---|
Label PEB (classe) | G |
---|---|
PEB E-SPEC (kwh/m²/an) | 642 |
E total (Kwh/an) | 98814 |
PEB code unique | 20230121011626 |