
Option Option Option Située dans la village prisé de Sart-Messire-Guillaume, venez découvrir cette charmante villa familiale de 1954 à rafraichir sur une parcelle de 6 ares orientée Ouest. Elle offre actuellement 3 belles chambres dont 1 au rez de chaussée et 2 greniers aménageables permettant avec des aménagements une 4ème chambre. Double vitrage PVC en grande majorité, chauffage central au mazout, citerne d'eau de pluie et raccord direct aux égouts. Très belles caves avec un accès au jardin. Maison saine et de bonne qualité ! Magnifique jardin aménagé, arboré et fleuri avec un abri de jardin et un espace remorque. Passage latéral et parking privé pour plusieurs véhicules. Bus à 2 pas et gare accessible à pied. Petite superette (carrefour express) et école en immersion anglais dans le village. Vous serez séduits par son charme, ses volumes attractifs, sa situation et son beau jardin ! Une visite ? Contactez Marie au 0474/88.59.30
Rue de Sart 86 - 1490 Court-saint-Étienne
Référence | 5275636 |
---|---|
Catégorie | Maison |
Nombre de chambres | 3 |
Nombre de salles de bain | 1 |
Jardin | Oui |
Surface du jardin | 523 m² |
Terrasse | Oui |
Surface habitable | 142 m² |
Surface du terrain | 600 m² |
Disponibilité | à l'acte |
Année de construction | 1954 |
---|---|
Parking extérieur | Oui |
Parking(s) extérieur (nombre) | 4 |
Type de construction | traditionnel |
Nombre d'étages | 2 |
---|
Largeur front de rue | 17 |
---|---|
Surface bâtie (surf. bât. princ.) | 77 |
Nbre de toilette(s) (nombre) | 2 |
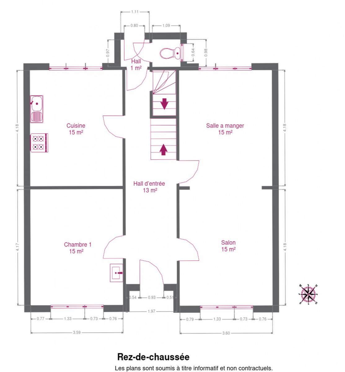
Chambre 1 (surface) | 14.97 m² |
Chambre 2 (surface) | 13.97 m² |
Chambre 3 (surface) | 13.31 m² |
Surface brute | 197 m² |
Surface nette | 142 m² |
Largeur de façade | 10 |
Profondeur terrain | 34 |
Nbre de terrasse(s) (nombre) | 1 |
Salle à manger (surface) | 15.04 m² |
Cuisine (surface) | 14.99 m² |
Salle de bain 1 (surface) | 8.74 m² |
Caves (surface) | 34.709999999999994 m² |
Grenier (surface) | 11.96 m² |
Hall de nuit (surface) | 8.25 m² |
Nbre de pièce(s) (nombre) | 18 |
Cuisine | Oui |
---|---|
Chauffage (type) | mazout (chauf. centr.) |
Volets | Oui |
---|---|
Volets (type) | type manuel |
Transports en commun (distance (m)) | 80 |
---|---|
Transports en commun | Oui |
Autoroute | Oui |
Autoroute (distance (m)) | 1100 |
Gare | Oui |
Gare (distance (m)) | 1000 |
Égouts | Oui |
---|---|
Citerne à mazout | Oui |
Télévision par cable | Oui |
Câbles téléphoniques | Oui |
Eau | Oui |
Électricité (Détails) | Mono-horaire |
Citerne à mazout (détails) | Enterrée, capacité - de 3000 L |
Centrale tél. | Oui |
---|---|
Châssis (type) | bois |
Évier | Oui |
Type d'évier | 1 |
Type d'environnement | calme |
---|---|
Exposition de la façade avant | sud-est |
Orientation de la terrasse | nord ouest |
Orientation du jardin | nord ouest |
Type de revêtement de sol | carrelages |
---|
Capacité de la citerne à mazout (capacite) | 3000 |
---|
Type de grenier | seulement rangement |
---|---|
Grenier | Oui |
Cave | Oui |
Revenu cadastral (€) (montant) | 924 € |
---|
Jardin (détails) | nord-ouest, déclivité, aménagé pelouse, Fermé clôtures, sud-est, Fermé haies barrières latérales, Aménagé pelouse |
---|
Label PEB (classe) | E |
---|---|
PEB E-SPEC (kwh/m²/an) | 406 |
E total (Kwh/an) | 66344 |
PEB code unique | 20230320040348 |