Maison - vendu - 1490 Court-saint-Étienne -

Maison - à vendre - 1490 Court-saint-Étienne
4 2 170 m² 1 PEB : D

Description

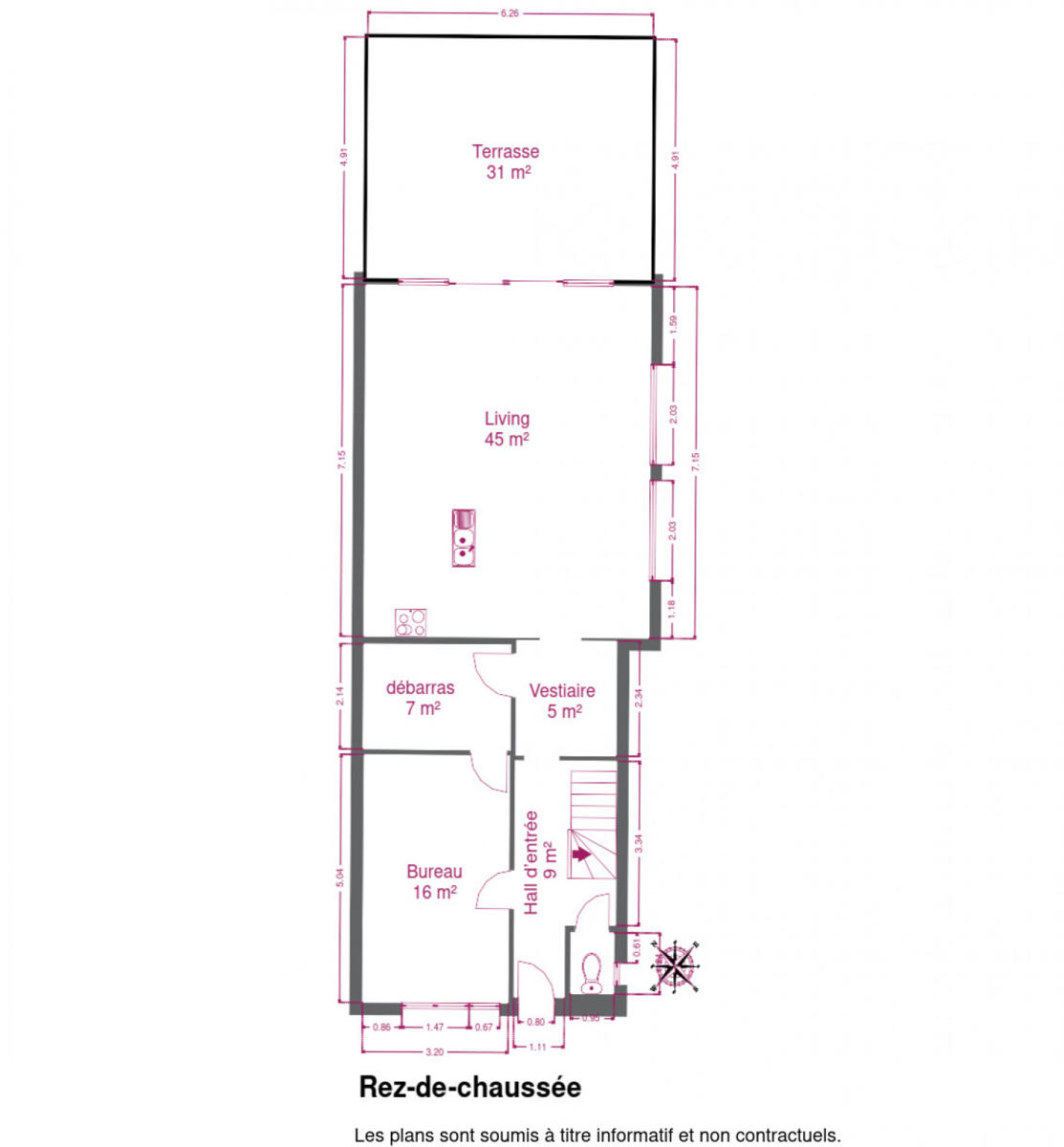
Située à proximité de toutes les facilités et proche du centre de Court-Saint-Etienne, venez découvrir cette très belle maison familiale offrant de multiples possibilités d'occupation! Sur 3 étages et 170m² habitables, elle vous propose au rdc: hall d'entrée, vestiaire, bureau (profession libérale), buanderie et splendide pièce de vie lumineuse avec cuisine américaine super équipée. Le 1er étage offre 2 chambres dont une suite parentale avec dressing, et une salle de douche. Au 2ème, vous trouverez 2 belles chambres, une salle de bains et un petit bureau. Une grande terrasse de 30m², accessible depuis l'espace de vie, donne sur un joli jardin très intime. Place de parking privative (possibilité de 2) devant la maison. Pratique: commerces, écoles, gare, bus et N25 à proximité immédiate.  A vos téléphones pour une visite qui s'impose! MARIE 0474 885930

Adresse

Avenue des Prisonniers de Guerre 38 - 1490 Court-saint-Étienne

Général

Référence 5280452
Catégorie Maison
Meublé Non
Nombre de chambres 4
Nombre de salles de bain 2
Jardin Oui
Surface du jardin 390 m²
Garage Non
Terrasse Oui
Parking Oui
Surface habitable 170 m²
Surface du terrain 473 m²
Disponibilité à l'acte

Nom, catégorie & situation

Nombre d'étages (numéro) 3

Bâtiment

Parking intérieur Non
Parking extérieur Oui
Parking(s) extérieur (nombre) 1
Type de toit toit plat
Type de construction traditionnel

Equipement de base

Cuisine Oui
Chauffage (Format/energie) gaz (chau. centr.)
Type de cuisine amer. super-équipée

Divers

Buanderie Oui
Bureau Oui
Vestiaire Oui

En chiffres

Nbre de toilette(s) (nombre) 3
Chambre 1 (surface) 13 m²
Chambre 2 (surface) 11 m²
Chambre 3 (surface) 13 m²
Chambre 4 (surface) 12 m²
Surface brute 170 m²
Surface nette 170 m²
Salle de séjour (surface) 45 m²
Cuisine (surface) 0 m²
Dressing (surface) 4 m²
Salle de bain 1 (surface) 5 m²
Sdd (surface) 6 m²
Bureau (surface) 16 m²
Hall d'entrée (surface) 9 m²
Orientation de la terrasse 1 (-) nord-est
Hall de nuit (surface) 5 m²

Domaine juridique

Profession libérale poss. Oui

À proximité

Transports en commun (distance (m)) 250
Transports en commun Oui
Autoroute Oui
Autoroute (distance (m)) 1600
Gare Oui
Gare (distance (m)) 500

Raccordements

Égouts Oui
Télévision par cable Oui
Gaz Oui
Câbles téléphoniques Oui
Eau Oui
Électricité (Détails) Mono-horaire

Équipements techniques

Châssis (Ouvertures) pvc
Type d'électricité 220 V
Évier Oui
Type d'évier 1,5

Spécificités terrain

Type d'environnement central
Orientation de la terrasse (-) nord est
Orientation du jardin (-) nord

Caractéristiques Principales

Surface de terrasse 1 30 m²

Type de matériau & évaluation

Type de revêtement de sol carrelages

Sécurité

Alarme Oui

Equipement extérieur

Jardin (détails) nord, déclivité, aménagé pelouse, Fermé haies
Cour Oui

Energie

Label PEB (Classe) D
PEB E-SPEC (kwh/m²/an) (Consommation énergétique) 260
E total (Kwh/an) 51812
PEB code unique (-) 20220503009859
PEB valide jusqu'au (validité) 03/05/2032
Date du PEB 03/05/2022
Votre agent
Marie Surges
E-mail Tel.
Prendre contact pour le bien : 5280452

* Champs obligatoires

Préférences pour les cookies

La protection de vos données personnelles est importante pour nous. C’est pourquoi nous détaillons ci-dessous les différents services et fonctionnalités du site qui utilisent des cookies et nous vous laissons décider des cookies que vous souhaitez autoriser ou refuser.

Veuillez cependant noter que si vous bloquez certains types de cookies, cela pourrait impacter votre expérience de navigation sur notre site ainsi que les fonctionnalités disponibles.

Nous utilisons des cookies fonctionnels obligatoires pour assurer le bon fonctionnement du site. Ils sont, par exemple, nécessaires pour retrouver le résultat d’une recherche ou enregistrer le choix de la langue.

Certaines fonctionnalités, comme l’affichage de vidéos ou de cartes géographiques, sont assurées via des composants externes développés par des partenaires comme YouTube ou Google. Certains composants utilisent des cookies qui sont susceptibles de permettre à ces tiers de suivre le comportement des internautes afin, par exemple, de réaliser du ciblage publicitaire. L’activation de ces fonctionnalités et des cookies associés est donc soumis à votre consentement.