Maison - vendu - 1490 Court-saint-Étienne -

Maison - à vendre - 1490 Court-saint-Étienne
2 1 126 m² PEB : G

Description

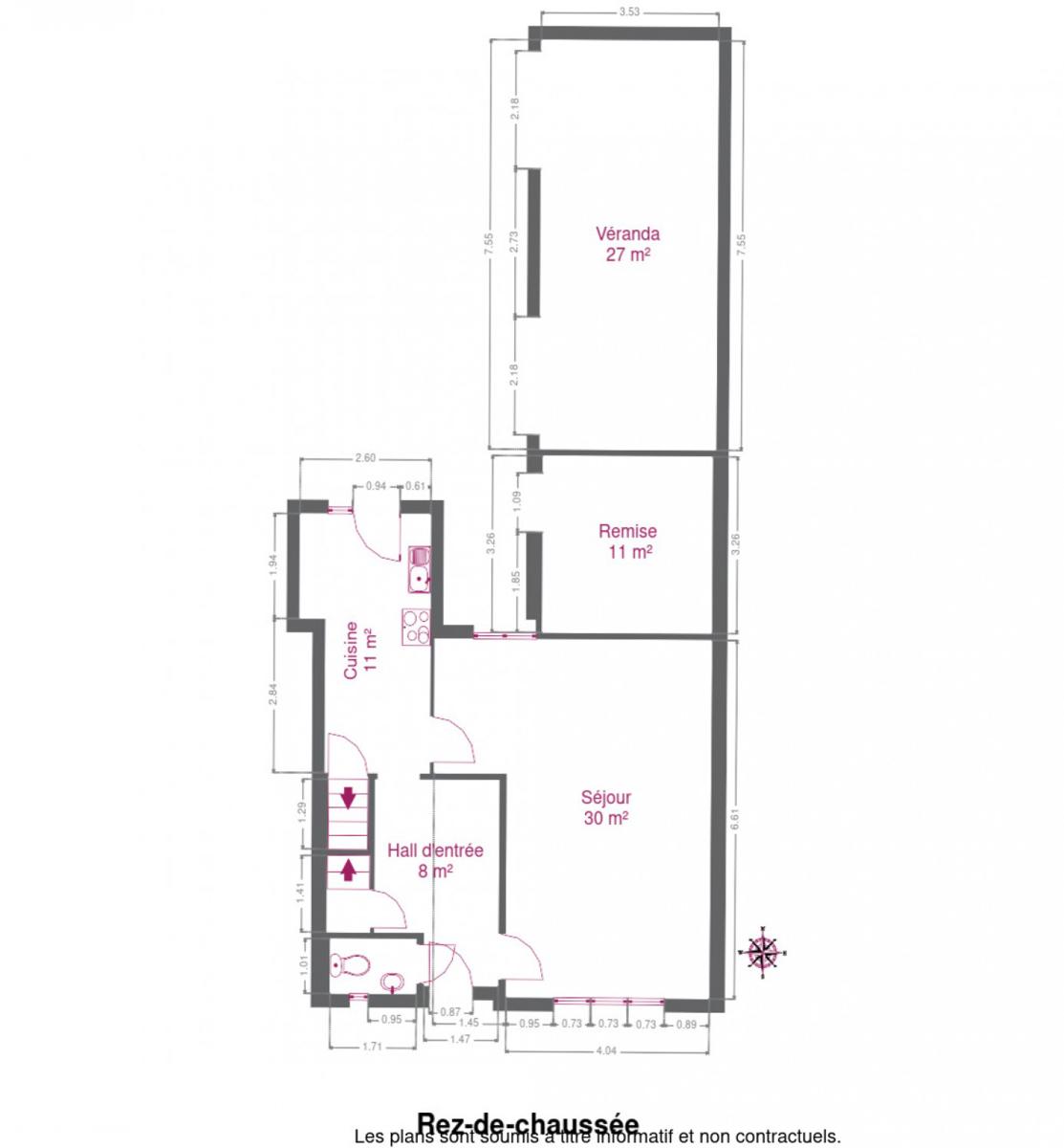
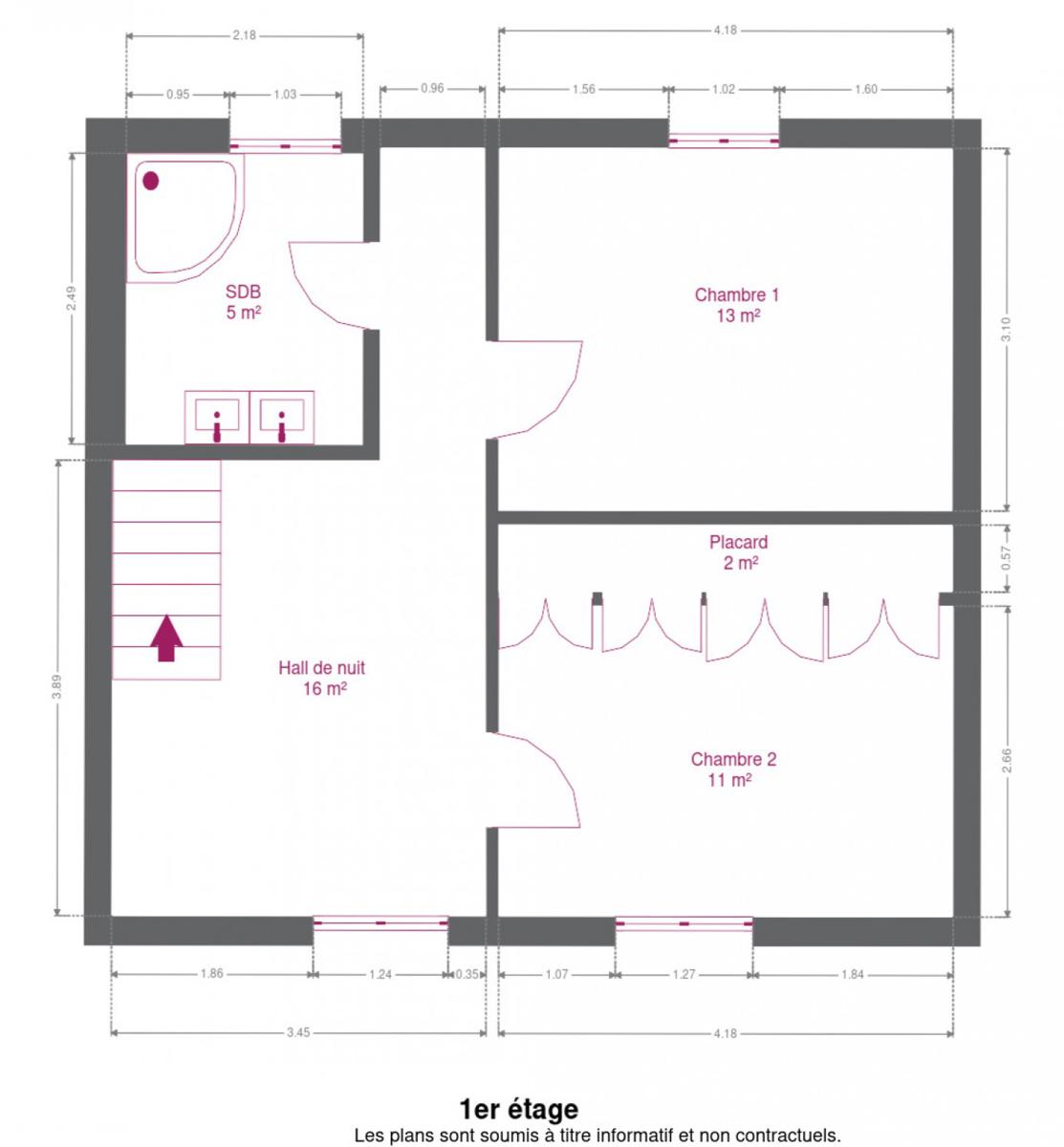
OPTION OPTION OPTION Laissez vous séduire par cette très jolie maison villageoise avec jardin, très bien entretenue et habitable immédiatement. Située à un jet de pierre du centre de Court-Saint-Etienne, elle offre au rez un hall d'entrée accueillant (actuellement aménagé en salon de coiffure), un bel espace de vie de 30m2 avec poêle à pellet, une lumineuse cuisine équipée et une buanderie. Au 1er étage, vous trouverez un vaste hall de nuit, 2 chambres(13 et 11m2) et une salle de douche. Le tout est complété par une cave de rangement saine de 19m2 et par une annexe de rangement. Vous profiterez également d'un agréable patio de 27m2 pour passer de chouettes soirées entre amis ou en famille et d'un joli jardin plat et facile d'entretien. Excellente situation stratégique: transports en communs (gare de CSE) et axes de circulations (N25, E411,...) à quelques minutes , nombreux commerces et écoles prisées aux alentours immédiats. Quelques travaux sont à prévoir: châssis, électricité,... Idéal pour un 1er achat. Une visite? Contactez Sybille au 0477361901 sans tardez!

Adresse

Avenue Paul Henricot 24 - 1490 Court-saint-Étienne

Général

Référence 5326931
Catégorie Maison
Nombre de chambres 2
Nombre de salles de bain 1
Jardin Oui
Surface du jardin 392 m²
Terrasse Oui
Surface habitable 126 m²
Surface du terrain 484 m²
Disponibilité à l'acte

Nom, catégorie & situation

Nombre d'étages (numéro) 2

En chiffres

Largeur front de rue 8
Surface bâtie (-) 92
Nbre de toilette(s) (nombre) 1
Chambre 1 (surface) 12.93 m²
Chambre 2 (surface) 11.11 m²
Surface brute 155 m²
Surface nette 126 m²
Largeur de façade 8
Profondeur terrain 54
Nbre de terrasse(s) (nombre) 1
Salle de séjour (surface) 30.37 m²
Cuisine (surface) 10.97 m²
Salle de bain 1 (surface) 5.41 m²
Caves (surface) 18.96 m²
Hall d'entrée (surface) 8.38 m²
Orientation de la terrasse 1 (-) est
Hall de nuit (surface) 15.97 m²
Nbre de pièce(s) (Nombre) 11

Equipement de base

Cuisine Oui
Chauffage (Format/energie) electrique

Divers

Véranda Oui
Cave Oui

À proximité

Transports en commun (distance (m)) 300
Transports en commun Oui
Autoroute Oui
Autoroute (distance (m)) 2100
Gare Oui
Gare (distance (m)) 600

Raccordements

Égouts Oui
Télévision par cable Oui
Câbles téléphoniques Oui
Eau Oui
Électricité (Détails) Mono-horaire

Équipements techniques

Centrale tél. Oui
Châssis (Ouvertures) bois
Évier Oui
Type d'évier 1

Spécificités terrain

Type d'environnement calme
Exposition de la façade avant (-) sud
Orientation du jardin (-) nord

Caractéristiques Principales

Surface de terrasse 1 27 m²

Type de matériau & évaluation

Type de revêtement de sol carrelages

Equipement extérieur

Jardin (détails) nord, déclivité, aménagé pelouse, Fermé clôtures
Cour Oui

Energie

Label PEB (Classe) G

Bâtiment

Type de construction traditionnel
Votre agent
Marie Surges
E-mail Tel.
Prendre contact pour le bien : 5326931

* Champs obligatoires

Préférences pour les cookies

La protection de vos données personnelles est importante pour nous. C’est pourquoi nous détaillons ci-dessous les différents services et fonctionnalités du site qui utilisent des cookies et nous vous laissons décider des cookies que vous souhaitez autoriser ou refuser.

Veuillez cependant noter que si vous bloquez certains types de cookies, cela pourrait impacter votre expérience de navigation sur notre site ainsi que les fonctionnalités disponibles.

Nous utilisons des cookies fonctionnels obligatoires pour assurer le bon fonctionnement du site. Ils sont, par exemple, nécessaires pour retrouver le résultat d’une recherche ou enregistrer le choix de la langue.

Certaines fonctionnalités, comme l’affichage de vidéos ou de cartes géographiques, sont assurées via des composants externes développés par des partenaires comme YouTube ou Google. Certains composants utilisent des cookies qui sont susceptibles de permettre à ces tiers de suivre le comportement des internautes afin, par exemple, de réaliser du ciblage publicitaire. L’activation de ces fonctionnalités et des cookies associés est donc soumis à votre consentement.