Maison - vendu - 1490 Court-saint-Étienne -

Maison - à vendre - 1490 Court-saint-Étienne
3 1 140 m² PEB : A

Description

OPTION  OPTION  OPTION Venez découvrir cette magnifique villa de 2013, impeccablement entretenue et aménagée avec goût. Prête à vivre, elle offre au rez un agréable hall d'entrée avec espace vestiaire, un bel espace de vie ouvert et lumineux, une superbe cuisine équipée ouverte avec bar et une vaste buanderie. Au 1er, vous trouverez 2 belles chambres dont une avec un dressing, un bureau donnant accès à la 3ème chambre située au 2ème étage et une spacieuse salle de bains. Un grenier aménageable de 25m2 (accessible via la 3ème chambre) et plusieurs emplacement de parking devant l'habitation complètent le tout.  En extérieur, vous profiterez d'un jardin aménagé plat et intimiste, ainsi qu'un salon de jardin avec un chalet et une pergola avec cuisine extérieure pour organiser vos meilleures soirées barbecue. Situation idéale: commerces, écoles tout proche, arrêt de bus à 200m et N25 à proximité immédiate. Très peu énergivore: elle est équipée d'un chauffage central au gaz de ville, de châssis double vitrage PVC partout, d'un PEB A et de panneaux photovoltaïques ! Coup de cœur assuré, elle vous séduira par la qualité de ses matériaux, sa convivialité de l'espace ainsi que par sa localisation idéale! Une visite ? Appelez Marie au 0474/88.59.30.

Adresse

Chaussée de Bruxelles 67 - 1490 Court-saint-Étienne

Général

Référence 5408852
Catégorie Maison
Nombre de chambres 3
Nombre de salles de bain 1
Jardin Oui
Surface du jardin 474 m²
Terrasse Oui
Parking Oui
Surface habitable 140 m²
Surface du terrain 531 m²
Disponibilité à l'acte

Bâtiment

Année de construction 2013
Parking extérieur Oui
Type de construction ossature bois

Nom, catégorie & situation

Nombre d'étages (numéro) 3

Equipement de base

Cuisine Oui
Chauffage (Format/energie) gaz (chau. centr.)
Type de cuisine amer. super-équipée

Divers

Buanderie Oui
Bureau Oui
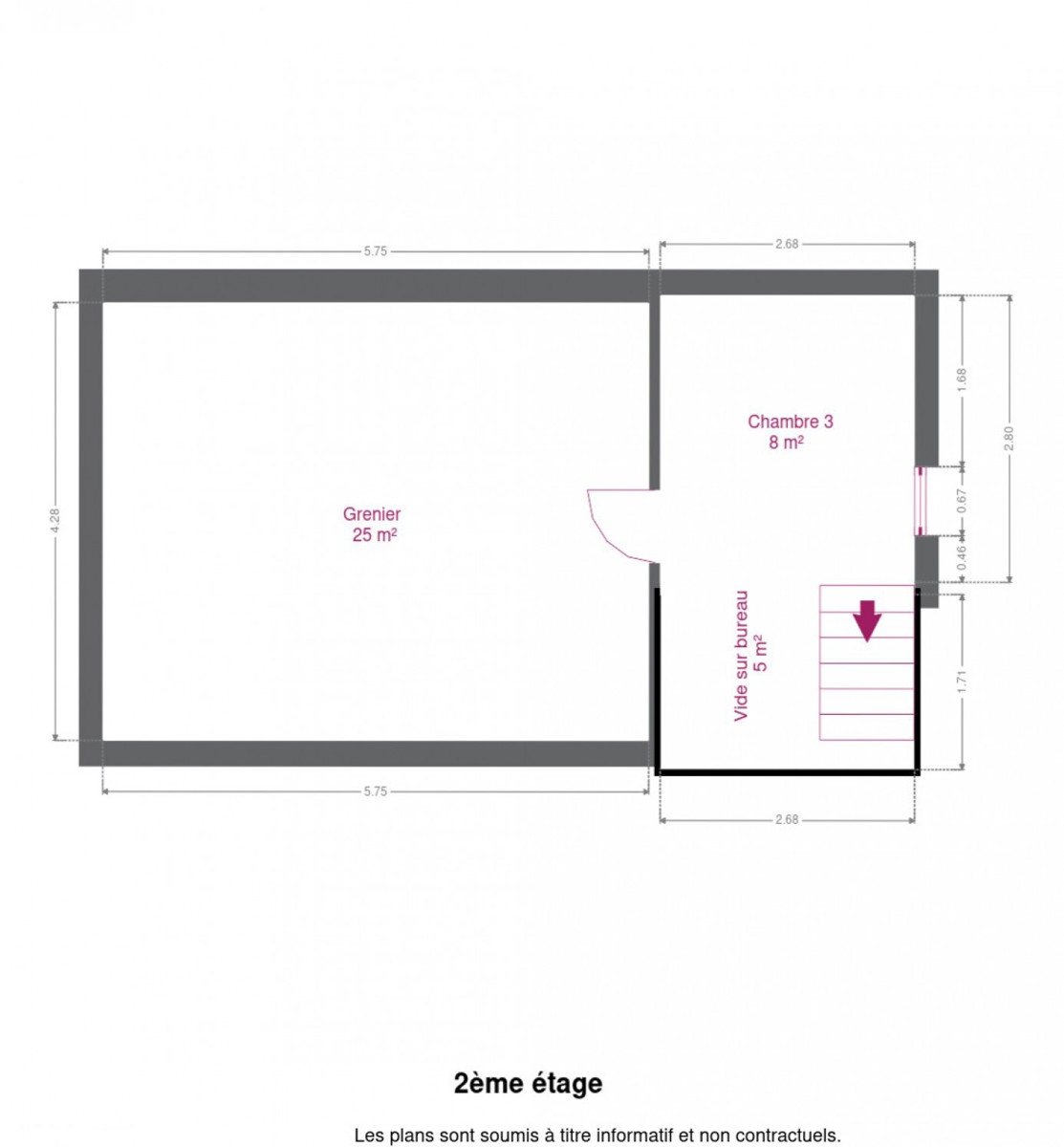
Type de grenier possibilité d'équiper
Grenier Oui

En chiffres

Nbre de toilette(s) (nombre) 2
Chambre 1 (surface) 10.69 m²
Chambre 2 (surface) 11.21 m²
Chambre 3 (surface) 7.51 m²
Surface brute 140 m²
Surface nette 116 m²
Orientation de la terrasse 2 (-) sud-est
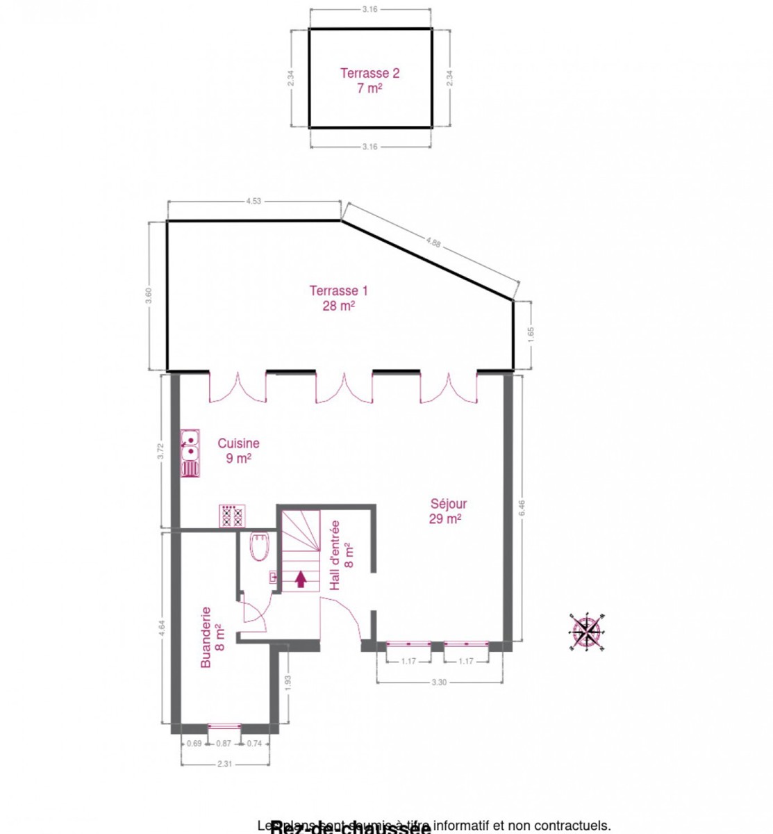
Salle de séjour (surface) 29.35 m²
Cuisine (surface) 9.29 m²
Buanderie (surface) 8.31 m²
Dressing (surface) 4.33 m²
Salle de bain 1 (surface) 7.83 m²
Grenier (surface) 24.62 m²
Bureau (surface) 7.09 m²
Hall d'entrée (surface) 8.42 m²
Orientation de la terrasse 1 (-) sud-ouest
Hall de nuit (surface) 10.25 m²

À proximité

Transports en commun (distance (m)) 200
Magasins Oui
Ecoles Oui
Transports en commun Oui
Centre-ville Oui
Centre sportif Oui
Autoroute Oui
Autoroute (distance (m)) 2700
Gare Oui
Gare (distance (m)) 2300

Raccordements

Égouts Oui
Télévision par cable Oui
Gaz Oui
Câbles téléphoniques Oui
Eau Oui
Électricité (Détails) Bi-horaire

Équipements techniques

Isolation Oui
Châssis (Ouvertures) pvc
Panneaux solaires Oui
Type de panneaux solaires photovoltaïque
Panneaux solaires (détails) Nombre de panneaux 10, photovoltaique
Évier Oui
Type d'évier 2

Spécificités terrain

Type d'environnement central
Orientation du jardin (-) nord ouest

Type de matériau & évaluation

Type de revêtement de sol carrelages

Cadastre

Revenu cadastral (€) (montant) 1614 €

Sécurité

Alarme Oui

Equipement extérieur

Citerne d'eau Oui
Jardin (détails) nord-ouest, déclivité, aménagé pelouse, Fermé haies, sud-ouest, Fermé palissades clôtures haies
Groupe hydrophore Oui
Station d'épuration Oui
Abri de jardin Oui

Energie

Label PEB (Classe) A
PEB E-SPEC (kwh/m²/an) (Consommation énergétique) 58
E total (Kwh/an) 8691
PEB code unique (-) 20230213018864
Votre agent
Marie Surges
E-mail Tel.
Prendre contact pour le bien : 5408852

* Champs obligatoires

Préférences pour les cookies

La protection de vos données personnelles est importante pour nous. C’est pourquoi nous détaillons ci-dessous les différents services et fonctionnalités du site qui utilisent des cookies et nous vous laissons décider des cookies que vous souhaitez autoriser ou refuser.

Veuillez cependant noter que si vous bloquez certains types de cookies, cela pourrait impacter votre expérience de navigation sur notre site ainsi que les fonctionnalités disponibles.

Nous utilisons des cookies fonctionnels obligatoires pour assurer le bon fonctionnement du site. Ils sont, par exemple, nécessaires pour retrouver le résultat d’une recherche ou enregistrer le choix de la langue.

Certaines fonctionnalités, comme l’affichage de vidéos ou de cartes géographiques, sont assurées via des composants externes développés par des partenaires comme YouTube ou Google. Certains composants utilisent des cookies qui sont susceptibles de permettre à ces tiers de suivre le comportement des internautes afin, par exemple, de réaliser du ciblage publicitaire. L’activation de ces fonctionnalités et des cookies associés est donc soumis à votre consentement.