Maison - vendu - 1490 Court-saint-Étienne -

Maison - à vendre - 1490 Court-saint-Étienne
4 1 128 m² PEB : E

Description

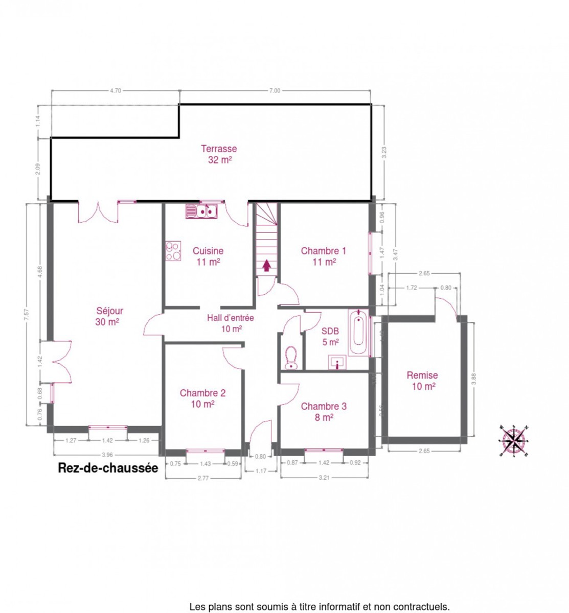
OPTION OPTION OPTION OPTION ! Une visite? Contactez Laurence au 0471/434859. Venez découvrir cette jolie villa de 1975 aménagée de plain-pied, située sur les hauteurs du très charmant village de Sart-Messire-Guillaume, à quelques minutes du centre de Court-Saint-Étienne et à 2 pas des plus beaux sentiers de randonnée. Sise sur un terrain de fond d'une superficie de 6 ares 71 ca, accessible via une allée, cette maison saura vous séduire grâce à ses pièces lumineuses et son agencement pratique. Elle propose un séjour de 30m² avec poêle à bois, une cuisine de 2022 équipée, 3 chambres et une salle de bains rénovée. À l'étage se trouve un grenier aménageable comprenant une pièce de 14m² et une chambre de 18m² avec lavabo, accessibles via escalier escamotable. Le sous-sol est constitué de plusieurs caves saines avec espaces buanderie et chaufferie. En extérieur, vous profiterez d'une spacieuse terrasse en partie sous pergola, d'un espace couvert pouvant servir de carport ou de seconde terrasse orientée sud-ouest, d'un jardin facile d'entretien et d'un abri de rangement. Technique: chauffage central au mazout - châssis PVC de 2014 - citerne eau de pluie. Habitable de suite, cette maison n'attend plus que vos valises ! Une visite? Contactez Laurence au 0471/434859 https://www.ccv-immobilier.be/fr/bien/a-vendre/maison/1490-court-saint-etienne/5494844
Faire Offre à partir de 370 000€ sous réserve de l'acceptation des propriétaires.

Adresse

Rue Massart 2A - 1490 Court-saint-Étienne

Général

Référence 5535783
Catégorie Maison
Meublé Non
Nombre de chambres 4
Nombre de salles de bain 1
Jardin Oui
Surface du jardin 671 m²
Garage Non
Terrasse Oui
Parking Oui
Surface habitable 128 m²
Surface du terrain 671 m²
Disponibilité 15/12/2023

Bâtiment

Année de construction 1975
Parking intérieur Non
Parking extérieur Oui
Espace ventilé Oui
Carport Oui
Année de rénovation 2022
Type de construction traditionnel

Nom, catégorie & situation

Nombre d'étages (numéro) 2

Equipement de base

Cuisine Oui
Chauffage (Format/energie) mazout (chauf. centr.)
Type de cuisine équipée

En chiffres

Nbre de toilette(s) (nombre) 1
Chambre 1 (surface) 11 m²
Chambre 2 (surface) 10 m²
Chambre 3 (surface) 8 m²
Surface brute 172 m²
Surface nette 86 m²
Orientation de la terrasse 2 (-) sud-ouest
Salle de séjour (surface) 30 m²
Cuisine (surface) 11 m²
Salle de bain 1 (surface) 5 m²
Caves (surface) 29 m²
Grenier (surface) 56 m²
Orientation de la terrasse 1 (-) nord-ouest

Sécurité

Volets Oui
Détails volets (type) type manuel

À proximité

Transports en commun (distance (m)) 150
Transports en commun Oui
Autoroute Oui
Autoroute (distance (m)) 1600
Gare Oui
Gare (distance (m)) 800
Transports en commun - détails bus

Raccordements

Égouts Oui
Citerne à mazout Oui
Télévision par cable Oui
Câbles téléphoniques Oui
Eau Oui
Électricité (Détails) Bi-horaire
Citerne à mazout (détails) Apparente, capacité 2000 L

Équipements techniques

Châssis (Ouvertures) pvc
Vitrage (type) double vitrage

Spécificités terrain

Type d'environnement calme
Orientation de la terrasse (-) nord ouest

Caractéristiques Principales

Surface de terrasse 1 33 m²

Type de matériau & évaluation

Type de revêtement de sol parquet

Certificats / Attestations

Capacité de la citerne à mazout 2000

Divers

Type de grenier possibilité d'équiper
Grenier Oui
Cave Oui
Grenier (détails) aménageable - accès via trappe
Caves (détails) 25m² - saines

Cadastre

Revenu cadastral (€) (montant) 1236 €

Equipement extérieur

Citerne d'eau Oui
Citerne d'eau - capacité 2000
Abri de jardin Oui

Certificats énergétiques

Label PEB (Classe) E
PEB E-SPEC (kwh/m²/an) (Consommation énergétique) 361
E total (Kwh/an) 58820
PEB code unique (-) 20230818024942
Votre agent
Marie Verlinden
E-mail Tel.
Prendre contact pour le bien : 5535783

* Champs obligatoires

Préférences pour les cookies

La protection de vos données personnelles est importante pour nous. C’est pourquoi nous détaillons ci-dessous les différents services et fonctionnalités du site qui utilisent des cookies et nous vous laissons décider des cookies que vous souhaitez autoriser ou refuser.

Veuillez cependant noter que si vous bloquez certains types de cookies, cela pourrait impacter votre expérience de navigation sur notre site ainsi que les fonctionnalités disponibles.

Nous utilisons des cookies fonctionnels obligatoires pour assurer le bon fonctionnement du site. Ils sont, par exemple, nécessaires pour retrouver le résultat d’une recherche ou enregistrer le choix de la langue.

Certaines fonctionnalités, comme l’affichage de vidéos ou de cartes géographiques, sont assurées via des composants externes développés par des partenaires comme YouTube ou Google. Certains composants utilisent des cookies qui sont susceptibles de permettre à ces tiers de suivre le comportement des internautes afin, par exemple, de réaliser du ciblage publicitaire. L’activation de ces fonctionnalités et des cookies associés est donc soumis à votre consentement.