Maison - option v. - 1490 Court-saint-Étienne -

Maison - à vendre - 1490 Court-saint-Étienne
3 1 176 m² 1 PEB : E

Description

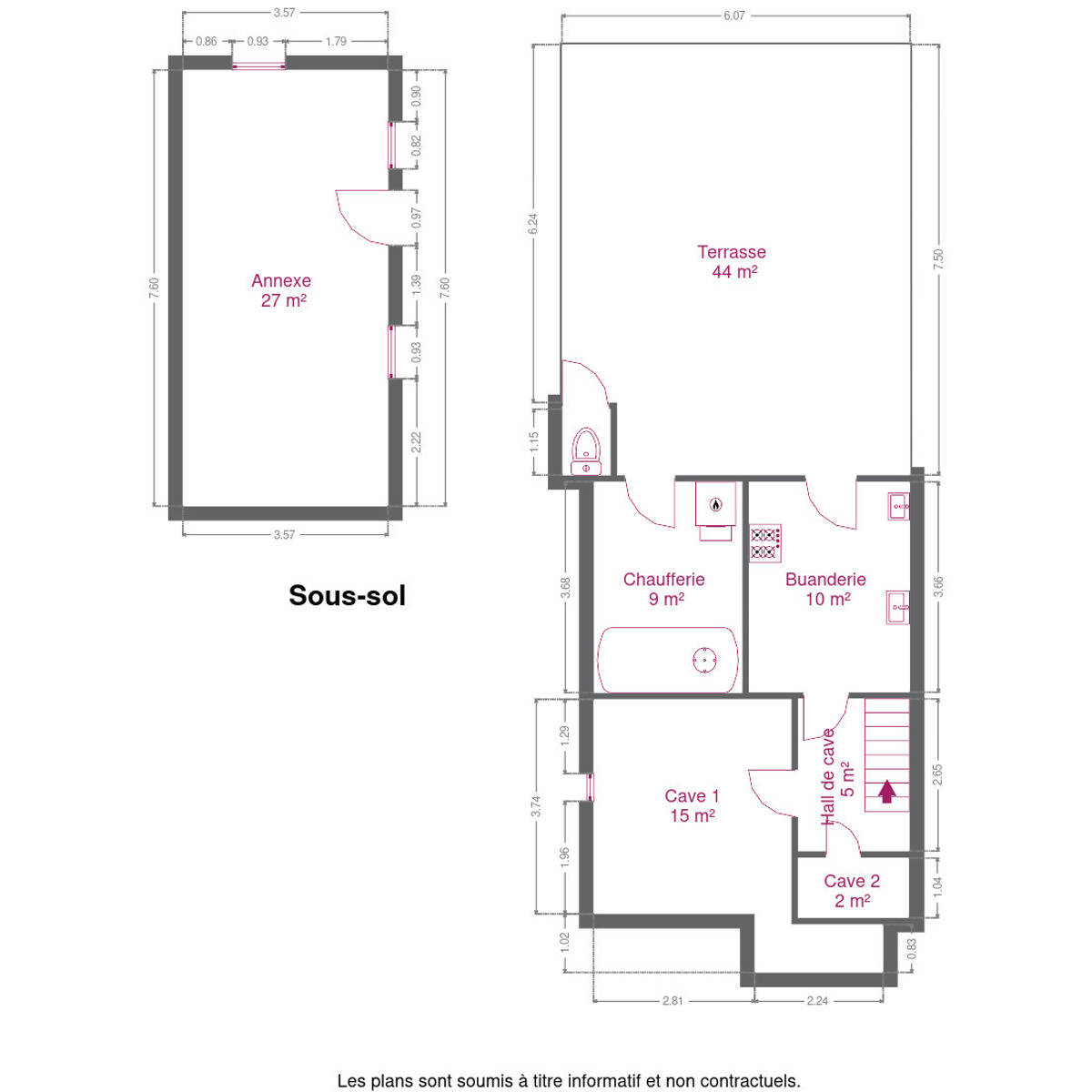
VISITES SANS RDV, PORTES OUVERTES le 15/11 de 10h à 12h. Située dans un environnement calme et verdoyant, cette maison villageoise 3 façades à rénover séduit par son cachet authentique et ses espaces généreux. Le rez-de-chaussée offre une agréable pièce de vie avec poêle au charbon et carreaux de ciment, une salle à manger conviviale ainsi qu’une cuisine équipée. À l’étage, deux chambres confortables et une salle de douche composent la partie nuit. Le grenier aménageable offre la possibilité de créer des chambres supplémentaires ou une suite parentale. Le sous-sol dispose de caves saines et d’une buanderie avec accès direct à l’extérieur. Vous profiterez d’une vaste terrasse bien orientée, d’un grand jardin (en pente) de 37 ares clôturé et d’un garage/atelier de 52m² avec porte automatique. Vous découvrirez également, une superbe pièce indépendante de la maison de 27m² avec poêle à pellets, accessible depuis le passage latérale, qui constitue un espace polyvalent idéal pour recevoir ou exercer une activité professionnelle. Idéalement située à proximité d’un supermarché, d’écoles, des transports et des grands axes (N4, N25, E411), cette maison combine charme, confort et potentiel d’évolution. Faire offre à partir de 300 000€ sous réserve de l'accord des propriétaires. Une visite vous intéresse ? Ne manquez pas les portes ouvertes prévues le samedi 15/11 de 10h à 12h. ( visites libres sans rdv) https://www.ccv-immobilier.be/fr/bien/a-vendre/maison/1490-court-saint-etienne/7252067

Adresse

Rue du cerisier 67 - 1490 Court-saint-Étienne

Général

Référence 7252067
Catégorie Maison
Nombre de chambres 3
Nombre de salles de bain 1
Jardin Oui
Surface du jardin 3539 m²
Garage Oui
Terrasse Oui
Surface habitable 176 m²
Surface du terrain 3702 m²
Disponibilité à l'acte

Nom, catégorie & situation

Nombre d'étages (numéro) 2

Bâtiment

Nombre de garage 1
Parking intérieur Oui
Type de construction traditionnel

Equipement de base

Cuisine Oui
Chauffage (Format/energie) mazout (chauf. centr.)

Divers

Buanderie Oui
Type de grenier possibilité d'équiper
Grenier Oui
Cave Oui

En chiffres

Nbre de toilette(s) (nombre) 2
Chambre 1 (surface) 13.33 m²
Chambre 2 (surface) 10.57 m²
Surface brute 238 m²
Surface nette 176 m²
Garage (surface) 53.96 m²
Salle à manger (surface) 13.32 m²
Cuisine (surface) 5.75 m²
Buanderie (surface) 10.25 m²
Caves (surface) 16.869999999999997 m²
Grenier (surface) 43.31 m²
Hall d'entrée (surface) 7.22 m²
Hall de nuit (surface) 10.54 m²

À proximité

Transports en commun (distance (m)) 70
Transports en commun Oui
Autoroute Oui
Autoroute (distance (m)) 5900
Gare Oui
Gare (distance (m)) 2600

Equipement extérieur

Annexe Oui
Surface (m²) de annexe 27.15 m²

Raccordements

Égouts Oui
Citerne à mazout Oui
Télévision par cable Oui
Câbles téléphoniques Oui
Eau Oui
Électricité (Détails) Bi-horaire
Citerne à mazout (détails) Apparente, capacité 2500 L

Équipements techniques

Châssis (Ouvertures) bois
Évier Oui
Type d'évier 2

Spécificités terrain

Type d'environnement zone d'habitation

Type de matériau & évaluation

Type de revêtement de sol carrelages

Certificats / Attestations

Capacité de la citerne à mazout 2500

Energie

Label PEB (Classe) E
PEB E-SPEC (kwh/m²/an) (Consommation énergétique) 382
E total (Kwh/an) 47021
PEB code unique (-) 20251103040746
PEB valide jusqu'au (validité) 03/11/2035
Date du PEB 03/11/2025
Votre agent
Martin Knaepen
E-mail Tel.
Prendre contact pour le bien : 7252067

* Champs obligatoires

Préférences pour les cookies

La protection de vos données personnelles est importante pour nous. C’est pourquoi nous détaillons ci-dessous les différents services et fonctionnalités du site qui utilisent des cookies et nous vous laissons décider des cookies que vous souhaitez autoriser ou refuser.

Veuillez cependant noter que si vous bloquez certains types de cookies, cela pourrait impacter votre expérience de navigation sur notre site ainsi que les fonctionnalités disponibles.

Nous utilisons des cookies fonctionnels obligatoires pour assurer le bon fonctionnement du site. Ils sont, par exemple, nécessaires pour retrouver le résultat d’une recherche ou enregistrer le choix de la langue.

Certaines fonctionnalités, comme l’affichage de vidéos ou de cartes géographiques, sont assurées via des composants externes développés par des partenaires comme YouTube ou Google. Certains composants utilisent des cookies qui sont susceptibles de permettre à ces tiers de suivre le comportement des internautes afin, par exemple, de réaliser du ciblage publicitaire. L’activation de ces fonctionnalités et des cookies associés est donc soumis à votre consentement.