
OPTION ! - Venez découvrir cette charmante maison villageoise sise dans une rue calme et à deux pas des commerces et transports en commun. Vous serez séduits par son atmosphère "cocoon" subtilement aménagée par sa propriétaire. La cuisine équipée, propose un coin à déjeuner et s'ouvre sur le séjour qui profite d'une vue plongeante sur un magnifique jardin de plus de 12ares. Vous pourrez y découvrir de jeunes arbres fruitiers aux essences multiples, véritable régal pour vos pupilles et papilles! Depuis le séjour, vous accéderez à l'étage composé de 2 chambres de 14m² et 13m² ainsi qu'une lumineuse salle de bains. Grand grenier de plus de 28m² que vous pourrez aménager à votre guise en 3e chambre par exemple, accessible via un escalier existant. Caves et garage viennent compléter le tout. Technique : chauffage au gaz de ville, électricité bihoraire et double vitrage bois. Habitable directement, idéale pour 1er achat ou investissement! Possibilité des droits d'enregistrement réduits (RC net 520€) . Faire offre à partir de 285.000 euros, sous réserve d'acceptation du propriétaire ! Venez la visiter sans tarder. Contactez Laurence 0471/434859 - https://www.ccv-immobilier.be/fr/bien/a-vendre/maison/1490-court-st-etienne/5453972
Rue du Pont de Pierres 50 - 1490 Court-St.-Etienne
Référence | 5453972 |
---|---|
Catégorie | Maison |
Nombre de chambres | 3 |
Nombre de salles de bain | 1 |
Jardin | Oui |
Surface du jardin | 1238 m² |
Garage | Oui |
Parking | Oui |
Surface du terrain | 1238 m² |
Disponibilité | à l'acte |
Nombre d'étages (numéro) | 3 |
---|
Nombre de garage | 1 |
---|---|
Parking extérieur | Oui |
Type de construction | traditionnel |
Cuisine | Oui |
---|---|
Chauffage (Format/energie) | gaz (chau. centr.) |
Nbre de toilette(s) (nombre) | 2 |
---|---|
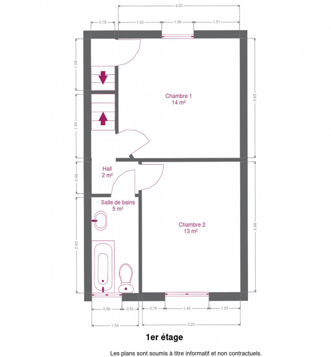
Chambre 1 (surface) | 14.39 m² |
Chambre 2 (surface) | 12.88 m² |
Surface brute | 145 m² |
Garage (surface) | 10.45 m² |
Salle de séjour (surface) | 15.67 m² |
Cuisine (surface) | 14.86 m² |
Salle de bain 1 (surface) | 4.52 m² |
Caves (surface) | 25.79 m² |
Grenier (surface) | 25.78 m² |
Hall d'entrée (surface) | 2.74 m² |
Transports en commun (distance (m)) | 300 |
---|---|
Transports en commun | Oui |
Autoroute | Oui |
Autoroute (distance (m)) | 1000 |
Gare | Oui |
Gare (distance (m)) | 1100 |
Égouts | Oui |
---|---|
Télévision par cable | Oui |
Gaz | Oui |
Câbles téléphoniques | Oui |
Eau | Oui |
Électricité (Détails) | Bi-horaire |
Châssis (Ouvertures) | bois |
---|---|
Type d'évier | 2 |
Évier | Oui |
Type d'environnement | central |
---|---|
Orientation du jardin (-) | sud ouest |
Type de revêtement de sol | carrelages |
---|
Type de grenier | possibilité d'équiper |
---|---|
Grenier | Oui |
Cave | Oui |
Jardin (détails) | sud-ouest, déclivité, aménagé pelouse, Fermé, nord-ouest, Aménagé pelouse |
---|
Label PEB (Classe) | G |
---|---|
PEB E-SPEC (kwh/m²/an) (Consommation énergétique) | 577 |
E total (Kwh/an) | 70694 |
PEB code unique (-) | 20200130013674 |