Maison - vendu - 1495 Marbais -

Maison - à vendre - 1495 Marbais
4 1 208 m² PEB : F

Description

!!! VENDU !!!... Très chouette maison familiale prête à vivre, située au calme du joli village de Marbais. Elle vous offre sur plus de 200m², un très bel espace de vie chaleureux, une grande cuisine équipée ouverte sur une salle à manger. A l'étage une salle de bains, 2 chambres dont une suite parentale de 30m² (anciennement 2 chambres distinctes, donc possibilité de 3 chambres au 1er étage), un grand grenier aménageable de 60m² desservi par un escalier existant, possibilité de 2 chambres supplémentaires et une salle d'eau. Le tout agrémenté d'une vaste véranda donnant sur une terrasse et un agréable jardin arboré de près de 8 ares orienté plein sud! Tous commerces à Marbais, Colruyt à 2km, école et crèche à proximité, bus, gare de Tilly accessible à pieds (ligne Charleroi-Ottignies), N25 à 10'. Venez la découvrir sans tarder en me contactant au 0476/98.62.88! https://www.ccv-immobilier.be/fr/bien/a-vendre/maison/1495-marbais/3964607

Adresse

Rue Ruffin 38 - 1495 Marbais

Général

Référence 3964607
Catégorie Maison
Meublé Non
Nombre de chambres 4
Nombre de salles de bain 1
Jardin Oui
Garage Non
Terrasse Oui
Parking Non
Surface habitable 208 m²
Surface du terrain 689 m²
Disponibilité à l'acte

Bâtiment

Année de construction 1895
Parking extérieur Non
Année de rénovation 1995

Nom, catégorie & situation

Nombre d'étages (numéro) 2

En chiffres

Surface bâtie (surf. bât. princ.) 96
Nbre de toilette(s) (nombre) 1
Chambre 1 (surface) 28 m²
Chambre 2 (surface) 17 m²
Surface nette 208 m²
Largeur de façade 7
Nbre de terrasse(s) (nombre) 1
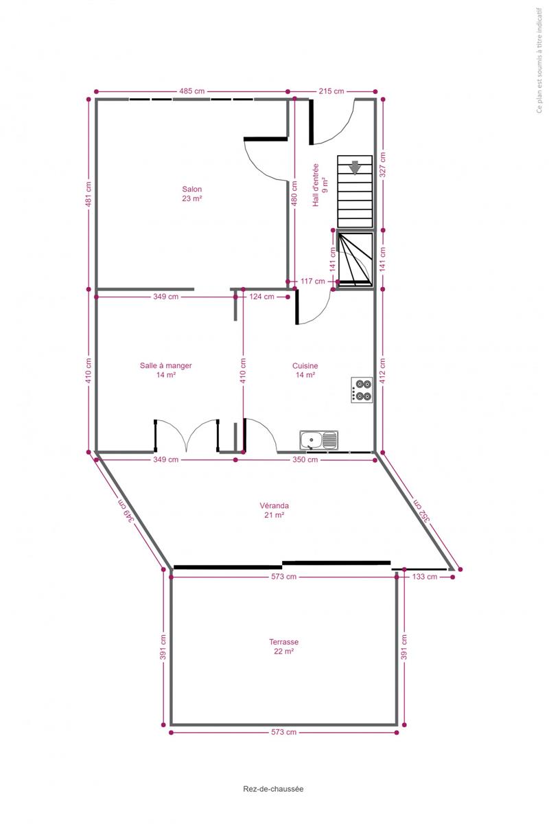
Salle à manger (surface) 14 m²
Salle de séjour (surface) 23 m²
Cuisine (surface) 14 m²
Grenier (surface) 61 m²
Caves (surface) 22 m²
Salle de bain 1 (surface) 8 m²
Hall d'entrée (surface) 8 m²
Orientation de la terrasse 1 (-) sud
Hall de nuit (surface) 7 m²

Equipement de base

Cuisine Oui
Double vitrage Oui
Chauffage (Format/energie) electrique
Type de cuisine équipée
Cuisine (détails) 2,8m, 5, équipée, salle à manger, one half,...

Divers

Véranda Oui
Grenier (détails) aménageable, châssis sans ouverture bois,...

Equipement extérieur

Barbecue Oui
Jardin (détails) arboré

Sécurité

Volets Oui

À proximité

Magasins (distance (m)) 1500
Écoles (distance (m)) 1500
Transports en commun (distance (m)) 350
Transports en commun Oui
Autoroute Oui
Autoroute (distance (m)) 11000
Gare Oui
Gare (distance (m)) 1200

Raccordements

Égouts Oui
Télévision par cable Oui
Câbles téléphoniques Oui
Eau Oui

Équipements techniques

Châssis (Ouvertures) bois
Isolation Oui
Panneaux solaires Oui
Panneaux solaires (détails) oui
Vitrage (type) double vitrage
Évier Oui

Spécificités terrain

Type d'environnement calme
Orientation de la terrasse (-) sud
Orientation du jardin (-) sud
Environnement détail 2 (détails) proximité ligne de train

Caractéristiques Principales

Surface de terrasse 1 22 m²

Cadastre

Surface (ha/a/ca) (surf. (ha/a/ca)) 800ca
Revenu cadastral (€) (montant) 352 €

Certificats énergétiques

Label PEB (Classe) F
PEB E-SPEC (kwh/m²/an) (Consommation énergétique) 462
E total (Kwh/an) 111602
PEB code unique (-) 20190919019638
Votre agent
Didier Piraux
E-mail Tel.
Prendre contact pour le bien : 3964607

* Champs obligatoires

Préférences pour les cookies

La protection de vos données personnelles est importante pour nous. C’est pourquoi nous détaillons ci-dessous les différents services et fonctionnalités du site qui utilisent des cookies et nous vous laissons décider des cookies que vous souhaitez autoriser ou refuser.

Veuillez cependant noter que si vous bloquez certains types de cookies, cela pourrait impacter votre expérience de navigation sur notre site ainsi que les fonctionnalités disponibles.

Nous utilisons des cookies fonctionnels obligatoires pour assurer le bon fonctionnement du site. Ils sont, par exemple, nécessaires pour retrouver le résultat d’une recherche ou enregistrer le choix de la langue.

Certaines fonctionnalités, comme l’affichage de vidéos ou de cartes géographiques, sont assurées via des composants externes développés par des partenaires comme YouTube ou Google. Certains composants utilisent des cookies qui sont susceptibles de permettre à ces tiers de suivre le comportement des internautes afin, par exemple, de réaliser du ciblage publicitaire. L’activation de ces fonctionnalités et des cookies associés est donc soumis à votre consentement.