
OPTION ! Je vous invite à venir découvrir cette maison villageoise avec jardin située au calme de l'entité de Villers-la-Ville (Sart-Dames-Avelines). Elle propose un très beau potentiel à exploiter sur 180m². Le vaste rez-de-chaussée de 66m² distribue la cuisine avec accès à la terrasse et au jardin, une salle à manger et une très belle pièce de vie. L'étage de 66m² aussi offre une salle de bains et 3 chambres (dont 1 de passage). Un grenier aménageable de 44m² utiles complète le volume mais doit faire l'objet d'un accès par escalier. Cette maison est actuellement habitée mais devrait faire l'objet de travaux de rénovation/rafraîchissements: chauffage central, châssis, électricité, salle de bains, aménagement du grenier et mise au goût du jour... Possibilité de réduction des droits d'enregistrement à concurrence de 177.884€ (droits pleins pour le surplus). Prix souhaité: 207.000€ sans surenchère. A très vite! https://www.ccv-immobilier.be/fr/bien/a-vendre/maison/1495-sart-dames-avelines/5077672
Rue de la Hutte 5 - 1495 Sart-dames-avelines
Référence | 5077672 |
---|---|
Catégorie | Maison |
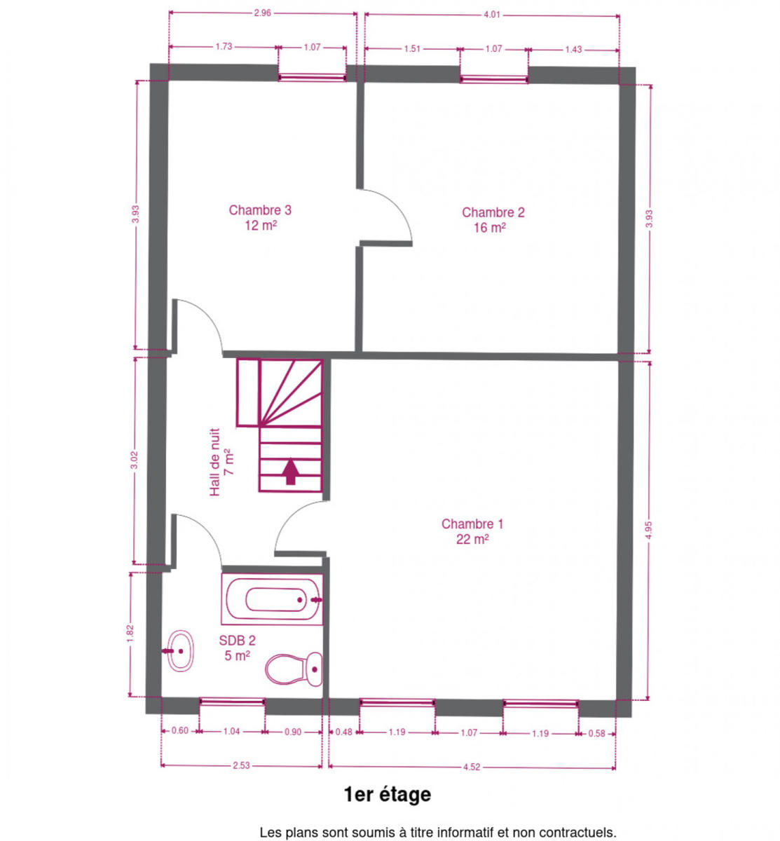
Nombre de chambres | 3 |
Nombre de salles de bain | 1 |
Jardin | Oui |
Surface du jardin | 406 m² |
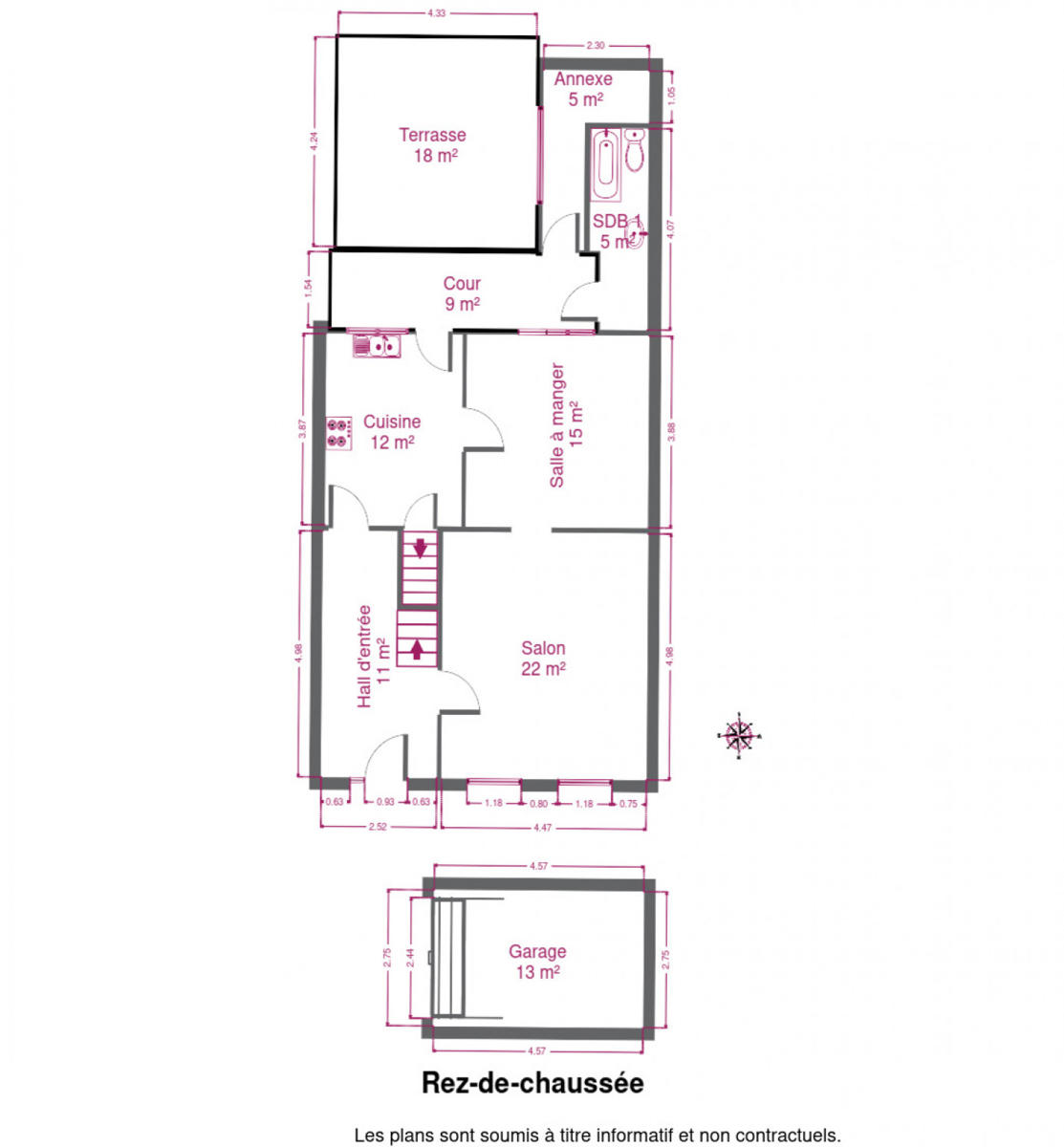
Garage | Oui |
Terrasse | Oui |
Parking | Oui |
Surface habitable | 144 m² |
Surface du terrain | 406 m² |
Disponibilité | à l'acte |
Année de construction | 1890 |
---|---|
Nombre de garage | 1 |
Parking intérieur | Oui |
Parking extérieur | Oui |
Parking(s) intérieur (nombre) | 1 |
Parking(s) extérieur (nombre) | 1 |
Type de toit | en pente |
Type de construction | traditionnel |
Nombre d'étages | 3 |
---|
Cuisine | Oui |
---|---|
Chauffage (type) | bois |
Sdb (type) | bain |
Buanderie | Oui |
---|---|
Type de grenier | possibilité d'équiper |
Grenier | Oui |
Cave | Oui |
Grenier (détails) | aménageable, accès à créer |
Nbre de toilette(s) (nombre) | 2 |
---|---|
Chambre 1 (surface) | 22 m² |
Chambre 2 (surface) | 16 m² |
Chambre 3 (surface) | 12 m² |
Surface brute | 220 m² |
Surface nette | 144 m² |
Garage (surface) | 13 m² |
Salle de séjour (surface) | 22 m² |
Salle à manger (surface) | 15 m² |
Cuisine (surface) | 12 m² |
Buanderie (surface) | 5 m² |
Grenier (surface) | 43 m² |
Caves (surface) | 32 m² |
Hall d'entrée (surface) | 11 m² |
Orientation de la terrasse 1 | sud |
Salle de bains 2 (surface) | 5 m² |
Hall de nuit (surface) | 7 m² |
Volets | Oui |
---|---|
Volets (type) | type manuel |
Magasins (distance (m)) | 2 |
---|---|
Transports en commun (distance (m)) | 150 |
Transports en commun | Oui |
Autoroute | Oui |
Autoroute (distance (m)) | 7000 |
Gare | Oui |
Gare (distance (m)) | 3200 |
Annexe | Oui |
---|---|
Surface (m²) de annexe | 5 m² |
Jardin (détails) | sud, déclivité, Aménagé pelouse, fermé clôtures palissades haies |
Fosse septique | Oui |
Cour | Oui |
Dimensions de la cour | 9 |
Section | D |
---|---|
Numéro (n°) | 526D |
Surface (ha/a/ca) (surf. (ha/a/ca)) | 4a64 |
Revenu cadastral (€) (montant) | 490 € |
Citerne à mazout | Oui |
---|---|
Télévision par cable | Oui |
Câbles téléphoniques | Oui |
Eau | Oui |
Électricité (Détails) | Bi-horaire |
Citerne à mazout (détails) | Apparente, capacité 2400 L |
Châssis (type) | aluminium |
---|---|
Type d'évier | 2 |
Évier | Oui |
Type d'environnement | calme |
---|---|
Orientation de la terrasse | sud |
Orientation du jardin | sud |
Surface de terrasse 1 | 18 m² |
---|
Type de revêtement de sol | carrelages |
---|---|
État de la toiture (appréciation) | 3 |
État des châssis (appréciation) | 2 |
État des sanitaires (appréciation) | 2 |
État de l'électricité (appréciation) | 2 |
État du chauffage (appréciation) | 1 |
État de la cuisine (appréciation) | 2 |
État des sols (appréciation) | 3 |
Capacité de la citerne à mazout (capacite) | 2400 |
---|
Label PEB (classe) | G |
---|---|
PEB E-SPEC (kwh/m²/an) | 546 |
E total (Kwh/an) | 81056 |
PEB code unique | 20220921006134 |
PEB valide jusqu'au (datetime) | 21/09/2032 |
Date du PEB (datetime) | 21/09/2022 |