Maison - vendu - 1495 Tilly -

Maison - à vendre - 1495 Tilly
5 1 232 m² 1 5 PEB : G

Description

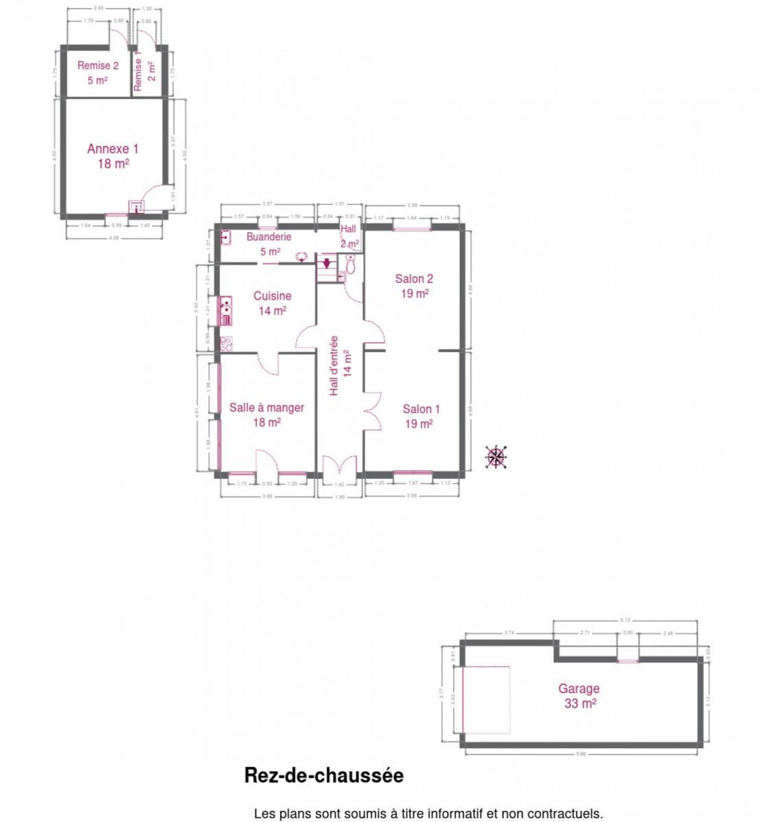
OPTION OPTION OPTION Compromis en cours... CCV immobilier vous propose cette splendide propriété composée d'une superbe maison de maître et d'une parcelle très privative de 22 ares 80 entourée d'un mur d'enceinte et accessible via un grand portail. Le spacieux jardin, avec ses arbres magnifiques, son étang alimenté par une source naturelle et son orientation idéale sud-ouest, saura combler les attentes de toute la famille. La propriété offre deux entrées distinctes, une annexe de 25m² et du parking en suffisance, de quoi permettre un projet de type prof. libérale/studio... Un grand hall d'entrée vous accueille et mène vers un double séjour sur ancien plancher en bon état et équipé d'anciennes cheminées en marbre, une cuisine récente équipée et une pièce supplémentaire très lumineuse pouvant servir de salle à manger ou salon secondaire, ainsi qu'une buanderie séparée. Le 1er étage compte 4 belles chambres et le 2ème peut encore être aménagé en chambres supplémentaires ou en suite parentale sous une magnifique charpente.  La maison est à rénover entièrement par vos soins. A noter qu'une fissure importante est apparente sur l'arrière de la maison. La stabilité du bâtiment ne semble pas engagée et des solutions de réparation existent. FAIRE OFFRE A PARTIR DE 265.000€, sous réserve d'acceptation du propriétaire ! https://www.ccv-immobilier.be/fr/bien/a-vendre/maison/1495-tilly/5325399

Adresse

Rue de Strichon 123 - 1495 Tilly

Général

Référence 5325399
Catégorie Maison
Nombre de chambres 5
Nombre de salles de bain 1
Jardin Oui
Surface du jardin 2280 m²
Garage Oui
Parking Oui
Surface habitable 232 m²
Surface du terrain 2280 m²
Disponibilité à l'acte

Nom, catégorie & situation

Nombre d'étages (numéro) 4

Bâtiment

Nombre de garage 1
Parking extérieur Oui
Parking(s) intérieur (nombre) 1
Parking(s) extérieur (nombre) 4
Type de construction traditionnel

En chiffres

Largeur front de rue 32
Surface bâtie (surf. bât. princ.) 152
Nbre de toilette(s) (nombre) 1
Chambre 1 (surface) 19 m²
Chambre 2 (surface) 15 m²
Chambre 3 (surface) 10 m²
Chambre 4 (surface) 15 m²
Chambre 5 (surface) 25 m²
Surface brute 361 m²
Surface nette 232 m²
Largeur de façade 10
Profondeur terrain 79
Garage (surface) 33 m²
Salle de séjour (surface) 38 m²
Salle à manger (surface) 18 m²
Cuisine (surface) 14 m²
Buanderie (surface) 5 m²
Dressing (surface) 11.82 m²
Salle de bain 1 (surface) 4 m²
Caves (surface) 53 m²
Grenier (surface) 19 m²
Possibilité profession libérale (surface) 25 m²
Hall d'entrée (surface) 14 m²
Orientation de la terrasse 1 (-) sud-ouest
Hall de nuit (surface) 12 m²
Nbre de pièce(s) (Nombre) 27

Equipement de base

Cuisine Oui
Chauffage (Format/energie) mazout (chauf. centr.)

Divers

Buanderie Oui
Type de grenier possibilité d'équiper
Grenier Oui
Cave Oui

À proximité

Transports en commun (distance (m)) 5
Transports en commun Oui
Autoroute Oui
Autoroute (distance (m)) 5700
Gare Oui
Gare (distance (m)) 1800

Equipement extérieur

Annexe Oui
Surface (m²) de annexe 25 m²
Citerne d'eau Oui
Jardin (détails) sud-ouest, déclivité, aménagé pelouse, Fermé murs, nord-est, Aménagé pelouse, fermé murs haies

Cadastre

Section (-) B
Numéro (n°) 153EP0000
Surface (ha/a/ca) (surf. (ha/a/ca)) 22a80ca
Revenu cadastral (€) (montant) 798 €

Équipements techniques

Centrale tél. Oui
Châssis (Ouvertures) aluminium
Évier Oui
Type d'évier 1,5

Raccordements

Citerne à mazout Oui
Télévision par cable Oui
Câbles téléphoniques Oui
Eau Oui
Électricité (Détails) Bi-horaire
Citerne à mazout (détails) Apparente

Spécificités terrain

Type d'environnement calme
Exposition de la façade avant (-) nord-est
Orientation du jardin (-) sud ouest

Type de matériau & évaluation

Type de revêtement de sol vinyl

Energie

Label PEB (Classe) G
PEB E-SPEC (kwh/m²/an) (Consommation énergétique) 524
E total (Kwh/an) 124130
PEB code unique (-) 20210420005915
PEB valide jusqu'au (validité) 20/04/2031
Date du PEB 20/04/2021
Votre agent
Marie Verlinden
E-mail Tel.
Prendre contact pour le bien : 5325399

* Champs obligatoires

Préférences pour les cookies

La protection de vos données personnelles est importante pour nous. C’est pourquoi nous détaillons ci-dessous les différents services et fonctionnalités du site qui utilisent des cookies et nous vous laissons décider des cookies que vous souhaitez autoriser ou refuser.

Veuillez cependant noter que si vous bloquez certains types de cookies, cela pourrait impacter votre expérience de navigation sur notre site ainsi que les fonctionnalités disponibles.

Nous utilisons des cookies fonctionnels obligatoires pour assurer le bon fonctionnement du site. Ils sont, par exemple, nécessaires pour retrouver le résultat d’une recherche ou enregistrer le choix de la langue.

Certaines fonctionnalités, comme l’affichage de vidéos ou de cartes géographiques, sont assurées via des composants externes développés par des partenaires comme YouTube ou Google. Certains composants utilisent des cookies qui sont susceptibles de permettre à ces tiers de suivre le comportement des internautes afin, par exemple, de réaliser du ciblage publicitaire. L’activation de ces fonctionnalités et des cookies associés est donc soumis à votre consentement.