Villa - vendu - 1495 Villers-la-Ville -

Villa - à vendre - 1495 Villers-la-Ville
4 2 150 m² 1 PEB : F

Description

Cadre exceptionnel du Bois Cochet pour cette jolie maison de plain-pied sur 17 ares de terrain. Elle vous séduira par son environnement calme et sécurisé, idéal pour une famille avec enfants. Se compose de : 4 chambres spacieuses, , sdb, possibilité sdd (arrivée d'eau présente), cuisine semi-équipée, beau séjour ouvert avec foyer fonctionnel, véranda, double garage en sous-sol, avec caves de rangement. Prête à vivre, elle n'attend qu'une mise à votre goût. Pratique: commerces au centre du village, école primaire, crèche et train vers OTT/CSE et Charleroi. A visiter sans tarder, Contactez Didier au 0476/98.62.88. 

Adresse

Dreve de Cochet 28 - 1495 Villers-la-Ville

Général

Référence 3849600
Catégorie Villa
Nombre de chambres 4
Nombre de salles de bain 2
Jardin Oui
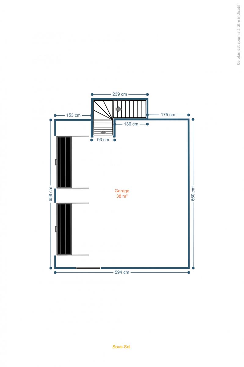
Garage Oui
Terrasse Non
Parking Oui
Surface habitable 150 m²
Surface du terrain 1721 m²
Disponibilité à l'acte

Bâtiment

Année de construction 1978
Nombre de garage 1
Parking intérieur Oui
Parking extérieur Oui

Equipement de base

Accès handicapés Non
Cuisine Oui
Chauffage (ind/coll) (type (ind/coll)) individuel
Double vitrage Oui
Chauffage (Format/energie) electrique
Type de cuisine équipée

En chiffres

Nbre de toilette(s) (nombre) 2
Nombre de sdd 1
Chambre 1 (surface) 12 m²
Chambre 2 (surface) 15 m²
Chambre 3 (surface) 12 m²
Chambre 4 (surface) 15 m²
Salle de séjour (surface) 38 m²
Cuisine (surface) 9 m²

Divers

Véranda Oui
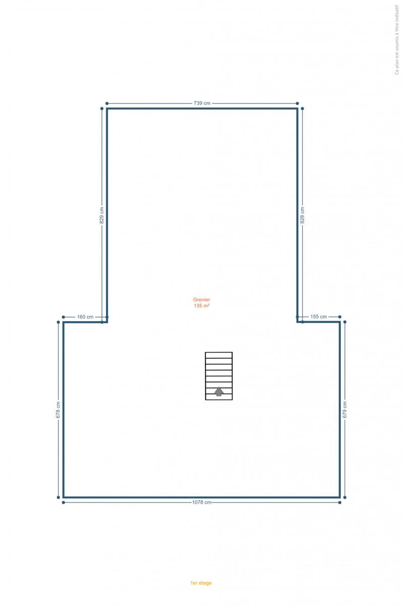
Type de grenier seulement rangement
Grenier Oui
Cave Oui

Raccordements

Égouts Oui

À proximité

Ecoles Oui
Centre sportif Oui

Certificats énergétiques

Label PEB (Classe) F
PEB E-SPEC (kwh/m²/an) (Consommation énergétique) 442
PEB code unique (-) 20130712011154

Spécificités terrain

Orientation de la terrasse (-) nord ouest
Orientation du jardin (-) nord ouest
Votre agent
Marie Surges
E-mail Tel.
Prendre contact pour le bien : 3849600

* Champs obligatoires

Préférences pour les cookies

La protection de vos données personnelles est importante pour nous. C’est pourquoi nous détaillons ci-dessous les différents services et fonctionnalités du site qui utilisent des cookies et nous vous laissons décider des cookies que vous souhaitez autoriser ou refuser.

Veuillez cependant noter que si vous bloquez certains types de cookies, cela pourrait impacter votre expérience de navigation sur notre site ainsi que les fonctionnalités disponibles.

Nous utilisons des cookies fonctionnels obligatoires pour assurer le bon fonctionnement du site. Ils sont, par exemple, nécessaires pour retrouver le résultat d’une recherche ou enregistrer le choix de la langue.

Certaines fonctionnalités, comme l’affichage de vidéos ou de cartes géographiques, sont assurées via des composants externes développés par des partenaires comme YouTube ou Google. Certains composants utilisent des cookies qui sont susceptibles de permettre à ces tiers de suivre le comportement des internautes afin, par exemple, de réaliser du ciblage publicitaire. L’activation de ces fonctionnalités et des cookies associés est donc soumis à votre consentement.