Maison - vendu - 1495 Villers-la-ville -

Maison - à vendre - 1495 Villers-la-ville
3 1 150 m² 1 2 PEB : F

Description

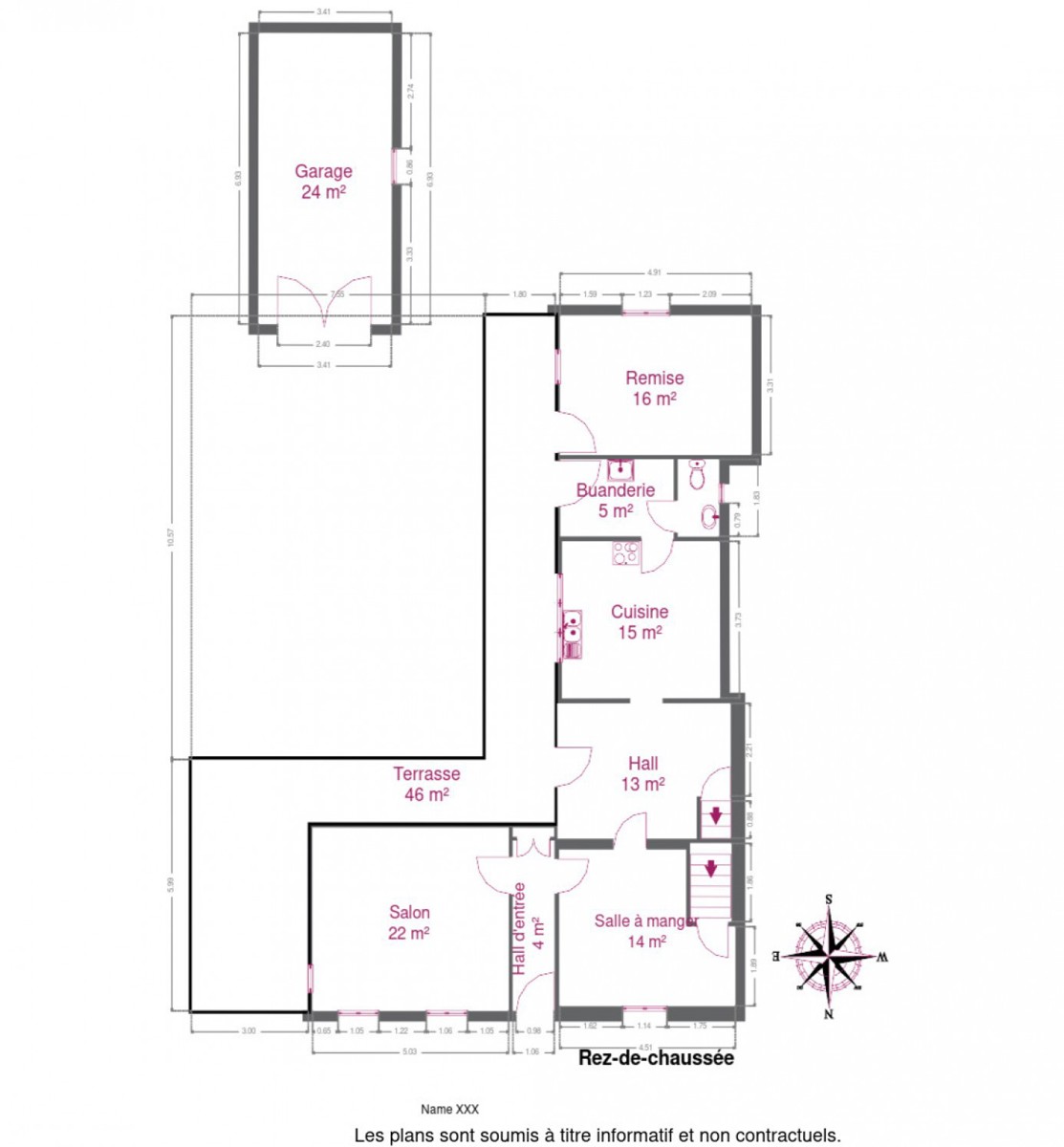
OPTION OPTION OPTION... COMPROMIS EN COURS... À un jet de pierre des ruines de l'Abbaye de Villers-la-Ville, au cœur du Brabant Wallon, venez découvrir cette très charmante maison villageoise située dans une rue calme et hors passage. Bien qu'une mise à votre goût personnel n'est pas à exclure, elle est en excellent état d'entretien et habitable immédiatement sans travaux, et vous serez séduits par les 150m² habitables et le potentiel exploitable. Un hall d'entrée classique distribue une pièce de vie chaleureuse et une salle à manger, une pièce intermédiaire de type "bureau" avec accès extérieur précède la cuisine équipée en chêne. Une buanderie (5m²) et un atelier (16m²) complètent le rez. L'étage offre 3 belles chambres et une salle de bains avec baignoire et douche. Au grenier, possibilité d'aménager une chambre supplémentaire et une salle d'eau sur 30m². Des belles caves saines, un garage, une terrasse orientée au sud et un très beau jardin complètent le tout. Possibilité de réduction des droits d'enregistrement! FAIRE OFFRE À PARTIR DE 325.000 EUROS, sous réserve d'acceptation des propriétaires... À vos téléphones pour une visite! https://www.ccv-immobilier.be/fr/bien/a-vendre/maison/1495-villers-la-ville/5715750

Adresse

Boulevard Neuf 46 - 1495 Villers-la-ville

Général

Référence 5715750
Catégorie Maison
Nombre de chambres 3
Nombre de salles de bain 1
Jardin Oui
Surface du jardin 1063 m²
Garage Oui
Terrasse Oui
Parking Oui
Surface habitable 150 m²
Surface du terrain 1063 m²
Disponibilité à l'acte

Nom, catégorie & situation

Nombre d'étages (numéro) 3

Bâtiment

Nombre de garage 1
Parking intérieur Oui
Parking extérieur Oui
Parking(s) intérieur (nombre) 1
Parking(s) extérieur (nombre) 1
Type de toit en pente
Type de construction traditionnel

Equipement de base

Cuisine Oui
Chauffage (Format/energie) mazout (chauf. centr.)
Type de cuisine équipée
Sdb (Type) bain
Marque de chauffage BUDERUS
Adoucisseur Oui

Divers

Buanderie Oui
Bureau Oui
Type de grenier possibilité d'équiper
Grenier Oui
Cave Oui

En chiffres

Nbre de toilette(s) (nombre) 2
Chambre 1 (surface) 13 m²
Chambre 2 (surface) 12 m²
Chambre 3 (surface) 11 m²
Surface brute 274 m²
Surface nette 150 m²
Garage (surface) 24 m²
Salle à manger (surface) 15 m²
Cuisine (surface) 15 m²
Buanderie (surface) 5 m²
Salle de bain 1 (surface) 10 m²
Grenier (surface) 45 m²
Caves (surface) 36 m²
Bureau (surface) 13 m²
Atelier (surface) 16 m²
Orientation de la terrasse 1 (-) sud
Hall d'entrée (surface) 4 m²
Hall de nuit (surface) 11 m²

Equipement extérieur

Annexe Oui
Surface (m²) de annexe 16 m²
Jardin (détails) sud, plat, Aménagé pelouse
Cour Oui

À proximité

Transports en commun (distance (m)) 280
Transports en commun Oui
Autoroute Oui
Autoroute (distance (m)) 4000
Gare Oui
Gare (distance (m)) 550

Raccordements

Égouts Oui
Citerne à mazout Oui
Télévision par cable Oui
Câbles téléphoniques Oui
Eau Oui
Électricité (Détails) Bi-horaire
Citerne à mazout (détails) Apparente, capacité 1500 L

Équipements techniques

Châssis (Ouvertures) bois
Évier Oui
Type d'évier 2

Spécificités terrain

Type d'environnement calme
Orientation de la terrasse (-) sud
Orientation du jardin (-) sud

Caractéristiques Principales

Surface de terrasse 1 46 m²

Type de matériau & évaluation

Type de revêtement de sol carrelages

Certificats / Attestations

Capacité de la citerne à mazout 1500

Cadastre

Revenu cadastral (€) (montant) 666 €

Sécurité

Alarme Oui

Certificats énergétiques

Label PEB (Classe) F
PEB E-SPEC (kwh/m²/an) (Consommation énergétique) 509
E total (Kwh/an) 98569
PEB code unique (-) 20240109012312
Votre agent
Marie Verlinden
E-mail Tel.
Prendre contact pour le bien : 5715750

* Champs obligatoires

Préférences pour les cookies

La protection de vos données personnelles est importante pour nous. C’est pourquoi nous détaillons ci-dessous les différents services et fonctionnalités du site qui utilisent des cookies et nous vous laissons décider des cookies que vous souhaitez autoriser ou refuser.

Veuillez cependant noter que si vous bloquez certains types de cookies, cela pourrait impacter votre expérience de navigation sur notre site ainsi que les fonctionnalités disponibles.

Nous utilisons des cookies fonctionnels obligatoires pour assurer le bon fonctionnement du site. Ils sont, par exemple, nécessaires pour retrouver le résultat d’une recherche ou enregistrer le choix de la langue.

Certaines fonctionnalités, comme l’affichage de vidéos ou de cartes géographiques, sont assurées via des composants externes développés par des partenaires comme YouTube ou Google. Certains composants utilisent des cookies qui sont susceptibles de permettre à ces tiers de suivre le comportement des internautes afin, par exemple, de réaliser du ciblage publicitaire. L’activation de ces fonctionnalités et des cookies associés est donc soumis à votre consentement.