
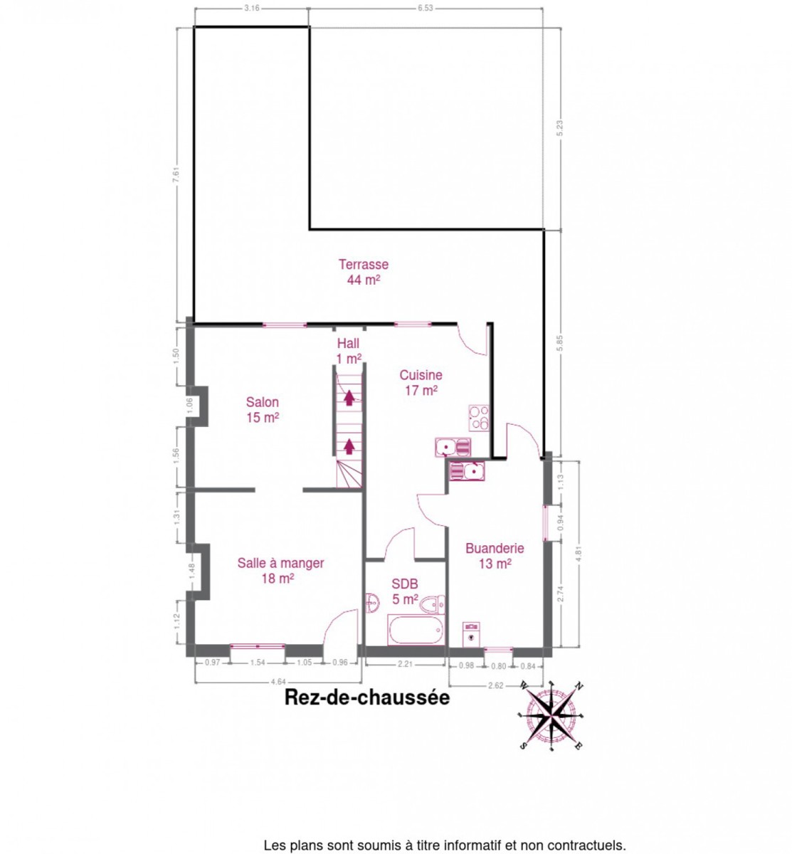
OPTION OPTION OPTIONVISITES SANS RDV le jeudi 08/08/2024 de 16h à 18h et le samedi 10/08/2024 de 10h à 12h. Découvrez cette maison villageoise située à Fleurus sur un terrain de 6 ares 30, une véritable opportunité à saisir ! Avec ses 107 m² habitables, cette propriété offre de nombreux espaces de vie et des possibilités d'aménagement. Composée de 3 chambres et d'un grenier aménageable de 38 m², parfait pour créer un espace supplémentaire selon vos besoins. Au rez-de-chaussée, vous trouverez une salle à manger de 18 m², un salon de 15 m², une cuisine de 17 m², une salle de bain et une buanderie. En extérieur, profitez d'une grande terrasse de 44 m², idéale pour vos moments de détente en plein air. L'installation électrique est conforme jusqu'en 2032, garantissant une tranquillité d'esprit pour de nombreuses années. Ne manquez pas cette occasion unique d'acquérir une maison au cœur de Fleurus. https://www.ccv-immobilier.be/fr/bien/a-vendre/maison/6220-fleurus/6082690
Rue Emile Vandervelde 167 - 6220 Fleurus
Référence | 6082690 |
---|---|
Catégorie | Maison |
Nombre de chambres | 3 |
Nombre de salles de bain | 1 |
Jardin | Oui |
Surface du jardin | 545 m² |
Terrasse | Oui |
Parking | Oui |
Surface habitable | 107 m² |
Surface du terrain | 630 m² |
Disponibilité | en fonct. du locataire |
Nombre d'étages | 2 |
---|
Parking extérieur | Oui |
---|---|
Parking(s) extérieur (nombre) | 3 |
Type de construction | traditionnel |
Largeur front de rue | 13 |
---|---|
Surface bâtie (surf. bât. princ.) | 85 |
Nbre de toilette(s) (nombre) | 1 |
Chambre 1 (surface) | 8.91 m² |
Chambre 2 (surface) | 9.19 m² |
Chambre 3 (surface) | 11.25 m² |
Surface brute | 178 m² |
Surface nette | 107 m² |
Largeur de façade | 9.4 |
Profondeur terrain | 60 |
Nbre de terrasse(s) (nombre) | 1 |
Salle à manger (surface) | 17.52 m² |
Cuisine (surface) | 17.14 m² |
Buanderie (surface) | 12.59 m² |
Salle de bain 1 (surface) | 4.76 m² |
Caves (surface) | 34.150000000000006 m² |
Grenier (surface) | 38.39 m² |
Hall de nuit (surface) | 7.11 m² |
Nbre de pièce(s) (nombre) | 13 |
Cuisine | Oui |
---|---|
Double vitrage | Oui |
Chauffage (type) | gaz (chau. centr.) |
Buanderie | Oui |
---|---|
Type de grenier | possibilité d'équiper |
Grenier | Oui |
Cave | Oui |
Volets | Oui |
---|---|
Volets (type) | type manuel |
Transports en commun (distance (m)) | 70 |
---|---|
Transports en commun | Oui |
Autoroute | Oui |
Autoroute (distance (m)) | 1000 |
Gare | Oui |
Gare (distance (m)) | 500 |
Égouts | Oui |
---|---|
Télévision par cable | Oui |
Gaz | Oui |
Câbles téléphoniques | Oui |
Eau | Oui |
Électricité (Détails) | Bi-horaire |
Centrale tél. | Oui |
---|---|
Châssis (type) | pvc |
Évier | Oui |
Type d'évier | 1 |
Type d'environnement | zone d'habitation |
---|---|
Exposition de la façade avant | sud-est |
Orientation de la terrasse | nord ouest |
Surface de terrasse 1 | 44 m² |
---|
Type de revêtement de sol | carrelages |
---|
Revenu cadastral (€) (montant) | 446 € |
---|
Jardin (détails) | plat, aménagé pelouse, Fermé clôtures |
---|
Label PEB (classe) | F |
---|---|
PEB E-SPEC (kwh/m²/an) | 458 |
E total (Kwh/an) | 55276 |
PEB code unique | 2015029022468 |
PEB valide jusqu'au (datetime) | 29/10/2025 |
Date du PEB (datetime) | 29/10/2015 |