
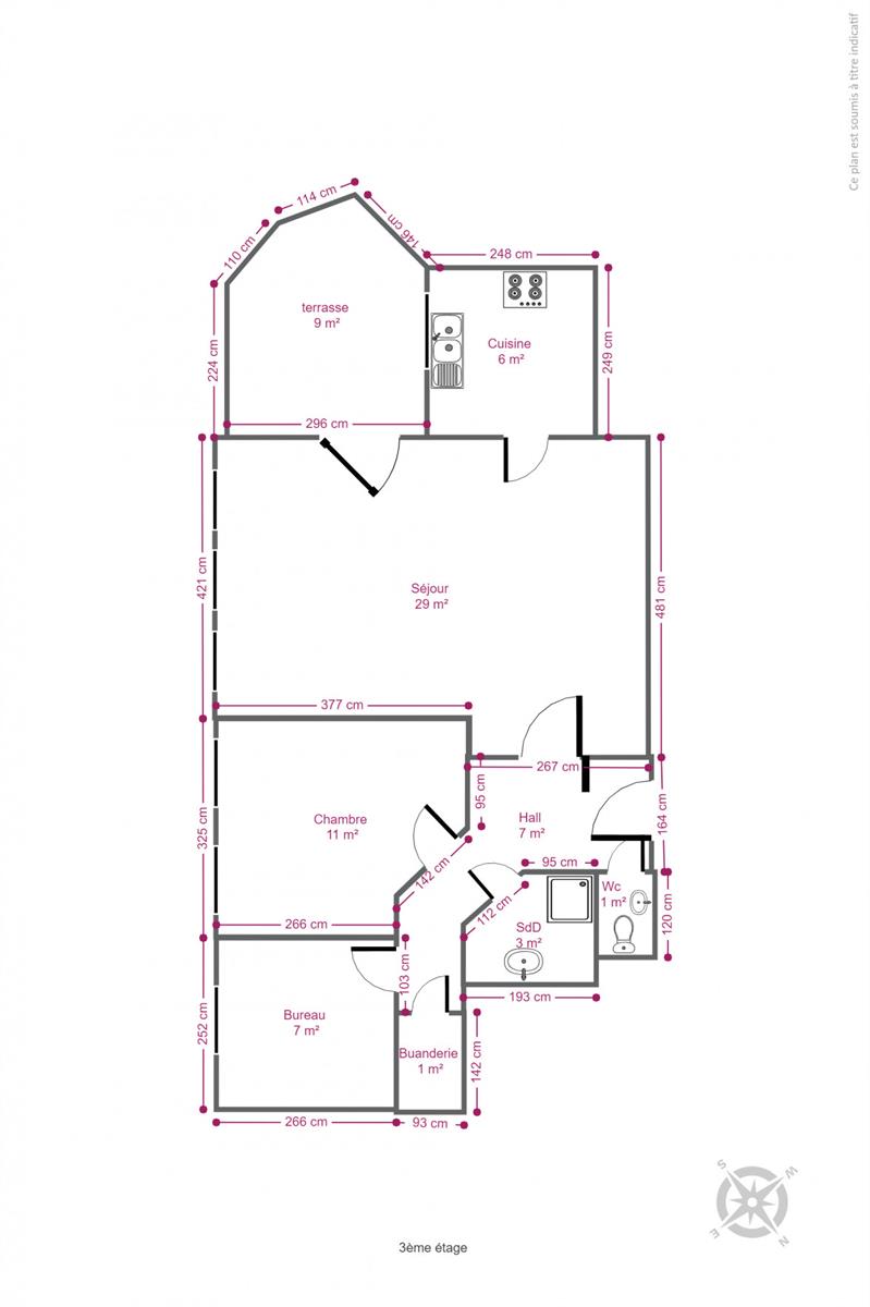
OPTION!!! STOP VISITES, COMPROMIS EN COURS... Opportunité rare: situation exceptionnelle pour cet appartement de 70m², 2 chambres (1 chambre + bureau), situé au 3e étage (sur 4 - avec ascenseur) d'un immeuble bien entretenu sur le site du Douaire à Ottignies! Hall d'entrée avec espace vestiaire et WC visiteurs, séjour très lumineux de presque 30m² avec accès balcon parfaitement orienté, cuisine semi-équipée fonctionnelle et bien entretenue, chambre principale et deuxième chambre/bureau, toutes deux avec placards intégrés, salle de douche, chaufferie (chaudière au gaz individuelle). Gros atout supplémentaire: l'appartement dispose d'1 emplacement de parking extérieur. Logement propre et très bien entretenu, à rafraîchir, jouissant d'une situation idéale à distance de marche des commerces (50m!) et transports. Pour logement personnel ou investissement, ne tardez pas à contacter Marie 0474 88 59 30 - https://www.ccv-immobilier.be/fr/bien/a-vendre/appartement/1340-ottignies/4110854
Avenue du Douaire 52 - 1340 Ottignies
Référence | 4110854 |
---|---|
Catégorie | Appartement |
Meublé | Non |
Nombre de chambres | 2 |
Nombre de salles de bain | 1 |
Garage | Non |
Terrasse | Oui |
Parking | Oui |
Surface habitable | 70 m² |
Disponibilité | à l'acte |
Année de construction | 1996 |
---|---|
Parking intérieur | Non |
Parking extérieur | Oui |
Parking(s) extérieur (nombre) | 1 |
Etage | 3 |
---|---|
Nombre d'étages | 4 |
Cuisine | Oui |
---|---|
Chauffage (ind/coll) (type (ind/coll)) | individuel |
Ascenseur | Oui |
Double vitrage | Oui |
Chauffage (type) | gaz (chau. centr.) |
Sdb (type) | douche |
Marque de chauffage | marque viessmann |
Parlophone | Oui |
Cuisine (détails) | 2,4m, 8, double, avec égouttoir, inox,... |
Buanderie | Oui |
---|---|
Bureau | Oui |
Bureau (détails) | Châssis bois double vitrage oscillo-battants,... |
Nbre de toilette(s) (nombre) | 1 |
---|---|
Nombre de sdd | 1 |
Chambre 1 (surface) | 11 m² |
Chambre 2 (surface) | 7 m² |
Surface nette | 65 m² |
Largeur de façade | 13 |
Nbre de terrasse(s) (nombre) | 1 |
Salle de séjour (surface) | 29 m² |
Cuisine (surface) | 6 m² |
Salle de bain 1 (surface) | 3 m² |
Buanderie (surface) | 1 m² |
Orientation de la terrasse 1 | sud-ouest |
Magasins (distance (m)) | 10 |
---|---|
Écoles (distance (m)) | 600 |
Transports en commun (distance (m)) | 250 |
Magasins | Oui |
Ecoles | Oui |
Transports en commun | Oui |
Autoroute | Oui |
Autoroute (distance (m)) | 4000 |
Gare | Oui |
Gare (distance (m)) | 800 |
Égouts | Oui |
---|---|
Télévision par cable | Oui |
Gaz | Oui |
Eau | Oui |
Châssis (type) | bois |
---|---|
Évier | Oui |
Type d'environnement | commerce |
---|---|
Type d'environnement 2 | centre ville |
Orientation de la terrasse | sud ouest |
Surface de terrasse 1 | 8 m² |
---|
Label PEB (classe) | B |
---|---|
PEB E-SPEC (kwh/m²/an) | 142 |
E total (Kwh/an) | 10995 |
PEB code unique | 20200819009061 |