
VENDU. Au calme d'une rue peu fréquentée, cette jolie maison de ville très bien entretenue vous séduira par son étonnant potentiel. Ses 181 m² utiles incluent un rdc avec hall d'entrée, garage et cave, un rez de jardin avec espace de vie ouvert et lumineux, cuisine et véranda. L'étage compte 3 chambres et une sdb, et donne accès par un escalier à un grand grenier aménageable en suite parentale. Un agréable jardin de ville agrémente le tout dans des proportions idéales: entretien facile et espace de jeu pour les enfants. Seule une mise au goût du jour sera nécessaire pour cette maison à l'entretien irréprochable. Pratique: shopping de Nivelles à moins d'1 km, grands axes proches, centre de Nivelles accessible à pieds, nombreuses écoles à Nivelles. A très bientôt pour une visite? https://www.ccv-immobilier.be/fr/bien/a-vendre/maison/1400-nivelles/3880357
Rue Samiette 132 - 1400 Nivelles
Référence | 3880357 |
---|---|
Catégorie | Maison |
Meublé | Non |
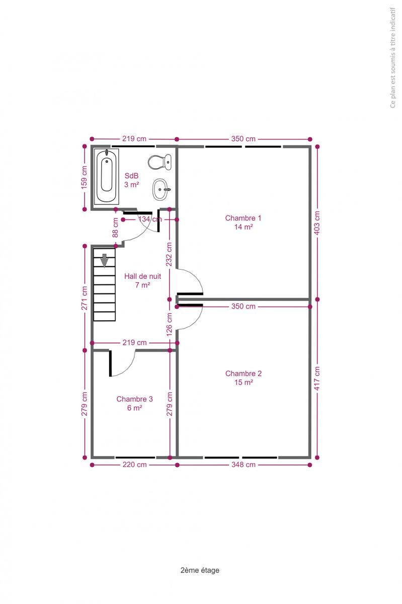
Nombre de chambres | 3 |
Nombre de salles de bain | 1 |
Jardin | Oui |
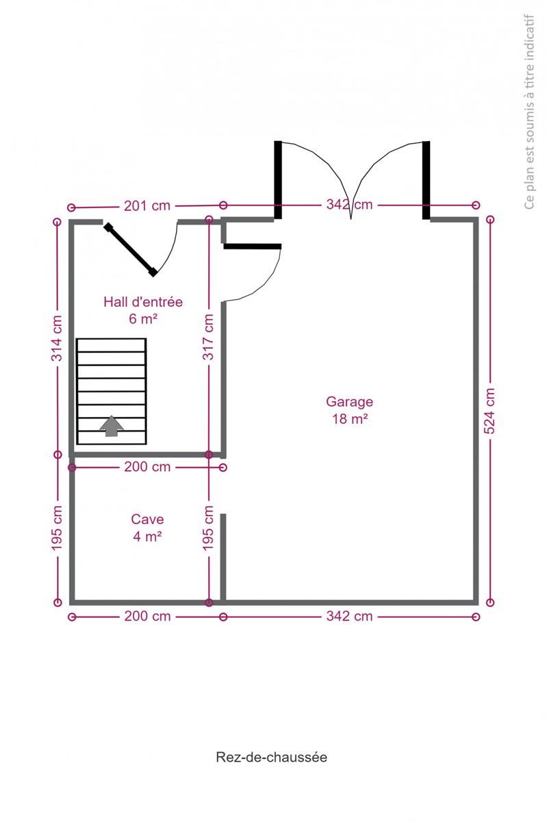
Garage | Oui |
Terrasse | Non |
Parking | Oui |
Surface habitable | 181 m² |
Surface du terrain | 310 m² |
Disponibilité | à l'acte |
Année de construction | 1954 |
---|---|
Nombre de garage | 1 |
Parking extérieur | Oui |
Parking(s) extérieur (nombre) | 1 |
Type de toit | en pente |
Parking(s) intérieur (nombre) | 1 |
Garage (détails) | parking place(s) 1 places, 1, automatische... |
Type de construction | traditionnel |
Nombre d'étages (numéro) | 3 |
---|
Surface bâtie (-) | 54 |
---|---|
Nbre de toilette(s) (nombre) | 2 |
Chambre 1 (surface) | 14 m² |
Chambre 2 (surface) | 14 m² |
Chambre 3 (surface) | 6 m² |
Surface brute | 181 m² |
Surface nette | 181 m² |
Largeur de façade | 5 |
Garage (surface) | 17 m² |
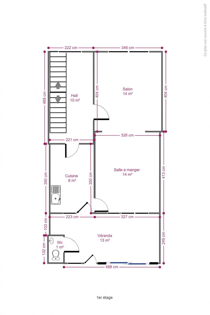
Salle de séjour (surface) | 27 m² |
Salle à manger (surface) | 13 m² |
Cuisine (surface) | 7 m² |
Grenier (surface) | 47 m² |
Caves (surface) | 4 m² |
Salle de bain 1 (surface) | 4 m² |
Hall d'entrée (surface) | 6 m² |
Hall de nuit (surface) | 7 m² |
Cuisine | Oui |
---|---|
Chauffage (Format/energie) | gaz (chau. centr.) |
Type de cuisine | non-équipée |
Cuisine (détails) | 2,8m, 6, non-équipée, cour, simple, avec... |
Véranda | Oui |
---|---|
Type de grenier | grenier avec chambres |
Grenier | Oui |
Cave | Oui |
Grenier (détails) | aménageable |
Volets | Oui |
---|---|
Volets (type) | chassis-pvc-double-vitrage-oscillo-battants-volets-roulant-manuel-pvc |
Transports en commun (distance (m)) | 120 |
---|---|
Transports en commun | Oui |
Autoroute | Oui |
Autoroute (distance (m)) | 1200 |
Gare | Oui |
Gare (distance (m)) | 1700 |
Égouts | Oui |
---|---|
Citerne à mazout | Oui |
Câbles téléphoniques | Oui |
Eau | Oui |
Citerne à mazout (détails) | Apparente |
Châssis (Ouvertures) | pvc |
---|---|
Type d'électricité | 220 V |
Vitrage (type) | double vitrage |
Évier | Oui |
Type d'environnement | résidentiel |
---|
Type de revêtement de sol | carrelages |
---|---|
État de la toiture (appréciation) | 4 |
État des châssis (-) | 3 |
État des sanitaires (appréciation) | 2 |
État de l'électricité (appréciation) | 3 |
État du chauffage (appréciation) | 3 |
État de la cuisine (appréciation) | 2 |
État des sols (appréciation) | 2 |
Revenu cadastral (€) (montant) | 1113 € |
---|
Label PEB (Classe) | D |
---|---|
PEB E-SPEC (kwh/m²/an) (Consommation énergétique) | 307 |
E total (Kwh/an) | 50673 |
PEB code unique (-) | 20190712012560 |