Maison - vendu - 1490 Court-saint-Étienne -

Maison - à vendre - 1490 Court-saint-Étienne
2 84 m² 1

Description

Sise dans une petite ruelle calme du village prisé de Sart-Messire-Guillaume, venez découvrir cette agréable maison villageoise rénovée. Elle offre un spacieux séjour, une cuisine moderne et récente, une salle à manger, 2 chambres, une salle de douche et buanderie. Garage et parking pour plusieurs véhicules. Double vitrage, électricité conforme, raccord aux égouts,...Le tout, sur un terrain plat et facile d'entretien de +- 5 ares. Idéal pour 1er achat ou investissement. Opportunité à saisir ! Visites sur rdv avec Marie Surges 0474/ 88 59 30 - https://www.ccv-immobilier.be/fr/bien/a-vendre/maison/1490-court-saint-etienne/3992017

Adresse

Rue de Néry 3 - 1490 Court-saint-Étienne

Général

Référence 3992017
Catégorie Maison
Meublé Non
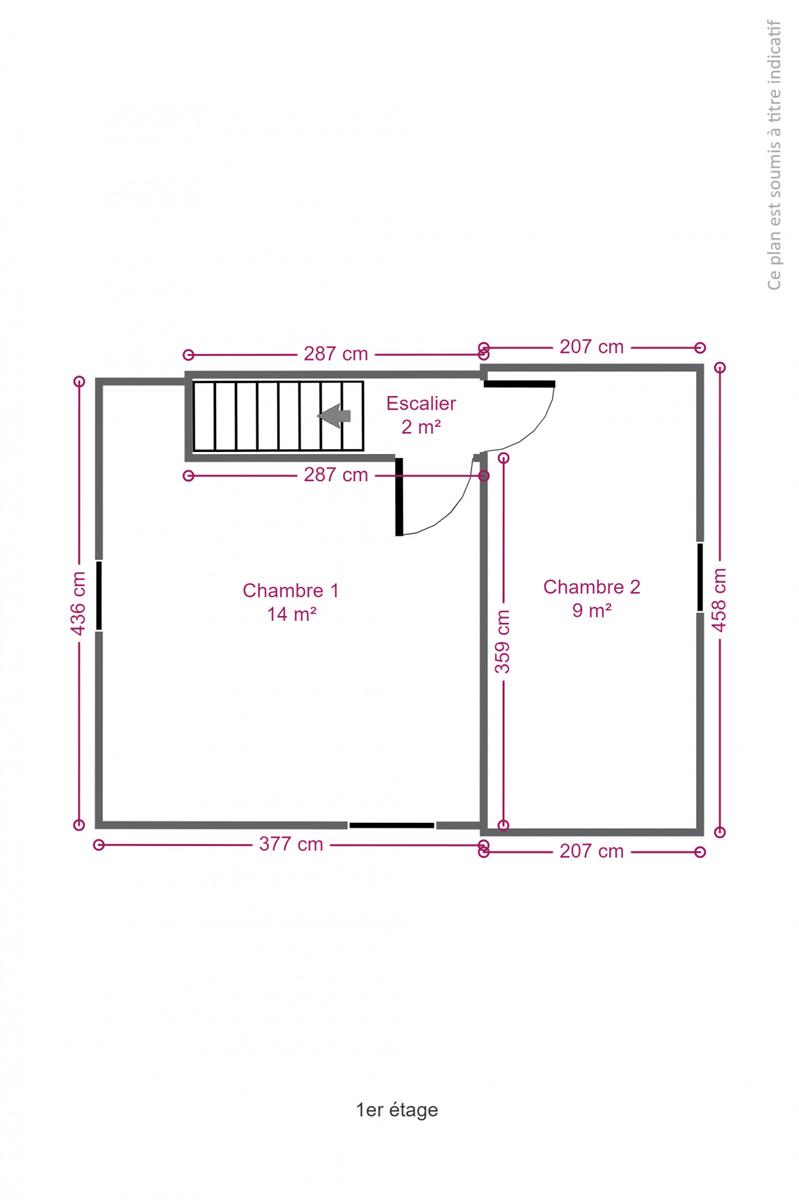
Nombre de chambres 2
Jardin Oui
Garage Oui
Parking Oui
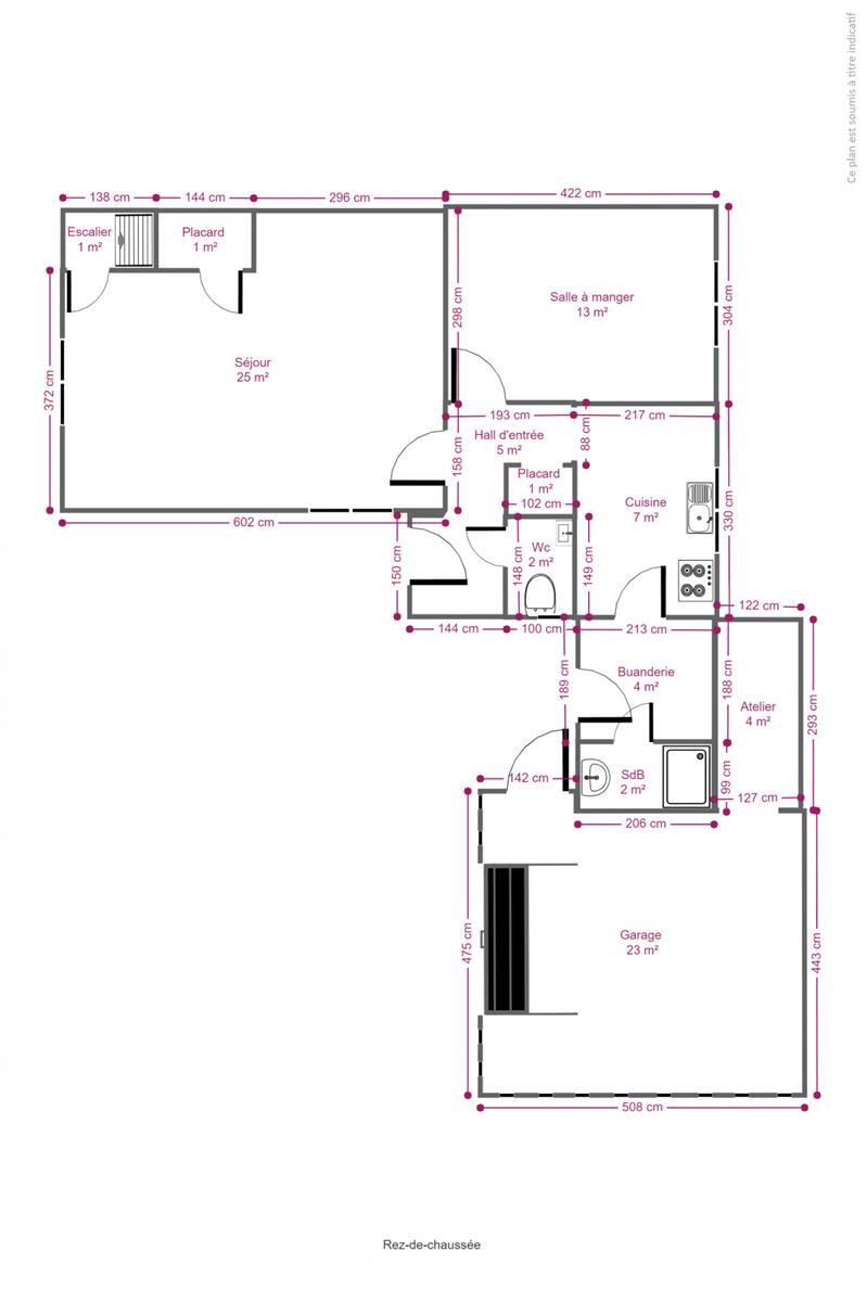
Surface habitable 84 m²
Surface du terrain 493 m²
Disponibilité à l'acte

Nom, catégorie & situation

Nombre d'étages (numéro) 1

Bâtiment

Nombre de garage 1
Parking extérieur Oui
Garage (détails) 1, béton, 2,1m, Point lumineux au plafond, 1,

Equipement de base

Cuisine Oui
Chauffage (Format/energie) electrique
Type de cuisine équipée
Cuisine (détails) 2,5m, 6, équipée, one half, inox,...

Divers

Buanderie Oui

En chiffres

Nbre de toilette(s) (nombre) 1
Chambre 1 (surface) 14 m²
Chambre 2 (surface) 9 m²
Surface nette 84 m²
Garage (surface) 22 m²
Salle de séjour (surface) 25 m²
Salle à manger (surface) 12 m²
Cuisine (surface) 7 m²
Buanderie (surface) 3 m²
Sdd (surface) 2 m²
Hall d'entrée (surface) 4 m²
Orientation de la terrasse 1 (-) nord-ouest

Equipement extérieur

Atelier Oui
Atelier (surface) 3 m²

Sécurité

Volets Oui
Détails volets (type) chassis-pvc-double-vitrage-oscillo-battants-volets-manuel

À proximité

Transports en commun (distance (m)) 50
Transports en commun Oui
Autoroute Oui
Autoroute (distance (m)) 2900
Gare Oui
Gare (distance (m)) 6800

Raccordements

Égouts Oui
Télévision par cable Oui
Câbles téléphoniques Oui

Équipements techniques

Châssis (Ouvertures) bois
Vitrage (type) double vitrage
Évier Oui
Type d'évier 1,5

Spécificités terrain

Type d'environnement zone d'habitation
Orientation de la terrasse (-) nord ouest
Votre agent
Marie Surges
E-mail Tel.
Prendre contact pour le bien : 3992017

* Champs obligatoires

Préférences pour les cookies

La protection de vos données personnelles est importante pour nous. C’est pourquoi nous détaillons ci-dessous les différents services et fonctionnalités du site qui utilisent des cookies et nous vous laissons décider des cookies que vous souhaitez autoriser ou refuser.

Veuillez cependant noter que si vous bloquez certains types de cookies, cela pourrait impacter votre expérience de navigation sur notre site ainsi que les fonctionnalités disponibles.

Nous utilisons des cookies fonctionnels obligatoires pour assurer le bon fonctionnement du site. Ils sont, par exemple, nécessaires pour retrouver le résultat d’une recherche ou enregistrer le choix de la langue.

Certaines fonctionnalités, comme l’affichage de vidéos ou de cartes géographiques, sont assurées via des composants externes développés par des partenaires comme YouTube ou Google. Certains composants utilisent des cookies qui sont susceptibles de permettre à ces tiers de suivre le comportement des internautes afin, par exemple, de réaliser du ciblage publicitaire. L’activation de ces fonctionnalités et des cookies associés est donc soumis à votre consentement.