Maison - vendu - 1495 Tilly -

Maison - à vendre - 1495 Tilly
4 1 181 m² 4 PEB : E

Description

Magnifique maison de charme prête à vivre au calme du joli village de Tilly, entité de Villers-la-Ville. Aux amoureux de charme et d'authenticité, cette maison vaut assurément le détour, une visite s'impose absolument. Elle vous offre sur 220m², une salle à manger, un très bel espace de vie ouvert et chaleureux avec poêle à bois fonctionnel, une cuisine super équipée quasi neuve, 4 agréables grandes chambres, une salle de bain avec douche, buanderie, grenier, grandes caves, terrasse et jardin, plus 4 places de parking privatives. Calme garanti, intimité assurée (le bâtiment voisin est inoccupé), gare de Tilly à 500m (accès Ottignies et Bruxelles), école primaire à 300m, commerces à Marbais. Coup de cœur garanti, n'hésitez pas et appelez moi rapidement! Vente soumise à condition, contactez l'agence. https://www.ccv-immobilier.be/fr/bien/a-vendre/maison/1495-tilly/3915811

Adresse

Rue Général Mellier 15 - 1495 Tilly

Général

Référence 3915811
Catégorie Maison
Meublé Non
Nombre de chambres 4
Nombre de salles de bain 1
Jardin Oui
Garage Non
Terrasse Oui
Parking Oui
Surface habitable 181 m²
Surface du terrain 670 m²
Disponibilité 30/06/2020

Bâtiment

Année de construction 1939
Parking extérieur Oui
Parking(s) extérieur (nombre) 4
Type de construction traditionnel

Nom, catégorie & situation

Nombre d'étages (numéro) 2

En chiffres

Surface bâtie (-) 82
Nbre de toilette(s) (nombre) 1
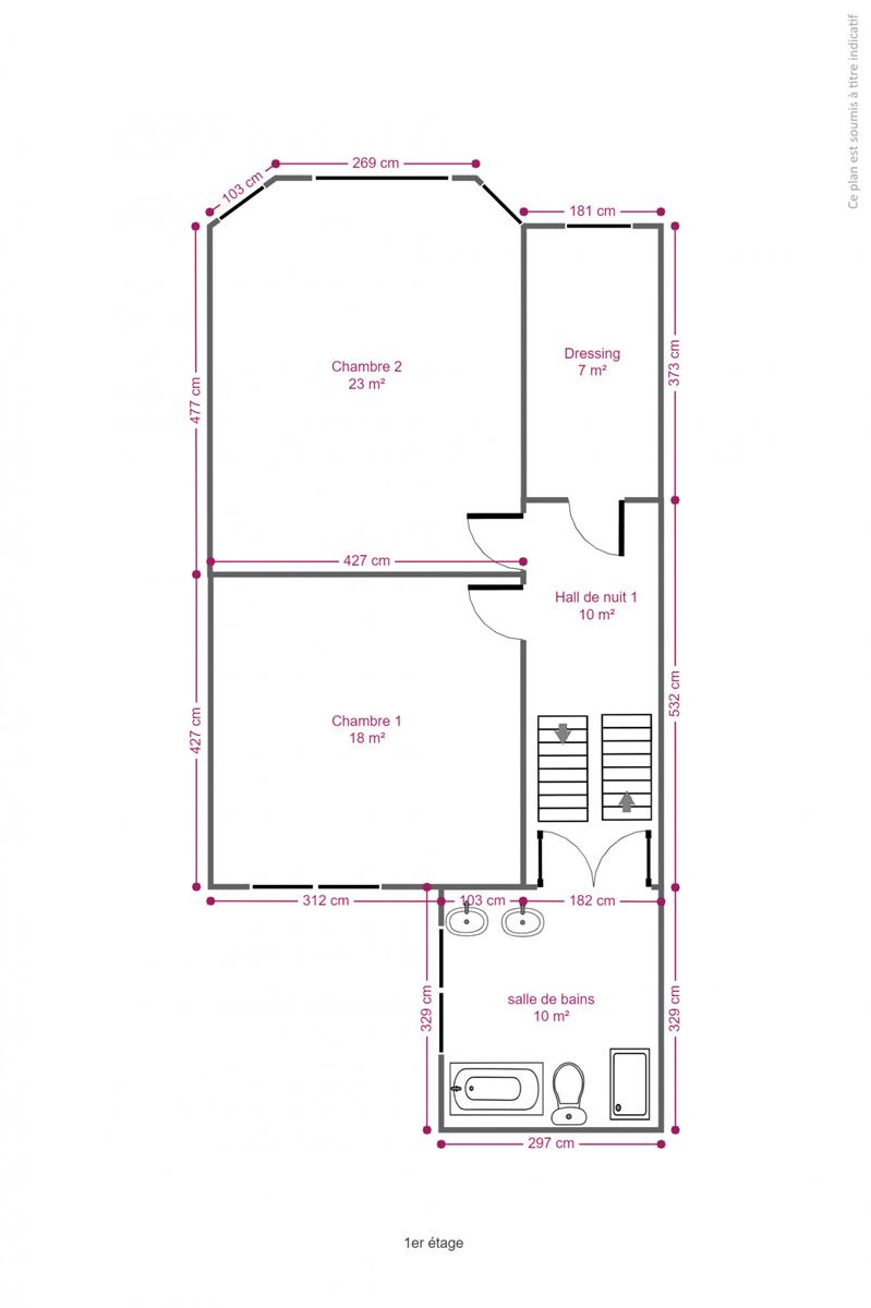
Chambre 1 (surface) 18 m²
Chambre 2 (surface) 22 m²
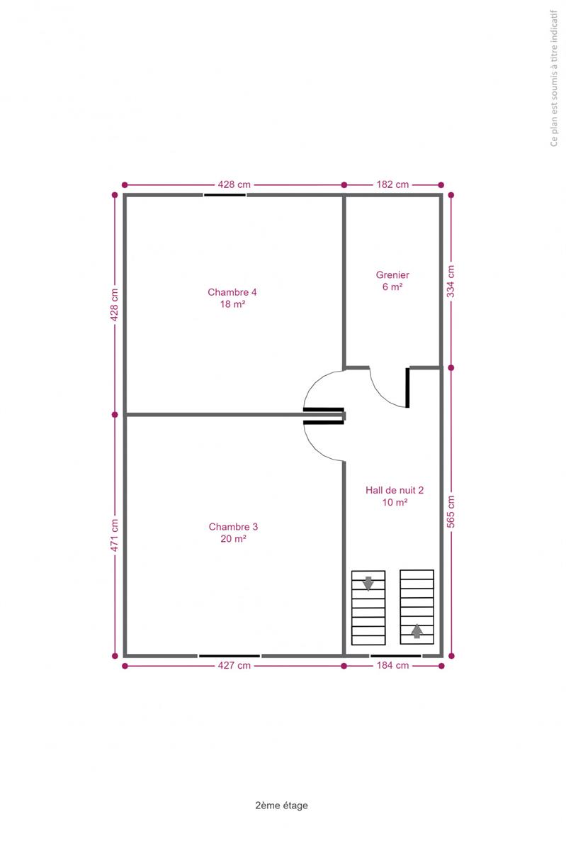
Chambre 3 (surface) 20 m²
Chambre 4 (surface) 18 m²
Surface brute 220 m²
Surface nette 181 m²
Largeur de façade 6
Nbre de terrasse(s) (nombre) 1
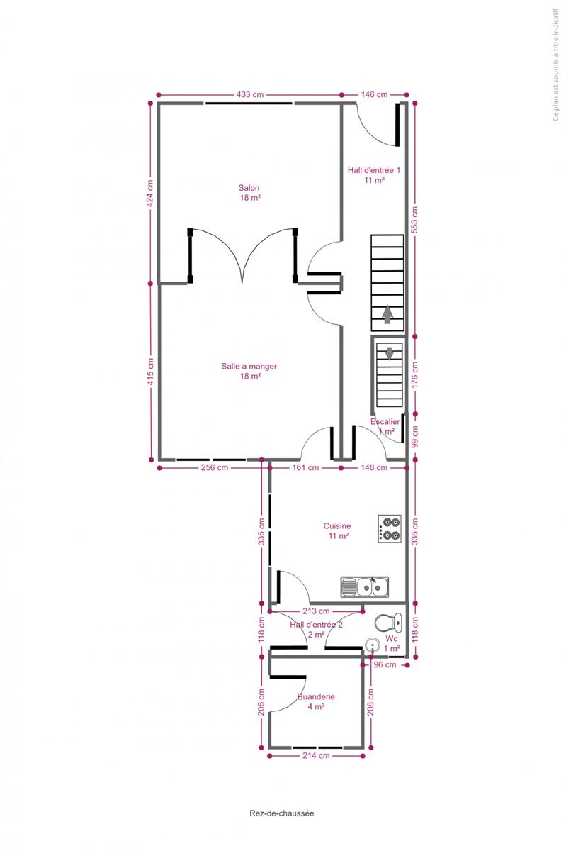
Salle à manger (surface) 17 m²
Salle de séjour (surface) 18 m²
Cuisine (surface) 10 m²
Buanderie (surface) 4 m²
Grenier (surface) 6 m²
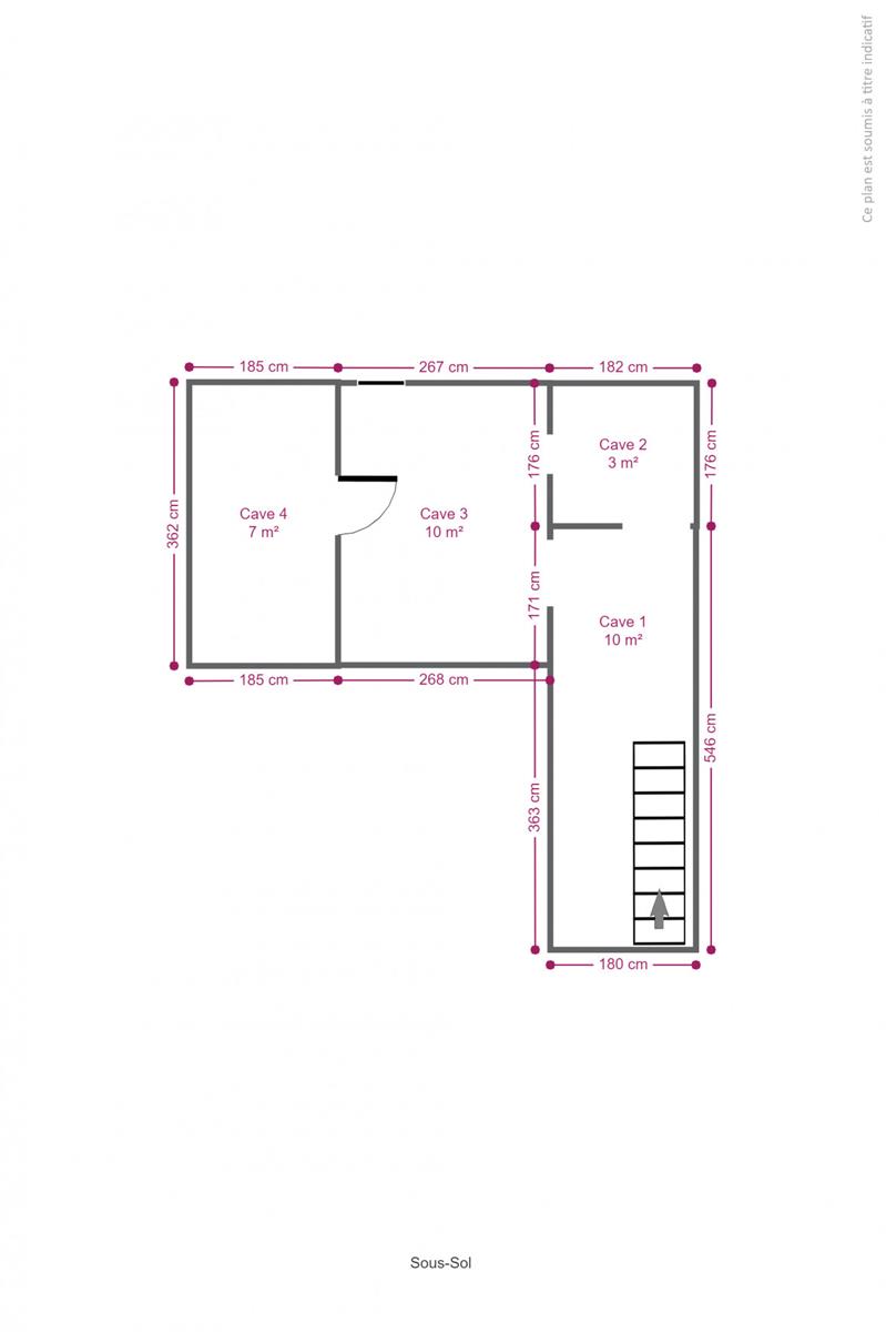
Caves (surface) 29 m²
Salle de bain 1 (surface) 9 m²
Dressing (surface) 6 m²
Hall d'entrée (surface) 10 m²
Orientation de la terrasse 1 (-) est
Hall de nuit (surface) 10 m²

Equipement de base

Cuisine Oui
Chauffage (Format/energie) mazout (chauf. centr.)
Type de cuisine amer. équipée
Sdb (Type) douche et bain
Marque de chauffage marque ACV
Cuisine (détails) 2,5m, 5, one half, avec égouttoir, inox,...

Divers

Buanderie Oui
Type de grenier grenier avec chambres
Cave Oui
Grenier (détails) seulement rangement, parquet massif, 3,0m,...

À proximité

Magasins (distance (m)) 2500
Écoles (distance (m)) 300
Transports en commun (distance (m)) 50
Transports en commun Oui
Autoroute Oui
Autoroute (distance (m)) 8000
Gare Oui
Gare (distance (m)) 400
Détails écoles Ecole communale de Tilly

Raccordements

Égouts Oui
Citerne à mazout Oui
Télévision par cable Oui
Câbles téléphoniques Oui
Citerne à mazout (détails) Enterrée, capacité 2700 L

Équipements techniques

Châssis (Ouvertures) bois
Vitrage (type) double vitrage
Évier Oui
Type d'évier 1,5

Spécificités terrain

Type d'environnement calme
Orientation de la terrasse (-) est
Orientation du jardin (-) est

Caractéristiques Principales

Surface de terrasse 1 25 m²

Cadastre

Revenu cadastral (€) (montant) 1008 €
Surface (ha/a/ca) (surf. (ha/a/ca)) 670

Equipement extérieur

Citerne d'eau Oui
Citerne d'eau - capacité 3000

Type de matériau & évaluation

État de la toiture (appréciation) 4
État des châssis (-) 4
État des sanitaires (appréciation) 4
État de l'électricité (appréciation) 4
État du chauffage (appréciation) 4
État des sols (appréciation) 4
État de la cuisine (appréciation) 5

Energie

Label PEB (Classe) E
PEB E-SPEC (kwh/m²/an) (Consommation énergétique) 399
E total (Kwh/an) 93309
PEB code unique (-) 20191125000808
Votre agent
Didier Piraux
E-mail Tel.
Prendre contact pour le bien : 3915811

* Champs obligatoires

Préférences pour les cookies

La protection de vos données personnelles est importante pour nous. C’est pourquoi nous détaillons ci-dessous les différents services et fonctionnalités du site qui utilisent des cookies et nous vous laissons décider des cookies que vous souhaitez autoriser ou refuser.

Veuillez cependant noter que si vous bloquez certains types de cookies, cela pourrait impacter votre expérience de navigation sur notre site ainsi que les fonctionnalités disponibles.

Nous utilisons des cookies fonctionnels obligatoires pour assurer le bon fonctionnement du site. Ils sont, par exemple, nécessaires pour retrouver le résultat d’une recherche ou enregistrer le choix de la langue.

Certaines fonctionnalités, comme l’affichage de vidéos ou de cartes géographiques, sont assurées via des composants externes développés par des partenaires comme YouTube ou Google. Certains composants utilisent des cookies qui sont susceptibles de permettre à ces tiers de suivre le comportement des internautes afin, par exemple, de réaliser du ciblage publicitaire. L’activation de ces fonctionnalités et des cookies associés est donc soumis à votre consentement.